Apartment 23 The Gallery, 71 Dublin Road

Offers in region of
£139,950

1 Bedroom Apartment for sale in BELFAST

1 1 1

***CASH OFFERS ONLY***

We are delighted to bring to the market this fantastically well-appointed third floor apartment located in Belfast City Centre. Ideally situated on the Dublin Road, within walking distance of many local amenities including shops, bars and restaurants, this fantastic apartment will have immediate appeal to a range of potential purchasers.

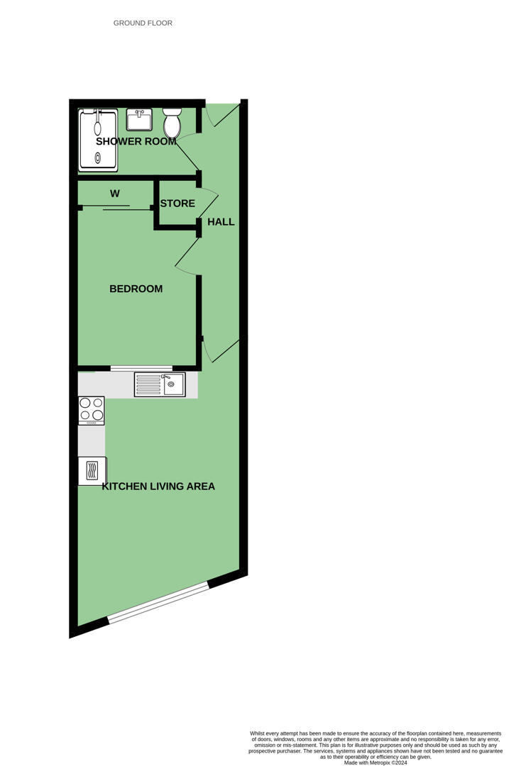
In short, the property comprises of reception hall, open plan kitchen living and dining space, bespoke fitted kitchen with range of storage and built in appliances, one double bedroom with built in storage and a luxurious shower room with modern white suite. The property further benefits from gas fired central heating, uPVC double glazing and lift access.

This apartment is likely to appeal to a wide range of purchasers so early internal inspection is highly recommended to appreciate all this property has to offer.

.***CASH OFFERS ONLY***
.Well Appointed Third Floor Apartment in Belfast City Centre
.Doorstep Convenience to Many Local Amenities the City has to Offer
.Secure Communal Entrance
.Superb Energy Rating with Low Maintenance
.Well Proportioned Double Bedroom
.Open Plan Kitchen Living Dining Space
.Bespoke Fitted Kitchen with Range of Built in Appliances
.Luxurious Shower Room with Modern White Suite
.Gas Fired Central Heating
.UPVC Double Glazing Throughout
.Ideally Suited to a Young Professional, Downsizer or Investor
.Excellent Investment Opportunity
.Management Fee Approx £1860 Per Annum
.Early Viewing Highly Recommended
.Broadband Speed - Ultrafast

Entrance -

Communal Entrance: - () - Communal entrance with lift and stair access.

Third Floor -

Spacious Reception Hall: - () - Hardwood front door into spacious reception hall, porcelain tiled floor, built-in storage cupboard with access to gas boiler.

Shower Room: - (2.57m x 1.52m) - Modern white suite comprising low flush WC, floating wash hand basin with chrome mixer taps, shower cubicle with glass shower screen, thermostatically controlled valve and rainfall shower head, low voltage recessed spotlighting, extractor fan, porcelain tiled floor, fully tiled walls, chrome heated towel rail.

Bedroom One: - (3.89m x 2.57m) - Built-in slide robes, excellent storage.

Kitchen / Living / Dining: - (6.02m x 3.48m) - Bespoke fitted high gloss kitchen with excellent range of high and low level units, integrated fridge with top freezer, built-in oven, integrated microwave, ceramic hob, extractor hood above, integrated dishwasher, integrated washing machine, stainless steel sink and chrome mixer taps, part tiled walls, porcelain tiled floor, open to living/dining space, low voltage recessed spotlighting.

As part of our obligations under the Money Laundering, Terrorist Financing and Transfer of Funds (Information on the Payer) Regulations 2017, all Estate Agents are required to verify the identity of purchasers involved in a property transaction.
To comply with these obligations, all purchasers will be required to complete Customer Due Diligence (AML) identity checks. These checks are carried out on our behalf by our trusted third-party provider, Thirdfort.
A charge will apply of £20 + VAT per purchaser.

Living in the heart of Northern Ireland's capital offers a unique chance for those wishing to experience vibrant city living to also feel part of a welcoming local community. There is an abundance of fantastic cafes, great pubs, trendy bars and an amazing restaurant scene.

Property Ref: 34556743

Share:

Similar Properties

17 Breda Road

2 Bedroom Apartment | Offers Over £135,000

Set in a popular and convenient location off Breda Road, this well-presented ground floor apartment offers comfortable,...

106 Ardcarn Drive

3 Bedroom End of Terrace House | Offers Over £130,000

Located in the popular Ardcarn Way area of Belfast, this 3-bedroom end terrace home offers an excellent opportunity for...

17 Moorfield Street

2 Bedroom Terraced House | Offers in region of £129,950

We are delighted to bring to the market this fantastic two-bedroom mid-terrace property situated just off Beersbridge Ro...

29 Redwood Grove, Sequoia Building

2 Bedroom Apartment | Offers Over £140,000

Located within the highly regarded Redwood Grove development, this well-presented two-bedroom ground floor apartment off...

39 Knockwood Park

2 Bedroom Semi-Detached House | Offers in region of £149,950

We are delighted to bring to the market this well presented, deceptively spacious two-bedroom semi-detached property loc...

Apartment 2, The Courtyard, 222 Castlereagh Road

2 Bedroom Apartment | Offers in region of £149,950

We are delighted to bring to the market this excellent two-bedroom ground floor apartment located on Castlereagh Road in...

John Minnis Estate Agents (Greater Belfast)

404 Upper Newtownards Road, Greater Belfast, Belfast, BT4 3GE

028 9065 3333

How much is your home worth?

Use our short form to request a valuation of your property.

Request a Valuation

Mortgage Calculator

Amount Borrowed: £
Total Amount Repayable: £
Total Monthly Payment: £
©2026 The Guild of Property Professionals. All rights reserved. Terms and Conditions | Privacy Policy | Cookie Policy | Complaints Policy | Members Login
The Guild of Property Professionals Trading Address: 121 Park Lane, London W1K 7AG. GPEA Limited. Registered in England & Wales.  Company No: 02819824.  Registered Office Address: 2 St. Stephen's Court, St. Stephen's Road, Bournemouth, Dorset, England, BH2 6LA.  VAT Registration No: 576 8795 61
Book a Property Valuation Update Cookies Preferences