5 Norwood Avenue

Offers Over
£375,000
SSTC
This property listing is now SSTC

3 Bedroom Semi-Detached House for sale in Belfast

2 3 2

Located within one of Belfast's most sought-after residential areas, this superb three-bedroom semi-detached property offers a wonderful blend of period character and contemporary design. Finished to an exceptional standard throughout, this home is ready to move into and enjoy, offering stylish and practical living for the modern family.

On entering, you are welcomed into a bright and elegant hallway leading to two beautifully appointed reception rooms. The formal lounge to the front features a striking bay window, flooding the space with natural light, and a stunning feature fireplace with ornate surround - creating a warm and inviting atmosphere.

To the rear, the open plan living/dining and separate kitchen provides the perfect heart of the home. The contemporary kitchen is fitted with a range of bespoke units and integrated appliances, complemented by neutral tones and clean lines. French doors open directly onto the landscaped rear garden.

Upstairs are three well-proportioned bedrooms. The principal bedroom enjoys a beautiful bay window and an elegant finish. The luxury family bathroom is fitted with a freestanding bath, separate walk-in shower, and contemporary tiling - offering a boutique hotel feel. The rear garden has a raised lawn and stylish composite decking provide excellent areas for relaxation and entertaining.

A superb garden room at the end of the garden offers additional flexibility - ideal as a home office, studio, or gym - and is finished to the same exacting standard as the main house. To the front, a neat driveway offers off-street parking.

Norwood Avenue enjoys an enviable position within walking distance of many leading schools, caf�s, and boutiques, with excellent transport links into Belfast city centre. The area is well known for its sense of community and leafy surroundings, making it one of the most desirable addresses in East Belfast.

.Beautifully Presented Three Bedroom Semi Detached Home Offering Elegant and Contemporary Living Spaces
.Situated within a Highly Desirable and Convenient Residential Location in East Belfast
.Welcoming Entrance Hall Leading to Two Exceptionally Finished Reception Rooms
.Bright Lounge Featuring Bay Window, Period Detailing and an Elegant Feature Fireplace
.Open Plan Living / Dining Room Featuring Vaulted Ceiling, Skylight and Gas Stove
.Bespoke Fitted Kitchen Featuring Integrated Appliances and Access to Rear Garden
.Three Well Proportioned Bedrooms Beautifully Decorated in a Calming Neutral Palette
.Luxury Family Bathroom Featuring Freestanding Bath, Walk In Shower and Contemporary Tiling
.Professionally Landscaped Rear Garden Featuring Decking, Raised Lawn and Mature Planting
.Stylish Garden Room Providing the Perfect Space for a Home Office, Gym or Studio
.Off Street Driveway Parking and Enclosed Rear Garden Offering Privacy and Tranquillity
.Pvc Double Glazing and Gas Heating
.Close to Leading Schools, Local Caf�s, Shops and Excellent Transport Links to Belfast City Centre

Entrance - Composite front door with glazed inset into entrance hall.

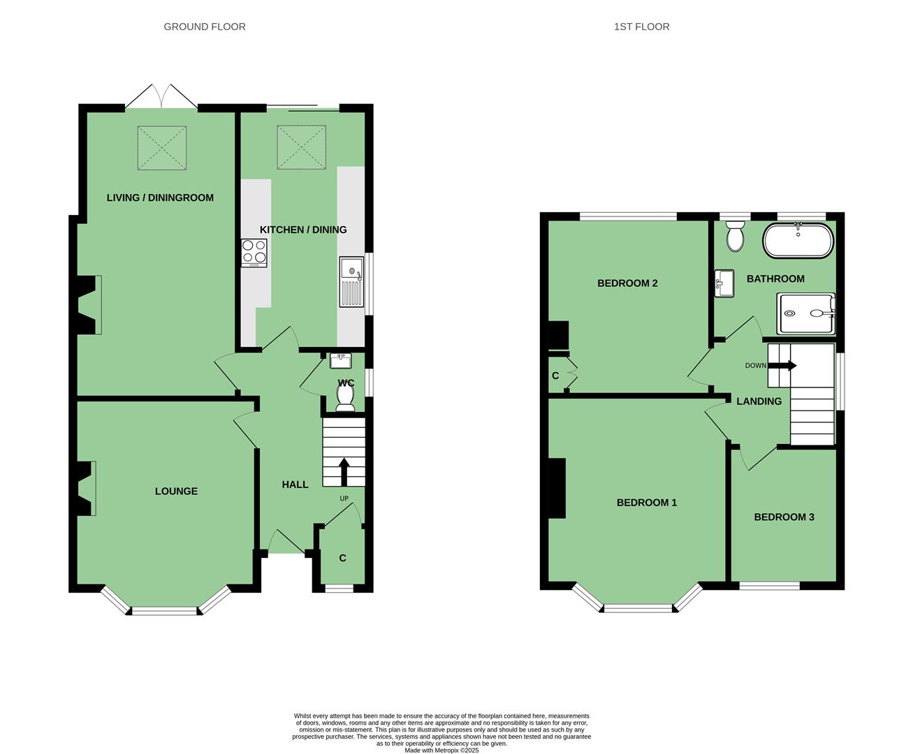
Ground Floor -

Entrance Hall - With wood laminate flooring, storage cupboard with gas boiler and electric fuse board, corniced ceiling.

Downstairs Wc - Low flush WC, vanity unit with basin and chrome mixer tap.

Front Lounge - 4.39m x 3.81m (14'5" x 12'6") - Measurements into bay, wood laminate flooring, cornice ceiling, open fire, cast iron inset, wooden surround.

Living Room Open To Dining Room - 5.99m x 3.40m at widest points (19'8" x 11'2" at - With Velux window, cornice ceiling, PVC double glazed patio doors to rear, gas stove with slate hearth, shelving to alcoves.

Kitchen - 4.88m'1.52m" x 2.44m'3.35m" (16'5" x 8'11" ) - Modern range of Shaker style high and low level units, laminate worktop, ceramic sink, chrome mixer tap, integrated dishwasher, integrated fridge freezer, integrated Bosch oven, ceramic hob and extractor fan, integrated bin storage, recessed spotlights, Velux window, PVC double glazed sliding patio door to rear garden.

First Floor -

Stairs To First Floor Landing - Picture window, access to roofspace via wooden pull-down ladder.

Roofspace - With insulation and dormer window.

Bedroom One - 4.27m'1.52m" x 3.66m'1.83m" (14'5" x 12'6" ) - Measurements into bay, cornice ceiling.

Bedroom Two - 3.66m'0.61m" x 3.35m'1.22m" (12'2" x 11'4" ) - Built-in wardrobe, cornice ceiling.

Bedroom Three - 2.74m'1.52m" x 2.13m'2.13m" (9'5" x 7'7" ) - Cornice ceiling.

Bathroom - Luxury bathroom with white suite comprising free standing bath, low flush WC, vanity unit with basin and chrome mixer tap, tiled shower enclosure with thermostatic drencher shower, telephone handle attachment, tiled walls, tiled floor.

Outside -

Outside - Tarmac driveway to front leading to detached garage, garden to front in lawn with mature shrubs and trees, composite decking to rear, raised shrub beds, steps to raised garden in lawn, mature shrubs and trees.

Garden Room - With PVC double glazing, light and power, wood laminate flooring.

Detached Garage - With roller shutter door, light and power.

East Belfast is a dynamic part of the city, full of beautiful residential areas and a wide variety of amenities that make it a wonderful place to live. Bustling villages, beautiful parks, and fantastic local schools are just a few of the reasons why so many wish to call it home.

Property Ref: 44458_34377173

Share:

Similar Properties

Upper Knockbreda Road, BELFAST, BT6 9QF

4 Bedroom Semi-Detached House | Offers in region of £375,000

Located in Knockbreda area in South East Belfast, 172 Upper Knockbreda Road is a fantastic four-bedroom semi-detached pr...

10 Kensington Gardens

4 Bedroom Detached House | Offers Over £375,000

We are are delighted to present to the market this beautifully refurbished detached family home, ideally positioned in t...

Cormorant Park, BELFAST, BT5 7NB

4 Bedroom Detached Bungalow | Offers Over £365,000

We are delighted to bring to the market this deceptively spacious, extended, four bedroom detached bungalow situated on...

Castlehill Road, BELFAST, BT4 3GQ

3 Bedroom Semi-Detached House | Offers Over £380,000

This deceptively spacious semi-detached family home is beautifully presented throughout and offers bright and spacious a...

10 Bracken Hill Square

4 Bedroom Detached House | Offers Over £389,950

Well positioned in 'The Square' within the exclusive Bracken Hill development in the Four Winds area of South Belfast th...

Knockhill Park, BELFAST, BT5 6HY

3 Bedroom Detached House | Offers in region of £389,950

Knockhill Park is a highly sought after and convenient prestigious address located just off the Upper Newtownards Road i...

John Minnis Estate Agents (Greater Belfast)

404 Upper Newtownards Road, Greater Belfast, Belfast, BT4 3GE

028 9065 3333

How much is your home worth?

Use our short form to request a valuation of your property.

Request a Valuation

Mortgage Calculator

Amount Borrowed: £
Total Amount Repayable: £
Total Monthly Payment: £
©2026 The Guild of Property Professionals. All rights reserved. Terms and Conditions | Privacy Policy | Cookie Policy | Complaints Policy | Members Login
The Guild of Property Professionals Trading Address: 121 Park Lane, London W1K 7AG. GPEA Limited. Registered in England & Wales.  Company No: 02819824.  Registered Office Address: 2 St. Stephen's Court, St. Stephen's Road, Bournemouth, Dorset, England, BH2 6LA.  VAT Registration No: 576 8795 61
Book a Property Valuation Update Cookies Preferences