97-99 Botanic Avenue, Belfast

£900,000

Flat for sale in Belfast

CPS Property are delighted to welcome to the sales market this mixed residential/commercial premises. The property holds a prominent presence on the corner of Botanic Avenue and University Street comprising a historic three-storey red brick building.  The property currently comprises two ground floor commercial units, commercial premises on the first floor and two apartments on the second floor.  The ground floor is currently occupied by 'The French Village' and ‘Belfast City Breaks; with the upper floors being vacant.

FEATURES

- Fantastic commercial premises with a current Annual Gross Rent Roll of £39,600 Per Annum combined. 

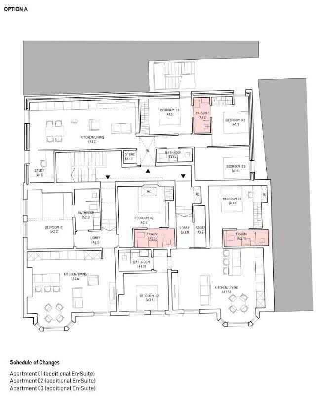
- Benefits from Planning Approval for the following:

  • LA04/2018/0243/F - Change of use and reconfiguration from office to 3no. short term let apartments including a mezzanine to the existing 2no. apartments, roof alterations and associated works
  • LA04/2021/1896/DCA (Conservation Area Consent) - Removal of staircase, removal of suspended floors, and internal non-loading walls.  External walls to be stripped back to expose existing masonry on internal face
  • LA04/2021/1752/F - Proposed change of use and reconfiguration from hair salon to 2no. short term let apartments. External walls stripped back to expose existing masonry. Remove internal stud walls, raised platforms and staircase.
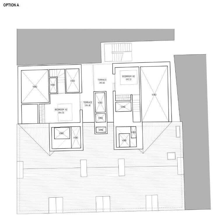
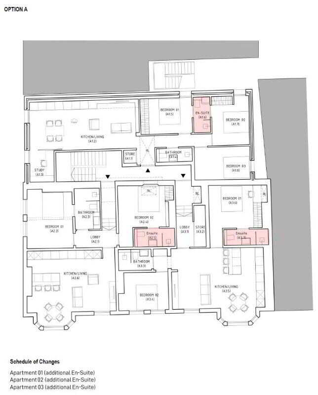
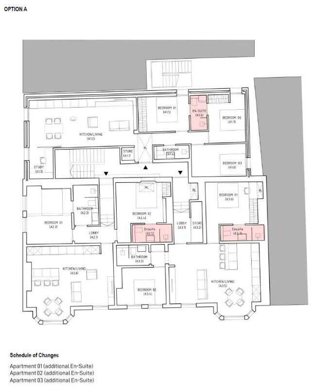
- If the above planning was implemented the finished building would comprise of two ground floor commercial units and 7 x apartments on the first and second floor as follows:
  • First Floor - 2 x Two Bedroom Apartments and 1 x Three Bedroom Apartment
  • Mezzanine Floor - 2 x Two Bedroom Apartments 
  • Second Floor - 2 x Two Bedroom Duplux Apartments. 
GUIDE PRICE

£1,100,000 (One Million & One Hundred Thousand Pounds)

VIEWING INFO

For further information or if you wish to arrange a viewing, please contact our commercial team on 028 95 622 188 OR commercials@cps-property.com 

 

CUSTOMER DUE DILIGENCE
As a business providing estate agency services, we are legally required to verify the identity of both the vendor and the purchaser in accordance with the Money Laundering, Terrorist Financing and Transfer of Funds (Information on the Payer) Regulations 2017.

In order to buy or sell a property in the United Kingdom, estate agents must carry out identity checks on customers involved in the transaction to meet their obligations under Anti-Money Laundering legislation.

These checks are conducted on our behalf by a third-party provider, and a charge of £25 + VAT per person will apply.

Further information on the legislation is available at  www.legislation.gov.uk.

 

Property Ref: 952173

Share:

Similar Properties

9 Balmoral Park, Belfast

4 Bedroom Detached House | £425,000

4 The Park, Upper Dunmurry Lane, Belfast

3 Bedroom Bungalow | £399,950

28 Wellesley Avenue, Belfast

Not Specified | £395,000

CPS - Belfast (Belfast)

164 Lisburn Road, Belfast, County Antrim, BT9 6AL

028 9095 8888

How much is your home worth?

Use our short form to request a valuation of your property.

Request a Valuation

Mortgage Calculator

Amount Borrowed: £
Total Amount Repayable: £
Total Monthly Payment: £
©2026 The Guild of Property Professionals. All rights reserved. Terms and Conditions | Privacy Policy | Cookie Policy | Complaints Policy | Members Login
The Guild of Property Professionals Trading Address: 121 Park Lane, London W1K 7AG. GPEA Limited. Registered in England & Wales.  Company No: 02819824.  Registered Office Address: 2 St. Stephen's Court, St. Stephen's Road, Bournemouth, Dorset, England, BH2 6LA.  VAT Registration No: 576 8795 61
Book a Property Valuation Update Cookies Preferences