Drovers Way, Ambergate, Belper, Derbyshire

£299,950
SSTC
This property listing is now SSTC

3 Bedroom Semi-Detached House for sale in Belper

1 3 2
  • Attractive Stone Built Semi-Detached Home - Ideal for Family/Couple
  • Nicely Tucked Away - Pleasant Non-Estate Position
  • Lounge with French Doors To Garden
  • Kitchen Diner with Built-in Appliances
  • Utility Room & Cloakroom
  • Three Bedrooms
  • En-suite & Family Bathroom
  • Landscaped Garden with Shed
  • Generous Driveway - Easy Car Parking
  • Easy Access to Belper, Matlock, Crich & A6, A38

We are delighted to offer to the market this stone 2023 built three bedroom, en-suite semi-detached house enjoying a pleasant non-estate position. Easy Access to Belper, Matlock, Crich & A6, A38.

Special Note - The property has planning permission for a loft conversion 2026 - Amber Valley Reference: AVA/2026/0021

The Location - Located in less than a 2-mile drive is Ambergate Railway Station which provides services to destinations such as Matlock, Nottingham and Derby. Ripley Hospital, Giltbrook Shopping Park and Bullbridge Recreation Ground are all less than a 30-minute drive away.

Belper 3 miles, Matlock 8 miles, Derby 14 miles, Nottingham 18 miles, Sheffield 33 miles

A38 4 miles, M1 ( Junction 28 ) 9 miles

Accommodation -

Ground Floor -

Entrance Hall - 5.96 x 2.03 (19'6" x 6'7") - With entrance door with inset window, attractive panelling to walls, herringbone style flooring, radiator and staircase leading to first floor.

Storage Cupboard - 1.80 x 0.78 (5'10" x 2'6") - Providing storage with light and oak veneer door.

Cloakroom - 1.85 x 1.07 (6'0" x 3'6") - With low level WC, circular wash basin with chrome fittings with fitted base cupboard underneath, tiled effect flooring, radiator, spotlights to ceiling, extractor fan and internal oak veneer door.

Lounge - 5.44 x 3.51 (17'10" x 11'6") - With two radiators, double glazed window with fitted blind to rear, double glazed French doors opening onto Indian stone paved patio and rear garden and internal oak veneer.

Kitchen Diner - 3.99 x 3.18 (13'1" x 10'5") - With one and a half stainless steel sink unit with mixer tap, wall and base fitted units with matching worktops, built-in five ring gas hob with stainless steel extractor hood over, built-in electric fan assisted oven, integrated fridge/freezer, dishwasher, tiled effect flooring, radiator, spotlights to ceiling, double glazed window to front with fitted blind and internal oak veneer door.

Utility Room - 2.00 x 1.85 (6'6" x 6'0") - With single stainless steel sink unit with mixer tap, wall and base fitted units with matching worktops, plumbing for automatic washing machine, tiled effect flooring, radiator, central heating boiler, internal oak veneer door and side access door with inset window.

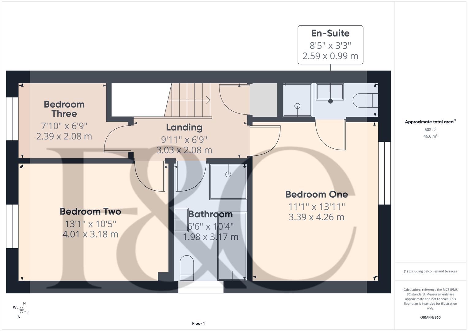
First Floor Landing - 3.03 x 2.08 (9'11" x 6'9") - With radiator, built-in cupboard with shelving and access to roof space.

Bedroom One - 4.26 x 3.39 (13'11" x 11'1") - With radiator, double glazed window to rear with fitted blind and internal oak veneer door.

En-Suite - 2.59 x 0.99 (8'5" x 3'2") - With double shower cubicle with chrome fittings including shower, fitted wash basin with fitted base cupboard underneath, low level WC, tiled effect floor, tile splashbacks, wall mounted mirrored bathroom cabinet, radiator, spotlights to ceiling, extractor fan and internal oak veneer door.

Bedroom Two - 4.01 x 3.18 (13'1" x 10'5") - With radiator, double glazed window to front with fitted blind and internal oak veneer door.

Bedroom Three - 2.39 x 2.08 (7'10" x 6'9") - With radiator, double glazed window to front with fitted blind and internal oak veneer door.

Family Bathroom - 3.17 x 1.98 (10'4" x 6'5") - With bath with chrome fittings, fitted wash basin with chrome fittings with fitted base cupboard underneath, low level WC, separate shower cubicle with chrome fittings including shower, tile splashbacks, spotlights to ceiling, extractor fan, heated chrome towel rail/radiator, double glazed window to side with fitted blind and internal oak veneer door.

Roof Space - Accessed via a roof ladder, insulated and boards full storage.

Garden - There is a private, non-overlooked, rear garden. The garden has been designed for low maintenance in mind with Indian stone paved patio, raised beds with sleepers and built-in seat and artificial all-weather lawn. Timber shed. Children's play castle with artificial lawn. Side access with Indian stone paving and gate.

Driveway - A gravelled, double width driveway provides car standing spaces for four/five cars.

Council Tax Band - C - Amber Valley

Property Ref: 34505251

Share:

Similar Properties

Ferrers Crescent, Duffield, Belper, Derbyshire

3 Bedroom Semi-Detached House | Offers in region of £299,950

ECCLESBOURNE SCHOOL CATCHMENT AREA - Highly appealing three bedroom semi-detached house with front, side and rear garden...

Yardley Way, Belper

3 Bedroom House | £299,950

Located in the charming cul de sac of Yardley Way, Belper, this spacious detached house offers a delightful blend of com...

Chapel Street, Holbrook, Belper, Derbyshire

2 Bedroom Cottage | Offers in region of £299,950

Nestled in the charming village of Holbrook, this two bedroom stone cottage offers a perfect blend of character and mode...

De Ferrers Court, Duffield, Belper, Derbyshire

2 Bedroom Apartment | Guide Price £300,000

SECOND FLOOR APARTMENT WITH BALCONY & GARAGE - Occupying a prime position in this most exclusive and sought after develo...

The Courtyard, Somercotes, Alfreton, Derbyshire

2 Bedroom Semi-Detached House | Guide Price £315,000

Characterful stone two bedroom semi-detached barn conversion forming part of an exclusive courtyard in a sought-after lo...

Derby Road, Duffield, Belper, Derbyshire

3 Bedroom Semi-Detached House | Offers in region of £315,000

ECCLESBOURNE SCHOOL CATCHMENT AREA - A well maintained traditional bay fronted semi-detached property benefiting from a...

Fletcher & Company (Duffield)

Duffield, Derbyshire, DE56 4GD

01332 843390

How much is your home worth?

Use our short form to request a valuation of your property.

Request a Valuation

Mortgage Calculator

Amount Borrowed: £
Total Amount Repayable: £
Total Monthly Payment: £
©2026 The Guild of Property Professionals. All rights reserved. Terms and Conditions | Privacy Policy | Cookie Policy | Complaints Policy | Members Login
The Guild of Property Professionals Trading Address: 121 Park Lane, London W1K 7AG. GPEA Limited. Registered in England & Wales.  Company No: 02819824.  Registered Office Address: 2 St. Stephen's Court, St. Stephen's Road, Bournemouth, Dorset, England, BH2 6LA.  VAT Registration No: 576 8795 61
Book a Property Valuation Update Cookies Preferences