Ninfield Road, Lunsford Cross

Offers in excess of
£1,175,000
SSTC
This property listing is now SSTC

Land for sale in Bexhill On Sea

GUIDE PRICE: £1,175,000

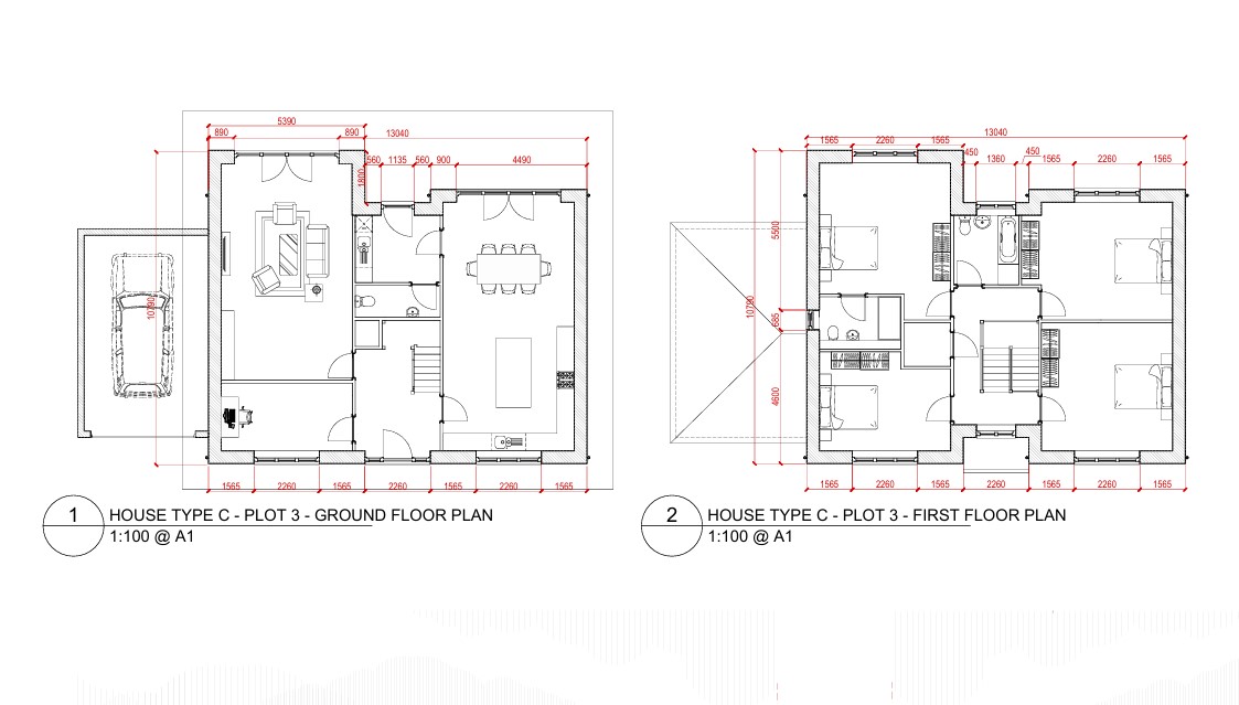
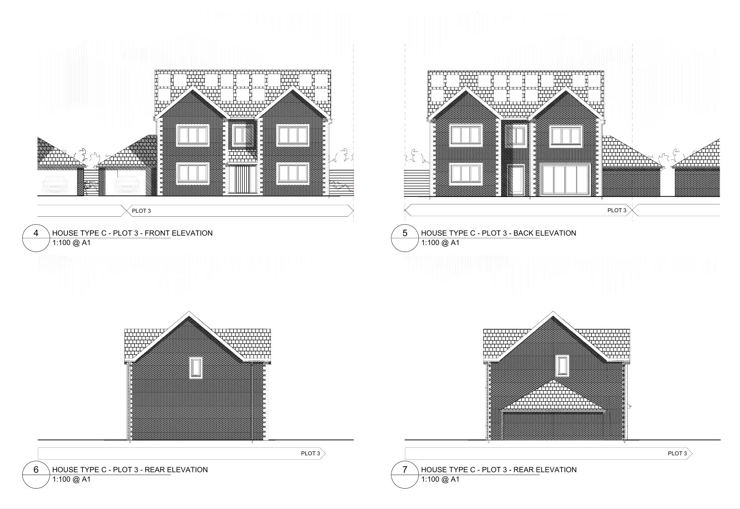
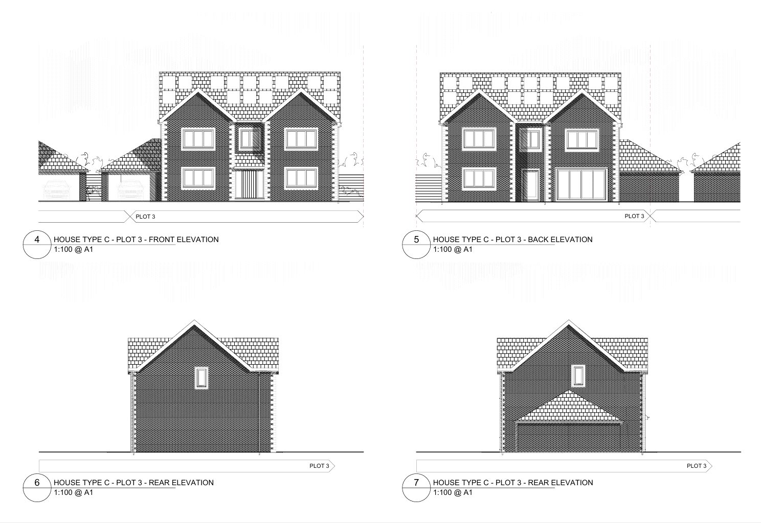
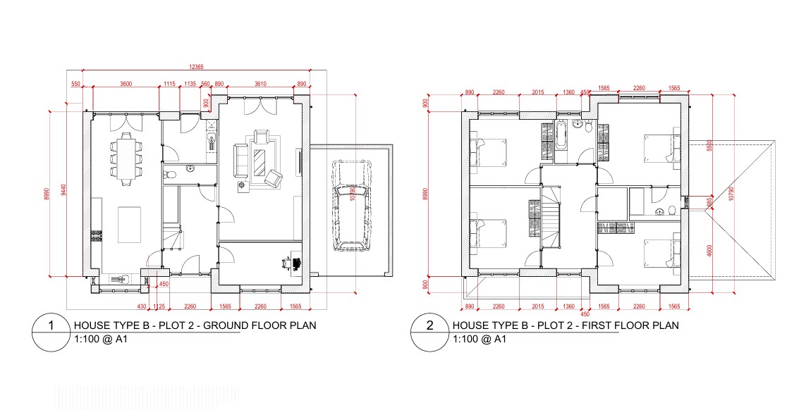
• Prime development land with current planning permission for 4 detached circa 2,152 square feet (200 Square meters which does not include the garage footprint) four double bedroom select village homes with beautiful views over the adjoining grass meadows. Planning reference WD/2022/0334.

• Total development land size understood to be circa 0.8 of an acre

• Beautiful rural views directly in front over the adjoining grass meadows and beyond

• Generous rear sized gardens

• Each property has both garaging as well as a front driveway providing parking for further vehicles

• Excellent energy efficiency is also presently incorporated within the property designs to include extensive solar panelling, superb insulation specifications, as well as air source heat pumps

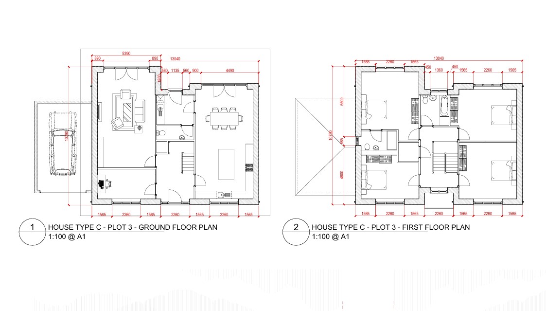
• The first three plots have reception halls, cloakrooms, kitchen / breakfast rooms, open plan dining rooms, separate utility rooms, sitting rooms and family rooms / studies to the ground floors. To the first floors there are four double bedrooms, ensuite shower rooms to bedroom one and family bathrooms / shower rooms. Future potential for loft development as well

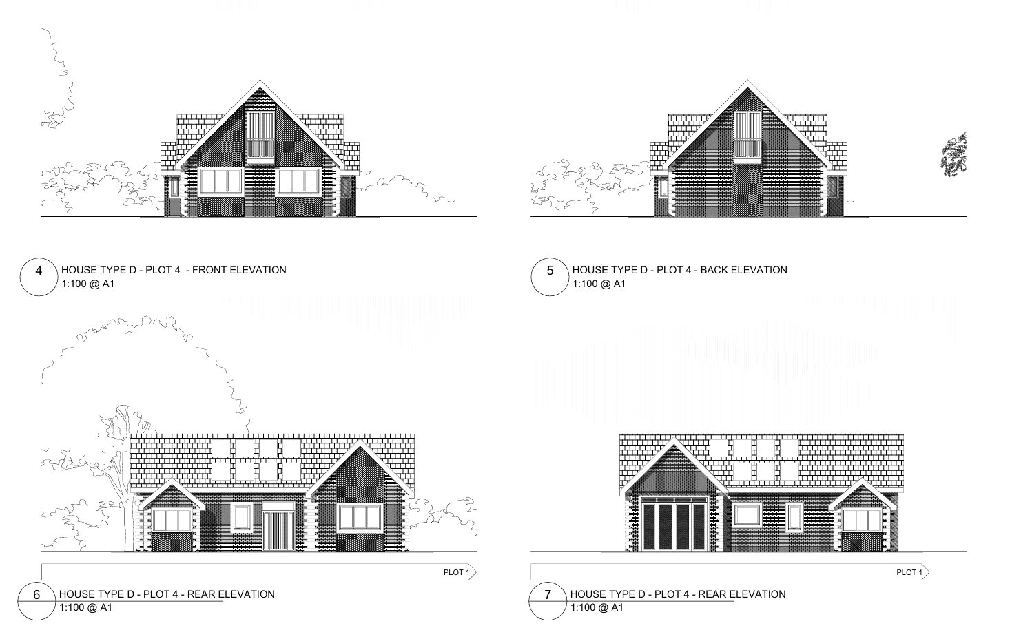
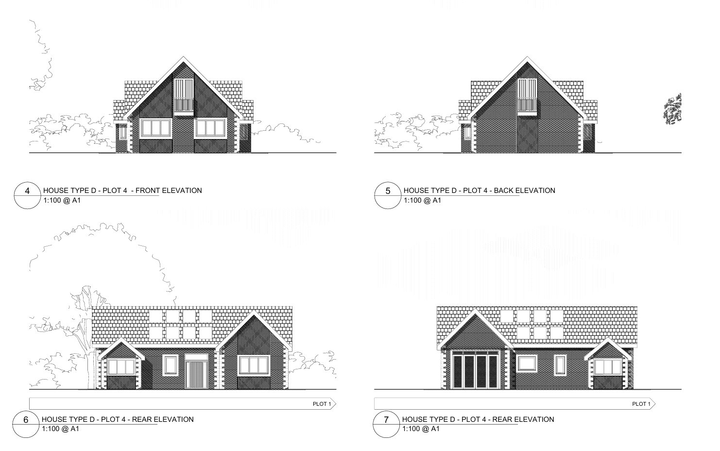
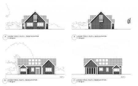
• Plot 4 which is currently a detached four double bedroom chalet bungalow, benefits from having two ensuites to the first floor two bedrooms, as well as a family bathroom serving the additional two ground floor double bedrooms. In addition to the ground floor, there is a study, a reception hall, a kitchen / dining room with an open plan adjoining sitting room, as well as a separate utility room

• Bespoke private driveway only serving these four building plots further enhancing the desirability of these properties when built

• Convenient driving distance of the mainline stations located at Battle and Bexhill, making these properties when built perfect for London city commuters

• Short drive to the sea and coast located at Bexhill on Sea, as well as a short drive to the historic town of Hastings and the seaside town of Eastbourne

• A desirable semi-rural location with a strategic rural land gap directly in front, making this prime development land site a very sought after setting to have a property built

DESCRIPTION: Prime development land of approximately 0.8 of an acre already with approved planning permission (WD/2022/0334) granted for 4 detached luxury four double bedroom properties of circa 2,152 square feet each. Three of which are houses and one of which is a 4 double bedroom chalet house.

This attractive level development land, is in our opinion located in a very desirable semi- rural location, being situated on the outskirts of Ninfield village. This building land is positioned directly in front of grass meadows, which we understand is currently a strategic

land gap that is to be preserved and protected. Furthermore, once these 4 detached luxury family homes are built by whichever developer purchases this prime site, it is likely that the properties, will also enjoy far reaching rural views.

The properties are to be accessed by their own shared driveway from Ninfield Road, which is currently only intended to serve these four village luxury development plots.

Each of the four detached 4 double bedroom luxury village plots have fairly generous rear gardens, as well as garaging and further driveway parking.

It is very rare for developers to be able to purchase the more select small village development land sites currently with planning permission, especially for the more popular mid-sized range of luxury homes of in excess of 2,000 square feet and are currently selling for circa £900,000 to £995,000 price ranges in today’s housing market.

In particular, we as selling agents are finding that these particular sized select village homes on these small more bespoke developments usually attract London cash buyers.

Each of the detached 4 double bedroom designs have excellent solar and energy efficiency designs incorporated, including electric car charging and air source heat pumps etc, which when also combined with the new high specification of insulation, will make these properties very attractive for the more energy and environmental conscious buyers when completed.

Attached to our marketing particulars also are some various projected GDV figures and calculations which show the significant profit margins and of course how they vary further depending upon the developers own build costs.

CURRENT CONSERVATIVE & VERY REALISTIC APPROXIMATE PROJECTED SALE PRICES FOR EACH UNIT = £929,950 x 4

units Creates a projected GDV (Gross development value) of £3,719,800

Of course, if we are the instructed selling agents appointed for the remarketing of the site, as the selling agents for the finished properties we will work at achieving these figures as a minimum.

However, in our opinion currently we feel the existing final selling prices for plots 1,2 & 3 would be circa £995,000 and plot 4 £925,000, (which is currently a chalet house).

EPC RATING TO BE CONFIRMED

VIEWING REQUIREMENTS: Please ensure that any viewing is by arrangement strictly with Neville and Neville Estate Agents

AGENTS NOTE: Please note that these details have been prepared as a general guide and do not form part of a contract. We have not carried out a detailed survey, nor tested the services, appliances and specific fittings. Room sizes are approximate and should not be relied upon. Any verbal statements or information given about this property, again, should not be relied on and should not form part of a contract or agreement to purchase.

Important Information

  • This is a Freehold property.

Property Ref: FAN240072

Share:

Similar Properties

Church Lane, Laughton

4 Bedroom Link Detached House | Guide Price £1,150,000

GUIDE PRICE: £1,150,000• A large, extended, beautifully enhanced 4 double-bedroomed attached character village/country r...

High Street, Rotherfield

6 Bedroom Detached House | Guide Price £1,150,000

GUIDE PRICE £1,150,000• Important substantial detached 6 bedroom Grade II listed three storey village residence tucked a...

Cottage Lane, Westfield

5 Bedroom Detached House | Guide Price £1,150,000

GUIDE PRICE £1,150,000PLEASE VIEW OUR VIRTUAL TOUR HERE OR ON OUR WEBSITE NEVILLE AND NEVILLE• A BEAUTIFUL DETACHED FIVE...

Plot 5, Heatherlea, Newick Lane

4 Bedroom Detached House | Asking Price £1,195,000

PLOT 5, HEATHERLEA**PLEASE NOTE** - WET ROOMS ARE CURRENTLY BEING INCORPORATED INTO THE NEW FLOOR PLANS - AVAILABLE SOON...

The Warren, Mayfield

5 Bedroom Detached House | Asking Price £1,200,000

MAIN SPECIFICATIONS: A DETACHED FIVE BEDROOMED HOUSE WITH 4 TO 5 RECEPTION ROOMS OF A MODERN CHARACTER STYLE LOCATED ON...

The Village, Alciston

3 Bedroom Detached House | Guide Price £1,200,000

GUIDE PRICE: £1,200,000• Stunning detached countryside home extending to approximately 2,366 sq ft• Set within the tranq...

Neville & Neville Estate Agents (Hailsham)

Cowbeech, Hailsham, East Sussex, BN27 4JL

01323 833 630

How much is your home worth?

Use our short form to request a valuation of your property.

Request a Valuation

Mortgage Calculator

Amount Borrowed: £
Total Amount Repayable: £
Total Monthly Payment: £
©2026 The Guild of Property Professionals. All rights reserved. Terms and Conditions | Privacy Policy | Cookie Policy | Complaints Policy | Members Login
The Guild of Property Professionals Trading Address: 121 Park Lane, London W1K 7AG. GPEA Limited. Registered in England & Wales.  Company No: 02819824.  Registered Office Address: 2 St. Stephen's Court, St. Stephen's Road, Bournemouth, Dorset, England, BH2 6LA.  VAT Registration No: 576 8795 61
Book a Property Valuation Update Cookies Preferences