Estuary View, Appledore, Bideford

£464,995
SSTC
This property listing is now SSTC

3 Bedroom Detached Bungalow for sale in Bideford

3
  • NEW HOME
  • CHALET STYLE BUNGALOW
  • THREE BEDROOMS
  • GARAGE
  • PARKING
  • SOUGHT AFTER LOCATION

NEW HOME
CHALET STYLE BUNGALOW
THREE BEDROOMS
GARAGE
PARKING
SOUGHT AFTER LOCATION

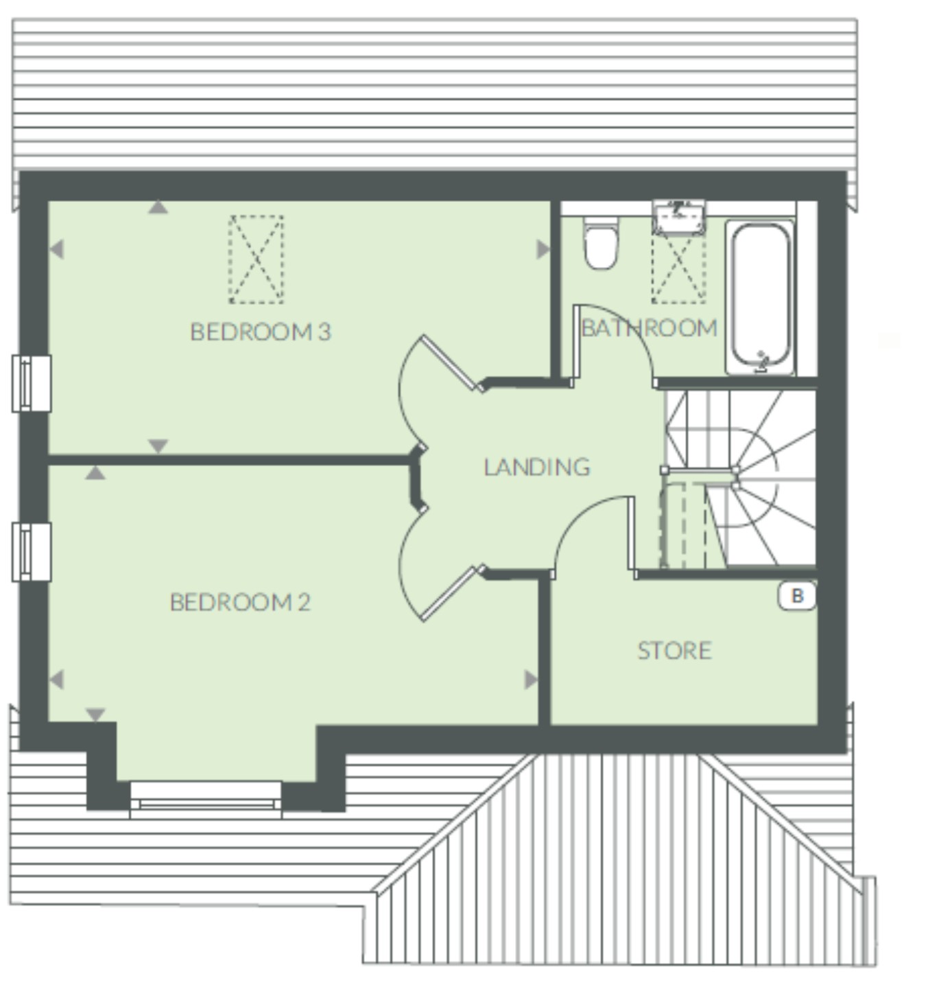
Home 59 is a delightful chalet style bungalow with lounge, kitchen/diner, master bedroom with ensuite on the ground floor. The first floor offers 2 good size bedrooms, family bathroom and an extremely useful store room. Outside you will find enclosed gardens, garage and 2 parking spaces.

Discover our quality contemporary exteriors and superior standards – you will enjoy space and
comfort in abundance.

On the hillside where the River Taw and the River Torridge meet lies the charming village of Appledore. Appledore has a maze of winding cobbled streets, picture-perfect pastel houses and amazing views of the rivers' confluence, with the
village of Instow just across the water.

With Northam Burrows Country Park and Westward Ho! beach directly to the west, your new home at Estuary View is nestled in the UNESCO North Devon Biosphere Reserve, in the ideal position to enjoy beaches, countryside and the pleasures of village life. Appledore is a popular stop along the South West Coast Path – and the opportunities to explore are endless, including the North Devon Area of Outstanding Natural Beauty (AONB), Hartland Heritage Coast and Exmoor National Park.

Perfectly situated to give you the tranquillity of a smaller community, yet with all of the convenience of the bustling town of Bideford, Estuary View is minutes from the A386, offering superb connections to Devon and beyond.

A historic fishing village, Appledore has a lot to offer, including a post office, pubs, excellent schools, a local shop and social club – all within a short walk of your new home.

Living Room 16'2" x 13'8" (4.93m x 4.17m).

Kitchen 12'10" x 7'11" (3.9m x 2.41m).

Dining Room 10'7" x 10'3" (3.23m x 3.12m).

Master Bedroom 12'5" x 10'9" (3.78m x 3.28m).

Bedroom 2 17'10" x 9'2" (5.44m x 2.8m).

Bedroom 3 17'10" x 9'5" (5.44m x 2.87m).

Important Information

  • This is a Freehold property.

Property Ref: BID240266

Share:

Similar Properties

Copse Close, Buckland Brewer, Bideford

4 Bedroom Detached House | £460,000

£15,000 "MOVE IN" INCENTIVE AVAILABLE. Plot 5 - The Cedar - 4 bedroom detached family home with huge level garden, garag...

Marine Parade, Instow, Bideford

3 Bedroom Apartment | Offers in excess of £450,000

*INCREDIBLE ESTUARY AND SEA VIEWS* A rare to the market, top floor, three bedroom 1600SQFT apartment with arguably some...

Northdene, Bideford, Devon

3 Bedroom Detached Bungalow | Guide Price £450,000

"IMMACULATE THREE BEDROOM DETACHED BUNGALOW" This three bedroom detached bungalow has been renovated throughout by the c...

Bay View Road, Northam, Bideford

3 Bedroom Detached Bungalow | Guide Price £465,000

"NO ONWARD CHAIN - THREE BEDROOM CHALET STYLE BUNGALOW" This impressive, three bedroom bungalow can be found located on...

Copse Close, Buckland Brewer, Bideford

4 Bedroom Detached House | £475,000

£15,000 "MOVE IN" INCENTIVE AVAILABLENOW FULLY BUILT AND READY FOR IMMEDIATE OCCUPATIONPlot 4 - The Cedar - 4 bedroom de...

Pen Stour Lane, Appledore, Bideford

3 Bedroom Detached Bungalow | £479,995

INCLUDING flooring throughout, appliances, and en suite vanity, this modern 3-bed bungalow is situated in a picturesque...

Webbers Bideford (Bideford)

Bideford, Devon, EX39 2JW

01237 472344

How much is your home worth?

Use our short form to request a valuation of your property.

Request a Valuation

Mortgage Calculator

Amount Borrowed: £
Total Amount Repayable: £
Total Monthly Payment: £
©2026 The Guild of Property Professionals. All rights reserved. Terms and Conditions | Privacy Policy | Cookie Policy | Complaints Policy | Members Login
The Guild of Property Professionals Trading Address: 121 Park Lane, London W1K 7AG. GPEA Limited. Registered in England & Wales.  Company No: 02819824.  Registered Office Address: 2 St. Stephen's Court, St. Stephen's Road, Bournemouth, Dorset, England, BH2 6LA.  VAT Registration No: 576 8795 61
Book a Property Valuation Update Cookies Preferences