Coxes Farm Road, Billericay

Offers in excess of
£350,000

3 Bedroom Land for sale in Billericay

1 3 2
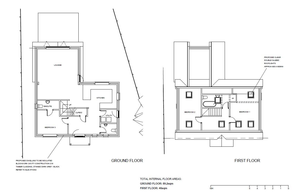
  • Parcel of land with planning permission granted for a three-bedroom chalet-style dwelling
  • Located in the highly desirable Coxes Farm area of Billericay
  • Opportunity to build a bespoke family home
  • Plans include spacious living accommodation arranged over two floors
  • Open-plan kitchen and living space
  • Ground floor bedroom with en-suite
  • Quiet semi-rural surroundings over looking fields while remaining close to local amenities
  • Convenient access to Billericay High Street, shops, restaurants, and leisure facilities
  • Mainline railway station nearby offering direct services to London
  • Ideal opportunity for self-builders, investors, or developers in a sought-after location

** Development Opportunity ** Land with Planning Permission for a 3 Bedroom Chalet, Coxes Farm, Billericay **

An excellent opportunity to acquire a parcel of land with granted planning permission for the construction of a well-designed three-bedroom chalet-style dwelling, situated within the highly desirable Coxes Farm area of Billericay.

This attractive plot offers the ideal setting for a bespoke family home in a peaceful semi-rural location while remaining conveniently close to local amenities, schools, and transport links. The approved plans provide for a stylish three-bedroom chalet residence, designed to maximise both living space and natural light, creating a comfortable and modern home environment.

The proposed accommodation includes spacious open-plan living areas, well-proportioned bedrooms, and a flexible layout suited to contemporary family living. The chalet design allows for generous ground floor accommodation complemented by additional bedrooms and bathroom facilities on the upper level.

Coxes Farm is widely regarded as one of the more sought-after locations within Billericay, offering a charming blend of countryside surroundings with easy access to the town centre. Billericay itself provides a range of shops, restaurants, and leisure facilities, along with a mainline railway station offering direct services into London, making it an ideal location for commuters.

This plot represents an exciting opportunity for developers, investors, or private buyers looking to build their own home in a desirable and established residential setting.

Further details regarding the planning consent and site information are available upon request.

Important Information

  • This is a Freehold property.

Property Ref: 34546789

Share:

Similar Properties

Ramsden View Road, Wickford

3 Bedroom Plot | Asking Price £350,000

*** PLANNING APPROVED *** READY TO BUILD *** An exceptional opportunity to acquire a planning-approved residential build...

Long Meadow Drive, Wickford

2 Bedroom Semi-Detached Bungalow | Guide Price £350,000

*** GUIDE PRICE £350,000 - £375,000 *** CHAIN FREE ***Nestled in the charming area of Long Meadow Drive, Wickford, this...

Bridge Road, Wickford

3 Bedroom Terraced House | Guide Price £350,000

** GUIDE PRICE £350,000 - £370,000 **Cowling & Payne are delighted to present this THREE bedroom terraced house for sale...

West Road, South Ockendon

2 Bedroom End of Terrace House | Guide Price £365,000

** GUIDE PRICE £365,000 - £375,000 ** This beautifully presented two-bedroom end of terrace home is offered to the marke...

Kenley Close, Wickford

2 Bedroom Semi-Detached House | Guide Price £375,000

*** GUIDE PRICE £375,000 - £400,000 ***Nestled in the quiet cul-de-sac of Kenley Close, Wickford. This well-presented an...

Pound Lane Central, Steeple View, Laindon

2 Bedroom End of Terrace House | Guide Price £375,000

**** GUIDE PRICE £375,000 - £400,000 ****This exceptional two-bedroom residence is presented to the market in impeccable...

Cowling & Payne (Wickford)

Runwell Road, Wickford, Essex, SS11 7AB

01268 730 707

How much is your home worth?

Use our short form to request a valuation of your property.

Request a Valuation

Mortgage Calculator

Amount Borrowed: £
Total Amount Repayable: £
Total Monthly Payment: £
©2026 The Guild of Property Professionals. All rights reserved. Terms and Conditions | Privacy Policy | Cookie Policy | Complaints Policy | Members Login
The Guild of Property Professionals Trading Address: 121 Park Lane, London W1K 7AG. GPEA Limited. Registered in England & Wales.  Company No: 02819824.  Registered Office Address: 2 St. Stephen's Court, St. Stephen's Road, Bournemouth, Dorset, England, BH2 6LA.  VAT Registration No: 576 8795 61
Book a Property Valuation Update Cookies Preferences