Clifton Avenue, Billingham, TS22

Guide Price
£200,000
SSTC
This property listing is now SSTC

3 Bedroom Semi-Detached House for sale in Billingham

1 3 1
  • Three Bedrooms Semi Detached
  • Close To Local Schools
  • UPVC Double Glazing
  • Gas Central Heating
  • Energy Efficiency Rating: D

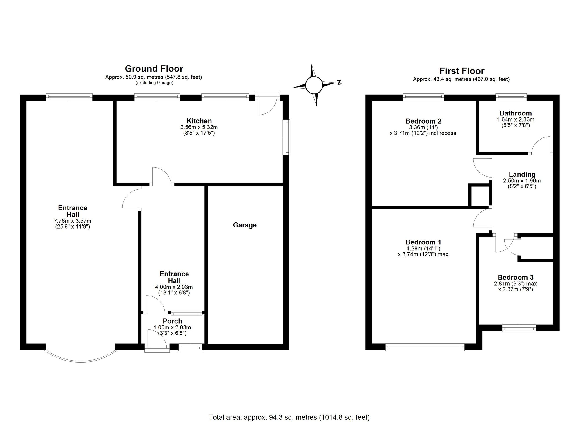
This well-presented three bedroom semi-detached home offers spacious and versatile accommodation, ideally located close to local schools and amenities. The property features UPVC double glazing and gas central heating throughout, ensuring comfort and energy efficiency. The ground floor comprises a welcoming porch, a bright and airy hallway, a generous lounge/diner with ample space for family living, and a modern fitted kitchen with integrated appliances and stylish units. Upstairs, you will find a contemporary bathroom and three well-proportioned bedrooms, making this property perfect for families or those seeking extra space.

Externally, the property benefits from a driveway providing off-road parking and access to a garage, offering additional storage or secure parking. The rear of the home boasts a delightful west-facing garden, ideal for enjoying afternoon and evening sunshine. The garden is mainly laid to lawn with a patio area, perfect for outdoor dining or entertaining guests. With its attractive exterior, practical layout, and convenient location, this property offers an excellent opportunity for buyers looking to settle in a popular residential area.

While we have made efforts to ensure the accuracy of the information provided in our sales particulars, please note that we have gathered this information from the seller. Should you require further details or clarification on any specific matter, we kindly request you to contact our office where we are ready to gather evidence or conduct further investigations on your behalf.

It is important to note that Northgate has not tested any of the services, appliances, or equipment within this property. Therefore, we strongly recommend that prospective buyers arrange for their independent surveys or service reports before finalising the purchase of the property.

Important Information

  • This is a Freehold property.
  • This Council Tax band for this property is: C
  • EPC Rating is D

Property Ref: 41816e19-6706-4f06-95bb-f6f055cb8e02

Share:

Similar Properties

West Avenue, Billingham, TS23

3 Bedroom Semi-Detached House | Offers in excess of £200,000

Ashton Road, Norton, TS20

3 Bedroom Semi-Detached House | £200,000

Speeton Close, Billingham, TS23

3 Bedroom Detached House | Offers in excess of £200,000

Conifer Crescent, Billingham, TS23

4 Bedroom Semi-Detached House | Offers in excess of £210,000

Stapleton Street, Stockton-On-Tees, TS20

3 Bedroom Detached Bungalow | Offers in excess of £220,000

Chaldron Way, Eaglescliffe, TS16

3 Bedroom Detached House | Offers Over £220,000

Northgate Estate Agents (Billingham)

8 Town Square, Billingham, County Durham, TS23 2LY

01642 813 222

How much is your home worth?

Use our short form to request a valuation of your property.

Request a Valuation

Mortgage Calculator

Amount Borrowed: £
Total Amount Repayable: £
Total Monthly Payment: £
©2026 The Guild of Property Professionals. All rights reserved. Terms and Conditions | Privacy Policy | Cookie Policy | Complaints Policy | Members Login
The Guild of Property Professionals Trading Address: 121 Park Lane, London W1K 7AG. GPEA Limited. Registered in England & Wales.  Company No: 02819824.  Registered Office Address: 2 St. Stephen's Court, St. Stephen's Road, Bournemouth, Dorset, England, BH2 6LA.  VAT Registration No: 576 8795 61
Book a Property Valuation Update Cookies Preferences