Deighton Grove, Billingham, TS23

Offers in excess of
£180,000
SSTC
This property listing is now SSTC

3 Bedroom Semi-Detached House for sale in Billingham

1 3 2
  • Three Bedroom Semi Detached
  • Ground Floor Wc & Family Bathroom
  • Driveway & Garage
  • UPVC Double Glazing
  • Gas Central Heating
  • EPC Rating: C

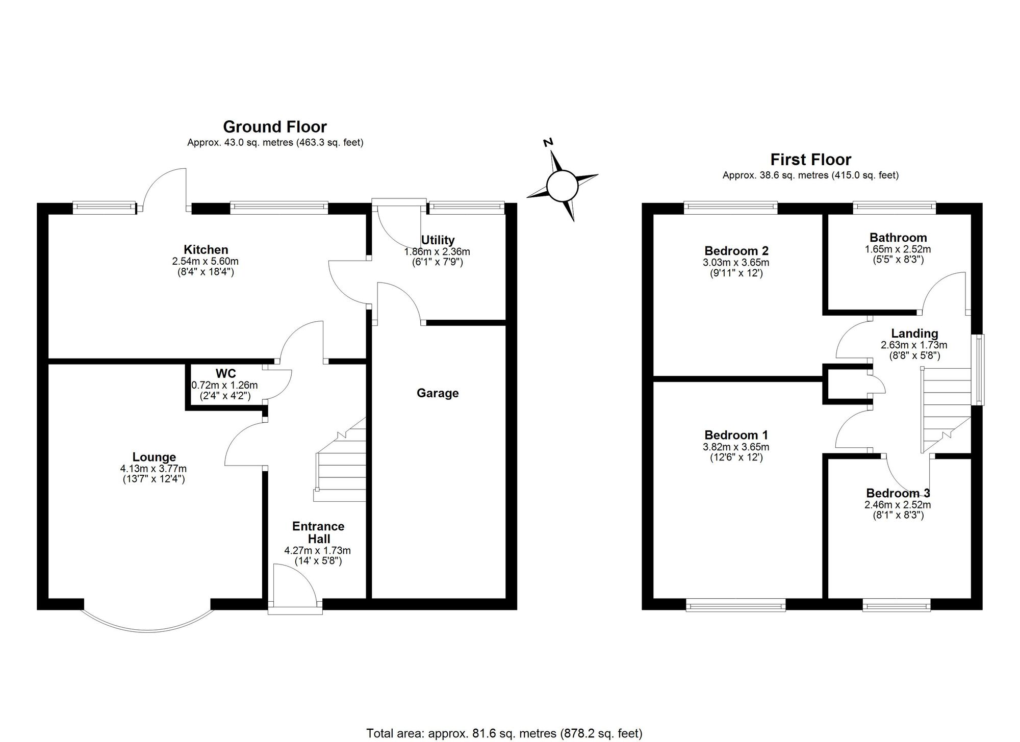
Situated in a sought-after cul-de-sac in High Grange, Billingham, this well-presented three bedroom semi-detached home offers spacious and versatile accommodation, ideal for families or professionals. The property features an inviting entrance hall, a convenient ground floor WC, a generous lounge, and a modern kitchen/diner that provides ample space for entertaining. A separate utility room adds practicality and storage options. Upstairs, you will find three well-proportioned bedrooms and a contemporary family bathroom. The home benefits from UPVC double glazing and efficient gas central heating throughout, ensuring comfort all year round. Additional features include a driveway and garage (providing ample off-street parking and secure storage) as well as gated access to the rear, which offers further parking options. The property is set in a popular residential area, close to local amenities, reputable schools, and transport links, making it an excellent choice for those seeking convenience and a welcoming community atmosphere. This attractive home combines modern living with practical features, presenting a fantastic opportunity for buyers looking to settle in a desirable Billingham location.

While we have made efforts to ensure the accuracy of the information provided in our sales particulars, please note that we have gathered this information from the seller. Should you require further details or clarification on any specific matter, we kindly request you to contact our office where we are ready to gather evidence or conduct further investigations on your behalf.

It is important to note that Northgate has not tested any of the services, appliances, or equipment within this property. Therefore, we strongly recommend that prospective buyers arrange for their independent surveys or service reports before finalising the purchase of the property.

Important Information

  • This is a Freehold property.
  • This Council Tax band for this property is: B
  • EPC Rating is C

Property Ref: d39295af-422a-4ddd-921a-e2ec287d6c2d

Share:

Similar Properties

Conifer Crescent, Billingham, TS23

3 Bedroom Semi-Detached House | Offers in excess of £180,000

Wallington Road, Billingham, TS23

3 Bedroom Detached House | Offers in excess of £175,000

Grosvenor Road, Billingham, TS22

3 Bedroom Semi-Detached House | Offers Over £170,000

Leeholme Gardens, Billingham, TS23

4 Bedroom Detached House | Offers in excess of £190,000

Vickers Lane, Hartlepool, TS25

3 Bedroom Detached House | Offers in excess of £200,000

Speeton Close, Billingham, TS23

3 Bedroom Detached House | Offers in excess of £200,000

Northgate Estate Agents (Billingham)

8 Town Square, Billingham, County Durham, TS23 2LY

01642 813 222

How much is your home worth?

Use our short form to request a valuation of your property.

Request a Valuation

Mortgage Calculator

Amount Borrowed: £
Total Amount Repayable: £
Total Monthly Payment: £
©2026 The Guild of Property Professionals. All rights reserved. Terms and Conditions | Privacy Policy | Cookie Policy | Complaints Policy | Members Login
The Guild of Property Professionals Trading Address: 121 Park Lane, London W1K 7AG. GPEA Limited. Registered in England & Wales.  Company No: 02819824.  Registered Office Address: 2 St. Stephen's Court, St. Stephen's Road, Bournemouth, Dorset, England, BH2 6LA.  VAT Registration No: 576 8795 61
Book a Property Valuation Update Cookies Preferences