Grosvenor Road, Harborne, Birmingham, B17

Guide Price
£475,000

4 Bedroom Terraced House for sale in Birmingham

2 4 2

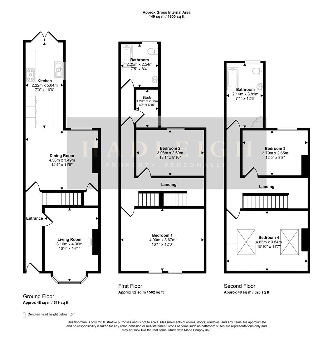
Hadleigh Estate Agents are delighted to offer this substantial four bedroom property for sale. Set over three floors the property is offered with no upward chain and is located on the ever popular Grosvenor Road.

The property comprises of entrance hallway, front living room and rear dining room. Modern fitted kitchen with patio doors leading to the garden. The first floor boasts two double bedrooms, a modern family bathroom and additional study room. Benefitting from a dormer loft conversion the property boasts a further two double bedrooms and additional family bathroom.

Location - GROSVENOR ROAD is within close proximity to all the usual amenities that Harborne has to offer, including good local schooling, easy access to Harborne High Street, Queen Elizabeth Medical Complex and University of Birmingham. Popular motorway network links which are easily accessible - perfect for commuters. The property is surrounded by an abundance of wonderful recreational facilities too such as Harborne Leisure Centre, Queens Park and Harborne Golf Club & Harborne Municipal Golf Course providing plenty of opportunities to unwind.

Reception Hall - Central heating radiator, two ceiling light points, center archway, staircase to the first floor landing, tiled floor and double glazed front door.

Living Room - Feature fireplace with ornate tiling, central heating radiator, laminate flooring, ceiling light point, power points and double glazed bay window to front.

Dining Room - Two central heating radiators, laminate flooring, understairs storage/cloaks cupboard and double glazed window to rear.

Kitchen - Sink unit and drainer, range of base and wall units, contrasting worktop, five ring gas hob, single door oven, microwave, integrated dishwasher, fridge/freezer, double glazed window to side and patio doors to the rear garden.

On The First Floor - A tread staircase leads to the first floor landing with a central heating radiator.

Bedroom One - Two central heating radiators, power points, ceiling spotlighting and two double glazed windows to front.

Bedroom Two - Central heating radiator, power points, ceiling spotlights and double glazed window to rear.

Study - Double glazed window to side elevation, ceiling spotlights and central heating radiator.

Bathroom - 'P' shaped bath with shower over, floating vanity and low level WC, wall tiling, towel radiator, ceiling spotlights and double glazed window to rear.

On The Second Floor - A further staircase leads to the second floor landing.

Bedroom Three - Central heating radiator, power points and two "Velux" skylights to front.

Bedroom Four - Central heating radiator, power points, ceiling light point and double glazed window to rear.

Second Floor Bathroom - A modern suite with freestanding bath with claw feet, corner shower cubicle, wash hand basin, low level WC, towel radiator and double glazed window to rear.

Outside - The property is set back behind a small front garden whilst the rear garden comprises a patio, lawn, established borders and side gate to front.

General Information - We have been advised the following information, however we advise for you to confirm this with your legal representative as Hadleigh Estate Agents cannot be held accountable.
Tenure - Freehold
EPC - D
Council Tax Band - D

Property Ref: 60184_34189957

Share:

Similar Properties

Clarence Road, Harborne, Birmingham, B17

3 Bedroom Terraced House | Guide Price £470,000

Hadleigh Estate Agents are delighted to offer this substantial three bedroom terraced property for sale. Located on the...

Elford Road, Harborne, Birmingham, B17

3 Bedroom Detached House | Guide Price £460,000

Hadleigh Estate Agents are delighted to offer this substantial detached property for sale. Offered with no upward chain...

Carless Avenue, Harborne, Birmingham, B17

3 Bedroom Terraced House | Offers in region of £450,000

An extended three bedroomed end terrace situated on the ever popular Moor Pool Estate and benefitting from a front drive...

High Brow, Harborne, Birmingham, B17

3 Bedroom End of Terrace House | Offers in region of £480,000

Hadleigh Estate Agents are delighted to offer the opportunity to acquire a beautiful three bedroom end terraced home loc...

Serpentine Road, Harborne, Birmingham, B17

2 Bedroom Terraced House | Guide Price £489,000

Hadleigh Estate Agents are delighted to offer this substantial two bedroom terraced property, located on the highly desi...

Wood Lane, Harborne, Birmingham, B17

3 Bedroom Terraced House | Offers Over £495,000

Hadleigh Estate Agents are delighted to offer this substantial three bedroom terraced home for sale. Set over three floo...

Hadleigh Estate Agents (Harborne)

High Street, Harborne, Birmingham, B17 9QG

01214 271 213

How much is your home worth?

Use our short form to request a valuation of your property.

Request a Valuation

Mortgage Calculator

Amount Borrowed: £
Total Amount Repayable: £
Total Monthly Payment: £
©2026 The Guild of Property Professionals. All rights reserved. Terms and Conditions | Privacy Policy | Cookie Policy | Complaints Policy | Members Login
The Guild of Property Professionals Trading Address: 121 Park Lane, London W1K 7AG. GPEA Limited. Registered in England & Wales.  Company No: 02819824.  Registered Office Address: 2 St. Stephen's Court, St. Stephen's Road, Bournemouth, Dorset, England, BH2 6LA.  VAT Registration No: 576 8795 61
Book a Property Valuation Update Cookies Preferences