Wiseman Grove, Birmingham

£230,000
SSTC
This property listing is now SSTC

2 Bedroom Bungalow for sale in Birmingham

2
  • Excellent detached bungalow
  • Through lounge with kitchen
  • Fitted kitchen & side lobby
  • Bathroom
  • Two double bedrooms & bathroom
  • Landscaped rear garden and off road parking
  • Garage with electric door
  • Gas Centrally Heated with Combi Boiler
  • No Upward Chain and Vacant Possession

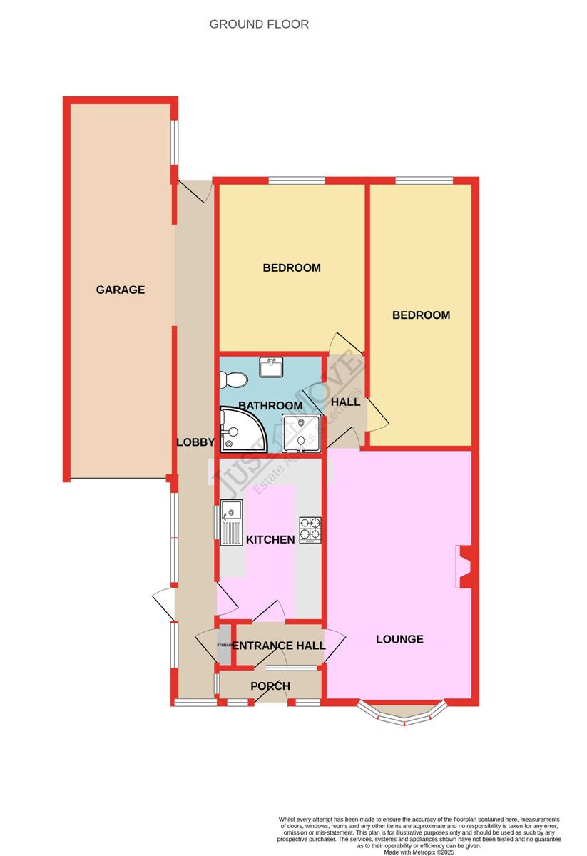
"DETACHED BUNGALOW" this excellent property is offered to the market with no upward chain and offers spacious well appointed living accommodation, located in a quiet cul de sac close to local amenities and situated just off College road. An internal viewing is highly recommended. EPC rating C. The property sits behind a well appointed paved fore garden with driveway and has an enclosed porch leading into the hallway with doors off to the spacious through lounge, modern kitchen, two large extended bedrooms with a separate family bathroom. There is an extended garage having an electric up & over door and housing the combination boiler. Outside is a quaint private low maintenance rear garden and off road parking to the fore.

Council Tax Band: Band C (Birmingham City Council)
Tenure: Freehold
Parking options: Driveway, Garage
Garden details: Rear Garden


Agents Notes
Please note we are currently outstanding Probate to be granted on the property so this may cause a delay when a sale is agreed.

All room measurements are taken at a maximum.

Approached Via
Private driveway leading to enclosed porch.

Enclosed Porch
Front aspect double glazed windows and porch with door to hall.

Hall
Laminate wood flooring and doors off to lounge and kitchen.

Large Lounge/Diner w: 3.35m x l: 5.79m (w: 11' x l: 19' )
Front aspect double glazed bow window, radiator, wooden fire surround with doors leading to inner hallway.

Kitchen w: 2.44m x l: 3.66m (w: 8' x l: 12' )
Side aspect double glazed window, wall & base units with inset stainless steel sink & drainer, four ring gas hob with extractor and electric oven. space for washing and fridge freezer and door to side lobby.

Inner Hallway
with doors off to bedrooms and family bathroom.

Bedroom One w: 2.44m x l: 5.79m (w: 8' x l: 19' )
Extended bedroom with built in wardrobes, laminate wood flooring and radiator.

Bedroom Two w: 3.35m x l: 3.66m (w: 11' x l: 12' )
Extended bedroom with rear aspect double glazed window and radiator and laminate wood flooring.

Bathroom w: 2.44m x l: 1.83m (w: 8' x l: 6' )
With rear aspect double glazed window, corner bath with mixer tap and shower head, walk in shower cubicle with power shower over, wash hand basin in vanity unit with storage and low level wc. Tiled walls and flooring and extractor fan.

Side Lobby
Double glazed windows to side aspect, built in storage cupboard, door to side of property and opening into garage area with rear wooden door to garden.

Garage w: 2.44m x l: 8.53m (w: 8' x l: 28' )
With side aspect double glazed window, wall mounted Worcester boiler, electric metal up & over door, power and lighting.

Outside
The rear garden is paved with steps leading to a block paved low maintenance garden with shurb borders and garden shed, there is also a water butt and retaining fencing.

The fore garden has a feature paved frontage with metal railings leading to the enclosed porch and having off road parking and access to the garage.

Important Information

  • This is a Freehold property.

Property Ref: 234333_RS2165

Share:

Similar Properties

Cherry Tree Avenue, Walsall

2 Bedroom Semi-Detached House | Offers in region of £230,000

NO UPWARD CHAIN" This two bedroom semi detached is situated in a highly popular area of Walsall and offers convenient ac...

Ewell Road, Birmingham

3 Bedroom Semi-Detached House | Offers in region of £230,000

"IDEAL INVESTMENT PROPERTY" A three bedroom traditional semi detached property for sale with no upward chain and making...

Calthorpe Mansions,Five Ways, Edgbaston

3 Bedroom Apartment | £230,000

Spacious three bedroom apartment in Calthorpe Mansions, offering traditional mansion style charm. Located on second floo...

Brookside, Great Barr, Birmingham

3 Bedroom Semi-Detached House | Offers in region of £235,000

This spacious semi-detached family home offers a fantastic blank canvas, perfect for buyers looking to personalise their...

Perry Common Road, Birmingham

3 Bedroom Terraced House | Offers Over £240,000

An exceptional mid terrace property offering spacious extended living accommodation ideal for the first time or family p...

6 Valerie Grove, Birmingham

3 Bedroom Semi-Detached House | Offers Over £250,000

This bay-fronted, semi-detached family home is situated in a cul-de-sac and features a through lounge/dining area, three...

Just Move Estate Agents & Lettings (Great Barr)

Great Barr, Birmingham, B43 6BW

0121 377 8899

How much is your home worth?

Use our short form to request a valuation of your property.

Request a Valuation

Mortgage Calculator

Amount Borrowed: £
Total Amount Repayable: £
Total Monthly Payment: £
©2025 The Guild of Property Professionals. All rights reserved. Terms and Conditions | Privacy Policy | Cookie Policy | Complaints Policy | Members Login
The Guild of Property Professionals Trading Address: 121 Park Lane, London W1K 7AG. GPEA Limited. Registered in England & Wales.  Company No: 02819824.  Registered Office Address: 2 St. Stephen's Court, St. Stephen's Road, Bournemouth, Dorset, England, BH2 6LA.  VAT Registration No: 576 8795 61
Book a Property Valuation Update Cookies Preferences