Oak Barn, Attleboro Lane, Birmingham

£750,000

4 Bedroom Barn Conversion for sale in Birmingham

4

Welcome to Oak Barn, Attleboro Lane, Water Orton!

A truly impressive semi-detached barn conversion that seamlessly blends rustic charm with modern living. This property offers a rare combination of character and contemporary design, making it a standout in the area.

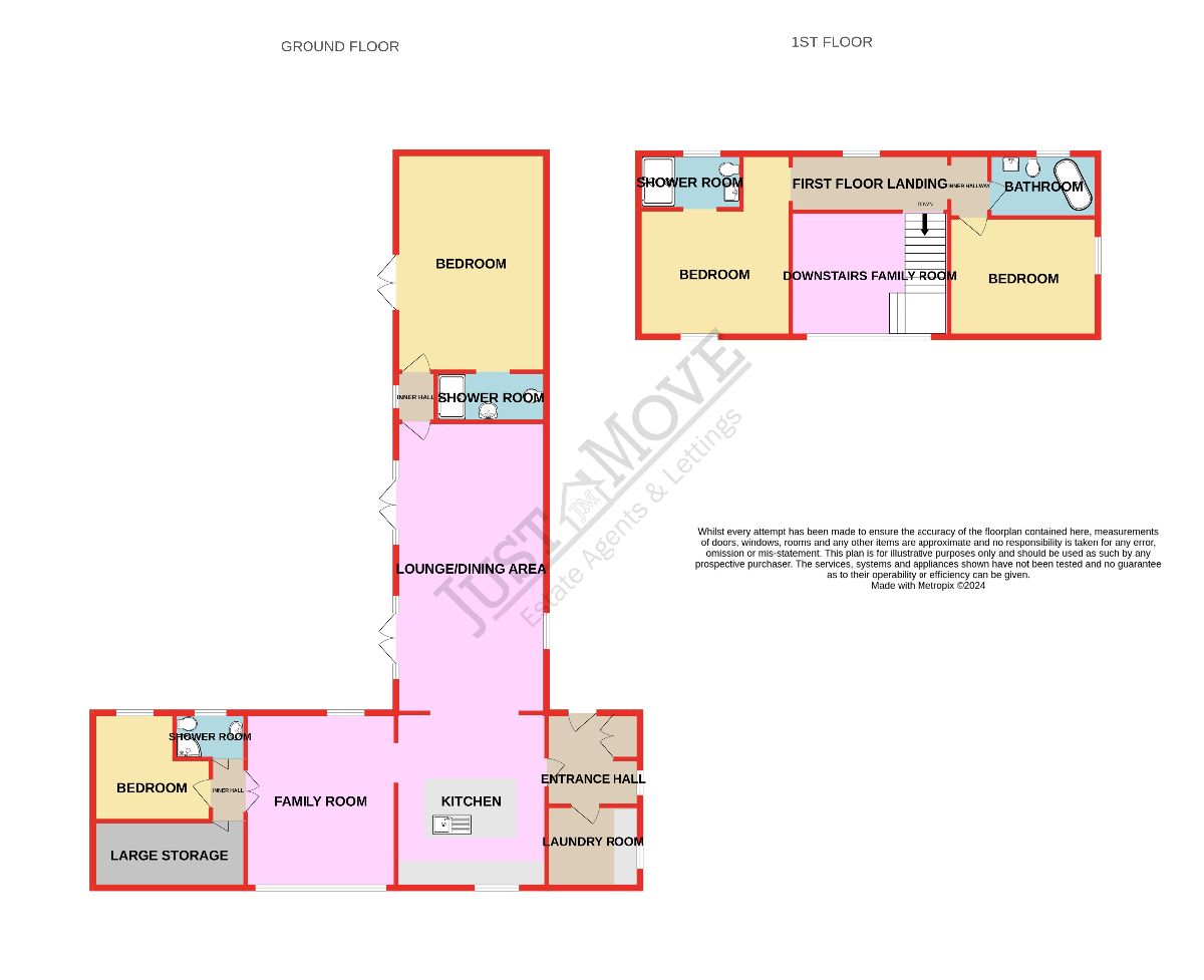
Upon entering through the entrance hallway, you'll be greeted by an expansive open-plan kitchen, dining, and lounge area-a true highlight of the home. The modern kitchen features a central island with under-counter cupboards, a wine cooler, and an inset sink and drainer, making it ideal for both entertaining and everyday living. The adjoining sitting room, with its striking floor-to-ceiling windows, allows natural light to flood the space, creating a warm and inviting atmosphere. From here, stairs rise to a beautiful gallery landing, adding an extra touch of elegance and offering a unique vantage point over the living area.

The property boasts four generously sized double bedrooms, each with its own en-suite shower or bathroom, providing comfort and privacy for all residents. Two of these bedrooms are conveniently located on the ground floor, while the remaining two are situated on the first floor.

In addition to the main living spaces, the entrance hallway also provides access to a laundry room. While functional, this room offers a fantastic opportunity for new owners to update and customise the space to suit their needs.

Outside, the property continues to impress with a secure driveway accessed via wrought iron electric gates, providing ample parking for multiple vehicles. The enclosed rear garden features a paved patio area, perfect for outdoor dining and relaxation, with a well-maintained lawn bordered by timber fencing and hedging.

Oak Barn has been thoughtfully modernised in part, with select rooms offering the chance for new owners to add their personal touch. The property retains its original charm with exposed beams and high ceilings, complemented by double-glazed wooden framed windows and doors that open onto the garden.

This freehold property is undeniably attractive but comes with some considerations. The ongoing HS2 development is causing disruption in the area, so potential viewers should plan their visits accordingly. While this may be a factor to consider, Oak Barn remains a rare opportunity to acquire a distinctive and versatile home that offers both charm and modern conveniences.

Don't miss the chance to make Oak Barn your own-schedule a viewing today, keeping in mind the current travel disruptions. For additional information, be sure to speak with the selling agent.

Council Tax Band: F (North Warwickshire Borough Council)
Tenure: Freehold

Entrance Hall
Having ceiling spot lights, double glazed window to the side aspect, useful storage cupboard and tiled flooring.

Laundry Room w: 2.54m x l: 2.22m (w: 8' 4" x l: 7' 3")
Having ceiling light point, double glazed window to the side aspect, wall mounted gas central heating boiler, plumbing for a washing machine and tiled flooring.

Kitchen Area w: 4.05m x l: 4.78m (w: 13' 3" x l: 15' 8")
Modern kitchen with a range of fitted units, work surfaces, island with wine cooler and inset single drainer sink unit, integral oven, ceiling spot lights, rear aspect double glazed window and tiled flooring

Lounge/diner w: 4.21m x l: 7.88m (w: 13' 10" x l: 25' 10")
Through from the kitchen area providing open plan living space the lounge/dining area having ceiling light point, two double glazed wooden framed double doors opening out to the rear garden, double glazed windows, t.v. point, power points and door leading to

Inner Hallway
Having side aspect double glazed window and door leading to

Bedroom Two w: 4.28m x l: 5.64m (w: 14' 1" x l: 18' 6")
Having two ceiling light points, central heating radiator, power points and double glazed wooden framed double doors opening out to the rear garden.

Shower Room w: 0.84m x l: 3.23m (w: 2' 9" x l: 10' 7")
Off from bedroom two is a shower area complete with shower cubicle, low level flush w.c., wash hand basin, splashback tiling, ceiling light point, double glazed window and tiled flooring.

Sitting Room w: 4.08m x l: 5.14m (w: 13' 5" x l: 16' 10")
From the kitchen area walk through into the sitting room with ceiling spot lights, floor to ceiling double glazed windows to the front aspect, double glazed window to the rear aspect, two central heating radiators, power points, t.v. point, stairs rising to the first floor and double opening doors lead to

Inner Hallway
Having wood effect floor and connecting doors to bedroom, large store and shower en-suite

Bedroom Four w: 3.06m x l: 3.16m (w: 10' x l: 10' 4")
Having ceiling light point, rear aspect double glazed window and central heating radiator.

Shower En-Suite (two)
Fitted with a corner shower cubicle, w.c., wash hand basin, splashback tiling, ceiling light point, obscure double glazed to the rear aspect and wood effect flooring.

Large Storage Area
From the inner hall, door leads through to the large storage area doubling up as an additional bedroom offers versaility and would also make a useful office space/store. The area having ceiling light point, central heating radiator, power points and wood effect flooring..

First Floor Landing
From the sitting room stairs rise to the impressive first floor with exposed beams to the ceiling, ceiling light point, two wall light points, central heating radiator, power point and rear aspect double glazed window.

Bedroom One w: 4.18m x l: 3.58m (w: 13' 9" x l: 11' 9")
From the landing walk through into bedroom one complete with exposed beams, ceiling light point, double glazed sky light window, central heating radiator and power points.

Shower En-Suite (three) w: 2.79m x l: 1.43m (w: 9' 2" x l: 4' 8")
Having shower, low level flush w.c., wash hand basin set within a vanity unit, splashback tiling, tiled flooring, rear aspect double glazed window and ceiling spot lights.

Bedroom Three w: 4.17m x l: 3.26m (w: 13' 8" x l: 10' 8")
Having ceiling light point, side aspect double glazed window, central heating radiator, power points and exposed beams to ceiling.

Bathroom w: 2.96m x l: 1.66m (w: 9' 9" x l: 5' 5")
Fitted with a white suite the modern styled bathroom is fitted with a free standing oval shaped bathroom, low level flush w.c., wash hand basin, splashback tiling to the main walls, tiled flooring, ceiling light point, double glazed sky light window, and central heating radiator.

Outside
To the front being block paved, and with wrought iron electric gates providing access to the driveway, allowing parking for multiple vehicles.

the rear garden having paved patio area with lawn beyond and being bound within by timber fencing and hedged borders.

Tenure
As per the land registry obtained by the agent we understand the property is freehold which should be further verified by a prospective purchasers appointed solicitor.

Agents Notes
Please note that access to the property is currently via an HS2 work site, which is part of the ongoing development of the new high-speed railway. While this provides excellent future transport links and potential increases in property value once the project is complete, buyers should be aware of the following considerations:

Temporary Disruption: Access to the property may be affected during certain periods due to ongoing construction activities. This could include temporary road closures, diversions, and the presence of construction vehicles.

Noise and Dust: The proximity to the work site may result in increased noise levels and dust, particularly during peak construction times. This is expected to subside as the project progresses toward completion.

Construction Times: Construction work typically follows a set schedule but may occasionally occur outside of regular hours. It is advisable to check the latest information on construction times to plan accordingly.

Important Information

  • This is a Freehold property.

Property Ref: RS1673

Share:

Similar Properties

Beecroft Avenue, Lichfield

4 Bedroom Bungalow | Offers Over £650,000

This exceptional four-bedroom Dormer Bungalow offers modern luxury with an open-plan living area, bi-fold doors and unde...

Silver Birch Road, Birmingham

7 Bedroom Detached House | Offers in region of £580,000

We are delighted to present this impressive seven-bedroom family residence, formerly a residential care home. Set on a g...

Hinstock Road, Birmingham

6 Bedroom Semi-Detached House | Offers in region of £450,000

SIX BEDROOM THREE STOREY PERIOD PROPERTY MUST BE VIEWED" We are delighted to offer this exceptional character property t...

Just Move Estate Agents & Lettings (Great Barr)

Great Barr, Birmingham, B43 6BW

0121 377 8899

How much is your home worth?

Use our short form to request a valuation of your property.

Request a Valuation

Mortgage Calculator

Amount Borrowed: £
Total Amount Repayable: £
Total Monthly Payment: £
©2026 The Guild of Property Professionals. All rights reserved. Terms and Conditions | Privacy Policy | Cookie Policy | Complaints Policy | Members Login
The Guild of Property Professionals Trading Address: 121 Park Lane, London W1K 7AG. GPEA Limited. Registered in England & Wales.  Company No: 02819824.  Registered Office Address: 2 St. Stephen's Court, St. Stephen's Road, Bournemouth, Dorset, England, BH2 6LA.  VAT Registration No: 576 8795 61
Book a Property Valuation Update Cookies Preferences