Gainsborough Road, Black Notley, Braintree

Guide Price
£575,000
SSTC
This property listing is now SSTC

5 Bedroom Detached House for sale in Black Notley, Braintree

2 5 4
  • NO ONWARD CHAIN!!
  • UNOVERLOOKED & Sizeable Rear Garden
  • Detached DOUBLE GARAGE & Driveway For 4-5 Vehicles
  • TWO EN-SUITES Plus Dressing Room To Master Bedroom
  • Impressively Sized Five DOUBLE Bedroom Three-Storey Home
  • 26' DUAL ASPECT Lounge & BAY-FRONTED Dining Room
  • Quiet MEWS LOCATION Within Sought After Village
  • Just 1 Mile To Cressing Station (Link To London Liverpool Street)
  • Spacious Kitchen/Breakfast Room Plus UTILITY ROOM & D/Stairs Cloakroom
  • Easy Access To Braintree/Witham, A120/M11 & Chelmsford

**NO ONWARD CHAIN**Boasting 1900 SQ FT of internal accommodation, a 26' DUAL ASPECT lounge, BAY-FRONTED dining room plus sizeable UNOVERLOOKED rear garden & detached DOUBLE GARAGE with driveway for 4-5 vehicles is this impressive five DOUBLE bedroom three-storey property. Offering TWO EN-SUITES plus DRESSING ROOM to master bedroom, a spacious kitchen/breakfast room plus UTILITY room & d/stairs cloakroom and ideally positioned in a MEWS LOCATION within the sought after village of Black Notley. Just 1 mile to Cressing Station (with links to London Liverpool Street) and within easy access of all local amenities & popular schools - Viewings highly advised!!

***GUIDE PRICE £575,000-£600,000***

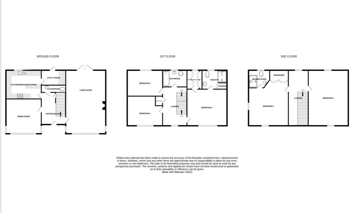
The accommodation, with approximate room sizes, is as follows:

Ground Floor Accommodation: -

Entrance Hall: - Two double glazed Sash windows to front aspect, part-glazed entry door, stairs to first floor, under stairs storage cupboard, radiator, wooden flooring and smooth coved ceiling.

Cloakroom: - Inset WC, vanity wash hand basin with tiled splash backs, heated towel rail, extractor fan, tiled flooring and smooth ceiling.

Lounge: - 8.08m x 3.63m (26'06 x 11'11) - Double glazed Sash window to front aspect, central log burner with hearth and surround, two radiators, carpeted flooring and smooth coved ceiling. French doors onto rear garden.

Dining Room: - 4.17m x 3.53m (13'08 x 11'07) - Double glazed bay window to front aspect, radiator, carpeted flooring and smooth coved ceiling.

Kitchen / Breakfast Room: - 3.76m x 3.53m (12'04 x 11'07) - Double glazed Sash window to rear aspect, a series of matching base and wall units, edged work surfaces in Granite incorporating single bowl sink with central mixer tap, integrated Siemens appliances including two built-in ovens, microwave combi oven and two warming drawers, gas hob with extractor hood over, integrated fridge/freezer and dishwasher, floating island, radiator, tiled flooring and smooth ceiling with sunken spotlights.

Utility Room: - A series of matching base and wall units, edged work surfaces incorporating single bowl sink with central mixer tap and drainer, space for washing machine and tumble dryer, wall-mounted boiler, radiator, tiled flooring and smooth ceiling. Door to rear garden.

First Floor Accommodation: -

Landing: - Double glazed Sash window to front aspect, stairs to second floor, airing cupboard, radiator, carpeted flooring and smooth ceiling.

Master Bedroom: - 4.17m x 3.68m (13'08 x 12'01) - Double glazed Sash window to front aspect, radiator, carpeted flooring and smooth ceiling.

Dressing Room: - Double glazed Sash window to rear aspect, built-in wardrobes, radiator, carpeted flooring and smooth ceiling with sunken spotlights.

En-Suite: - Refitted en-suite shower room comprising opaque double glazed Sash window to rear aspect, fully tiled double shower with glass enclosure, low level WC, inset wash hand basin with tiled splash backs, shaver point, extractor fan, heated towel rail, built-in storage cupboard, laminate flooring and smooth ceiling.

Bedroom Four: - 4.09m x 3.56m (13'05 x 11'08) - Double glazed Sash window to front aspect, radiator, carpeted flooring and smooth ceiling.

Bedroom Five: - 2.90m x 2.87m (9'06 x 9'05) - Double glazed Sash window to rear aspect, radiator, carpeted flooring and smooth ceiling.

Family Bathroom: - Refitted family bathroom comprising opaque double glazed Sash window to rear aspect, panelled bath with central mixer tap and shower over, inset WC, inset wash hand basin, fully tiled, shaver point, extractor fan, heated towel rail, tiled flooring and smooth ceiling with sunken spotlights.

Second Floor Accommodation: -

Landing: - Velux window to rear aspect, loft access, carpeted flooring and smooth ceiling.

Bedroom Two: - 4.57m x 3.58m (15'00 x 11'09) - Double glazed Sash windows to front and side aspects, built-in wardrobes, radiator, carpeted flooring and smooth ceiling.

En-Suite: - Opaque double glazed Sash window to rear aspect, single shower unit, fully tiled, low level WC, pedestal wash hand basin, shaver point, extractor fan, radiator, vinyl flooring and smooth ceiling with sunken spotlights.

Bedroom Three: - 4.34m x 3.68m (14'03 x 12'01) - Double glazed Sash windows to side and rear aspects, radiator, carpeted flooring and smooth ceiling.

Exterior: -

Rear Garden: - Unoverlooked and generously sized rear garden comprising patio area across immediate rear and side with pathway to gated side access, remainder mainly laid to lawn with mature shrub borders, paved area to side aspect with timber built wood store, access door to garage.

Double Garage, Driveway & Parking: - Detached double garage fitted with power, lighting and up & over doors. Driveway parking for four vehicles.

Agents Notes: - Council Tax Band: G

For further information regarding this property, please contact Hamilton Piers.

Property Ref: 56382_32946327

Share:

Similar Properties

Bridport Way, Kings Park, Braintree, CM7

4 Bedroom Detached House | Guide Price £575,000

Boasting FOUR reception rooms inc. 21' DUAL ASPECT lounge, 15' conservatory & STUDY with WOODLAND VIEWS to front is this...

Brickbarns, Great Leighs, Chelmsford, CM3

4 Bedroom Detached House | Guide Price £575,000

Boasting FOUR reception rooms inc. 17? FAMILY ROOM, study, 17? DUAL ASPECT lounge plus dressing room & TWO EN-SUITES is...

Highclere Road, Great Notley, Braintree

4 Bedroom Detached House | Guide Price £575,000

**SOLD IN 48 HOURS**Benefiting from masses of POTENTIAL TO EXTEND (STPP) with a 56' REAR GARDEN and a detached DOUBLE GA...

Mary Ruck Way, Black Notley, Braintree

6 Bedroom Detached House | Guide Price £585,000

Boasting FOUR EN-SUITES plus family bathroom & d/stairs cloakroom, an impressive 32' RECENTLY REFITTED kitchen/family ro...

Grantham Avenue, Great Notley, Braintree, CM77

5 Bedroom Detached House | Offers in excess of £600,000

Boasting VERSATILE living space throughout inc. 22' GLASS ATRIUM/dining area opening to a spacious 22' lounge, a modern...

Farriers Way, Great Notley, Braintree

5 Bedroom Detached House | Offers Over £600,000

Boasting a 27' kitchen/diner linked by GLASS ATRIUM across rear, a spacious 20' DUAL ASPECT lounge plus OFFICE/PLAYROOM...

Hamilton Piers (Great Notley)

Avenue West, Skyline 120 Business Park, Great Notley, Essex, CM77 7AA

01376341141

How much is your home worth?

Use our short form to request a valuation of your property.

Request a Valuation

Mortgage Calculator

Amount Borrowed: £
Total Amount Repayable: £
Total Monthly Payment: £
©2025 The Guild of Property Professionals. All rights reserved. Terms and Conditions | Privacy Policy | Cookie Policy | Complaints Policy | Members Login
The Guild of Property Professionals Trading Address: 121 Park Lane, London W1K 7AG. GPEA Limited. Registered in England & Wales.  Company No: 02819824.  Registered Office Address: 2 St. Stephen's Court, St. Stephen's Road, Bournemouth, Dorset, England, BH2 6LA.  VAT Registration No: 576 8795 61
Book a Property Valuation Update Cookies Preferences