Bond Street, Blackpool, FY4

Guide Price
£65,000

4 Bedroom Not Specified for sale in Blackpool

1 4 2
  • Land
  • Investment
  • Development

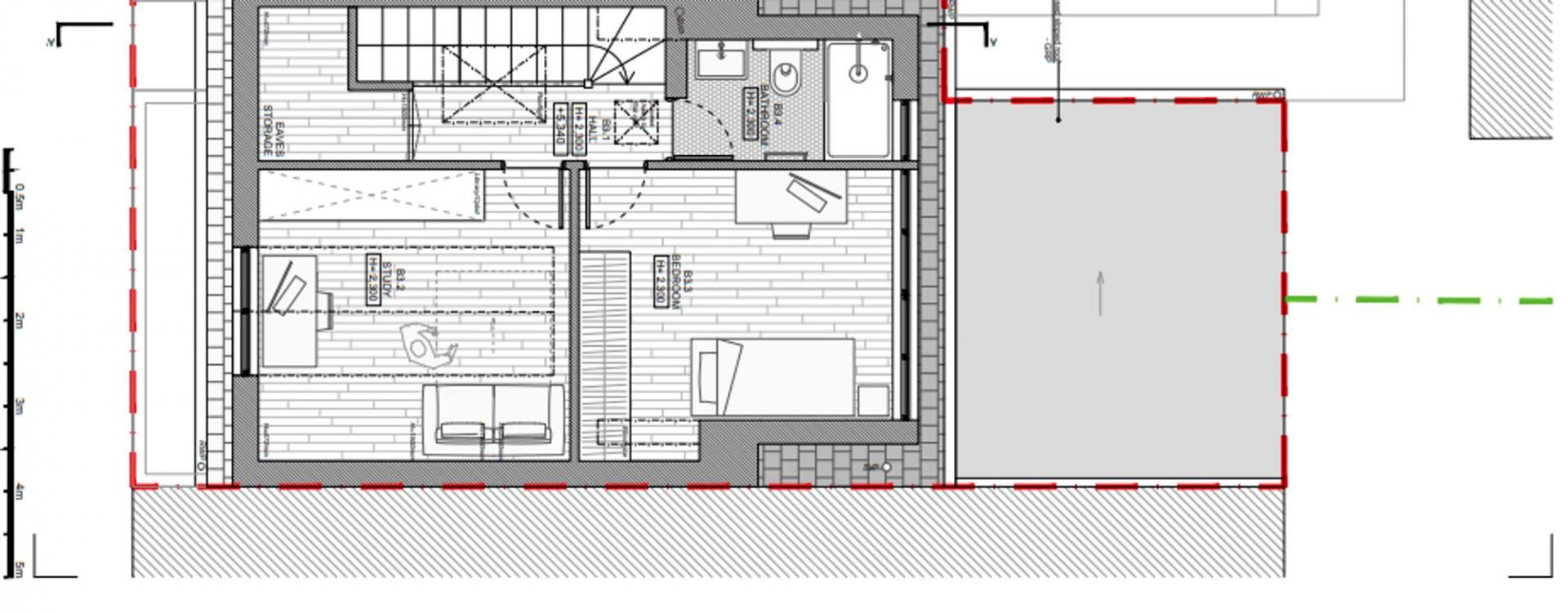
LAND FOR SALE WITH PLANNING

Plot 45 - 47 Bond street 

An unique opportunity to develop two, 2 story domestic dwelling with 4 bedrooms. 
Full plans on application. 
The property is situated on Bond street within walking distance of beach front, Local shops and family attractions. 
End value of the property when built would be worth £200,000 - £220,000
For anymore information please contact Stephen Tew

This property is for sale by Traditional Auction. The buyer and seller must Exchange immediately, and Complete 28 days thereafter. Interested parties personal data will be shared with the Auctioneer (iamsold).
The buyer pays a non-refundable deposit of 10% of the purchase price upon exchange.
A Buyer Information Pack is provided. The buyer will pay £300.00 including VAT for this pack which you must view before bidding.
The buyer signs a Reservation Agreement and makes payment of a non-refundable Reservation Fee of 4.20% of the purchase price including VAT, subject to a minimum of £6,000.00 including VAT. This is paid to reserve the property to the buyer during the Reservation Period and is paid in addition to the purchase price. This is considered within calculations for Stamp Duty Land Tax.
Services may be recommended by the Agent or Auctioneer in which they will receive payment from the service provider if the service is taken. Payment varies but will be no more than £450.00. These services are optional.

Property Ref: 4d84351a-a459-4558-9312-b7874dfbaedc

Share:

Similar Properties

Handsworth Road, Blackpool, FY1

2 Bedroom Terraced House | Guide Price £65,000

2-bed terraced house in sought-after location, starting bid £65,000. With tenants in place, lounge, modern kitchen/diner...

Orme Street, Blackpool, FY1

2 Bedroom Terraced House | Offers Over £65,000

Conveniently located 2-bed mid-terraced house near Blackpool town centre. Ideal for first-time buyers or investors. No o...

The Brambles, Lytham St. Annes, FY8

1 Bedroom Flat | Offers Over £63,000

Lovely first-floor apartment in sought-after area with private entrance, lounge, kitchen/diner, double bedroom, and bath...

Mooreview Court, Blackpool, FY4

1 Bedroom Ground Floor Flat | Offers Over £70,000

A prime location with amenities, transportation nearby, a cosy 1 bed flat with modern kitchen, parking for one vehicle,...

Promenade, Regent Court, FY1

2 Bedroom Apartment | Offers Over £70,000

Prime sea-view top-floor 2 Bed Apt on desirable Promenade. No chain. Generous living space, separate kitchen, fitted war...

Harrowside, Harrowside Brow, FY4

1 Bedroom Apartment | Offers Over £70,000

Charming 1 bed ground floor apt near promenade, shops, and transport. Spacious lounge with patio doors to communal garde...

Stephen Tew Estate Agents (Blackpool)

132 Highfield Road, Blackpool, Lancashire, FY4 2HH

01253 401111

How much is your home worth?

Use our short form to request a valuation of your property.

Request a Valuation

Mortgage Calculator

Amount Borrowed: £
Total Amount Repayable: £
Total Monthly Payment: £
©2025 The Guild of Property Professionals. All rights reserved. Terms and Conditions | Privacy Policy | Cookie Policy | Complaints Policy | Members Login
The Guild of Property Professionals Trading Address: 121 Park Lane, London W1K 7AG. GPEA Limited. Registered in England & Wales.  Company No: 02819824.  Registered Office Address: 2 St. Stephen's Court, St. Stephen's Road, Bournemouth, Dorset, England, BH2 6LA.  VAT Registration No: 576 8795 61
Book a Property Valuation Update Cookies Preferences