2-4 Harrow Place, Blackpool, FY4

Offers Over
£349,950

2 Bedroom Apartment for sale in Blackpool

1 2 2
  • New build
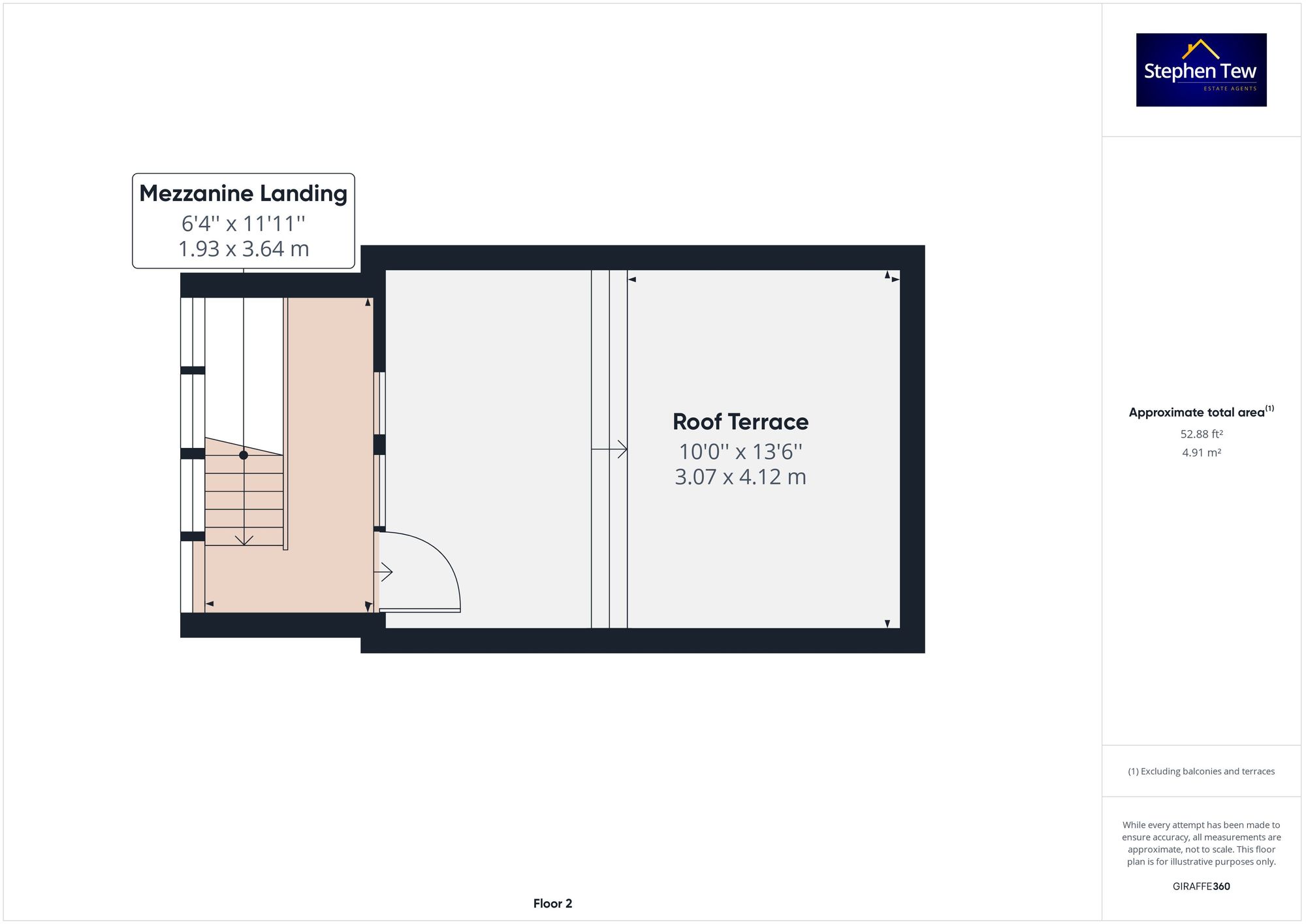
  • 2 Bedroom Penthouse Apartment, With Private Roof Terrace
  • Entrance Hallway, Living/Kitchen/Diner with open plan luxury Fitted Kitchen, 2 Bedrooms, 2 Bathrooms.
  • Magnificent Views Over The Irish Sea, From Both a Private Roof Terrace and Private Balcony
  • Fitted designer kitchen with top of the range integrated AEG appliances including oven, induction hob, microwave, integrated fridge/freezer, designer extractor, quartz worktops with breakfast bar...
  • The property boasts a luxury fully tiled floor throughout the living areas, with carpeted bedrooms to accommodate modern living and comfort.
  • Private roof terrace, with luxury composite decking and amazing views of the Irish Sea.
  • The property comes with access to a communal gym/fitness studio and a communal roof terrace.
  • £5,000 Furniture Allowance With Every Purchase

Gracing the market is this exceptional 2-bedroom penthouse apartment situated in a new build development, offering a luxurious living experience in a prime location. The apartment features an expansive living space comprising an entrance hallway leading to a mesmerising open-plan living/kitchen/diner. The state-of-the-art fitted kitchen is a chef's dream, equipped with top-of-the-line integrated AEG appliances, sleek quartz worktops, and a convenient breakfast bar. The property includes 2 well-appointed bedrooms, 2 modern bathrooms, and boasts captivating views over the Irish Sea from both a private roof terrace and balcony, perfect for soaking in the stunning vistas.

Step outside and discover a haven for outdoor enthusiasts with a balcony off the lounge, a private roof terrace with Luxury composite decking providing a low-maintenance outdoor retreat, complete with a mesmerising overlook of the Irish Sea. Residents have the added benefit of access to a communal gym/fitness studio and a communal roof terrace, ideal for social gatherings or relaxing under the open sky. For added convenience, optional parking approved by the council is available at the front of the property. With a generous £5,000 furniture allowance offered with each purchase, this property presents an enticing opportunity to indulge in a lifestyle of luxury and comfort in a prestigious setting.

Important Information

  • This is a Leasehold property.
  • The annual service charges for this property is £1379
  • This Council Tax band for this property is: B

Property Ref: 45566ad4-17e5-47a9-b598-a9f971ea8e7e

Share:

Similar Properties

Hawes Side Lane, Blackpool, FY4

5 Bedroom Detached House | Offers Over £340,000

Fantastic 5-bed detached home in ideal location near schools & shops. Spacious layout with open-plan living, modern kitc...

Leys Road, Blackpool, FY2

5 Bedroom Detached House | Offers Over £340,000

Imposing 3-storey detached house with self-contained annexe. Open-plan living, utility room, 5 bedrooms, garage, and sou...

Warwick Road, Lytham St. Annes, FY8

4 Bedroom Semi-Detached House | Offers Over £340,000

Extended semi-detached family home with 4 bedrooms, 3 reception rooms, modern kitchen, open fires in lounge and bedroom...

Kempton Avenue, Blackpool, FY3

4 Bedroom Detached House | Offers Over £350,000

Detached House with Garage & Driveway in Popular Area near Stanley Park. Immaculately presented, no chain. Hall, snug, l...

Redwood Boulevard, Blackpool, FY4

4 Bedroom Detached House | Offers Over £350,000

Imposing Detached House Lounge, Fitted Dining Kitchen 4 Bedrooms, 1 En Suite Family Bathroom, GF WC Off Road Parking Gar...

Birchwood Gardens, Blackpool, FY4

2 Bedroom Detached Bungalow | £350,000

Stephen Tew Estate Agents (Blackpool)

132 Highfield Road, Blackpool, Lancashire, FY4 2HH

01253 401111

How much is your home worth?

Use our short form to request a valuation of your property.

Request a Valuation

Mortgage Calculator

Amount Borrowed: £
Total Amount Repayable: £
Total Monthly Payment: £
©2025 The Guild of Property Professionals. All rights reserved. Terms and Conditions | Privacy Policy | Cookie Policy | Complaints Policy | Members Login
The Guild of Property Professionals Trading Address: 121 Park Lane, London W1K 7AG. GPEA Limited. Registered in England & Wales.  Company No: 02819824.  Registered Office Address: 2 St. Stephen's Court, St. Stephen's Road, Bournemouth, Dorset, England, BH2 6LA.  VAT Registration No: 576 8795 61
Book a Property Valuation Update Cookies Preferences