Pimperne, Blandford Forum

Guide Price
£345,000

3 Bedroom Semi-Detached Bungalow for sale in Blandford Forum

1 3 1

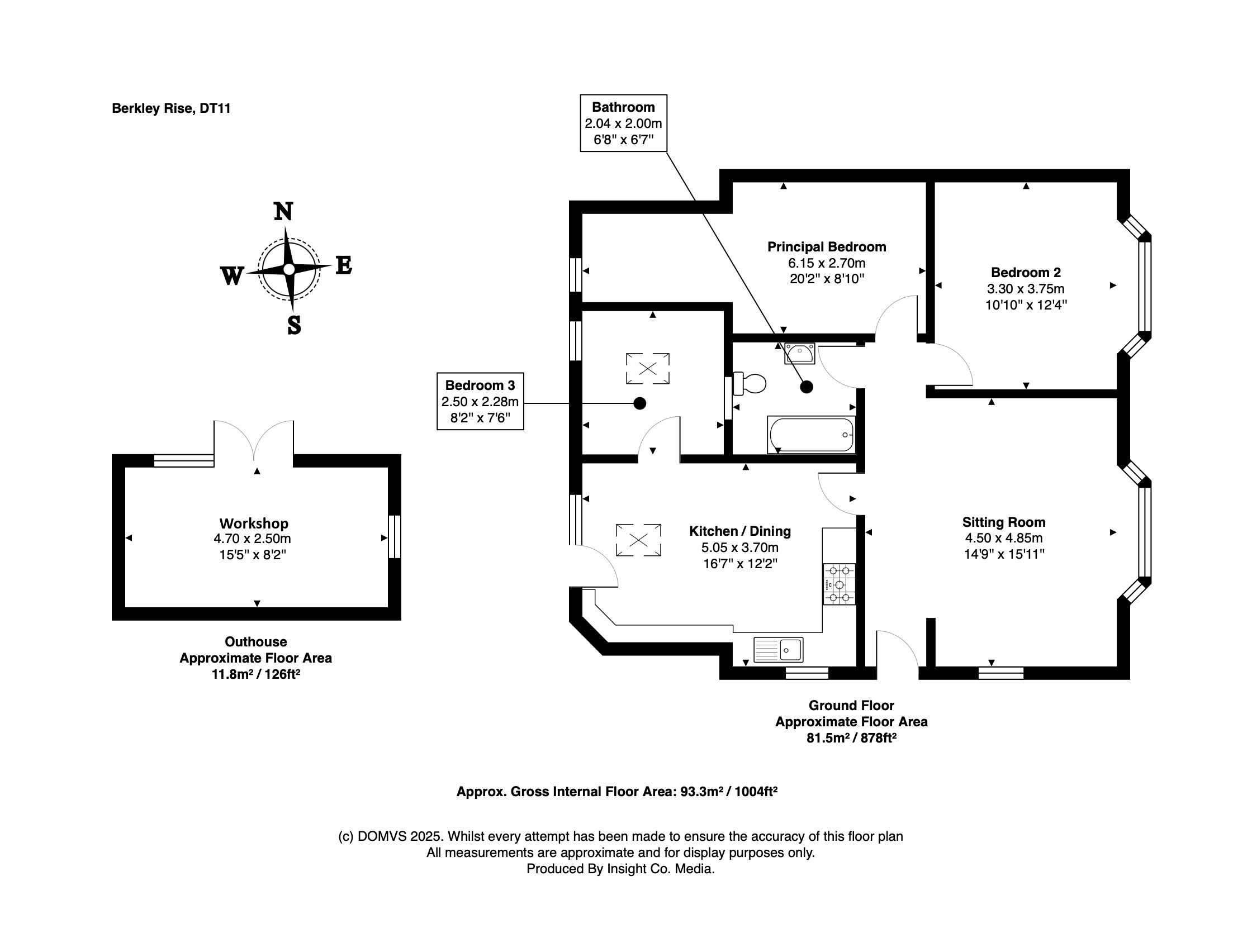
The property offers well-balanced single-storey accommodation with a practical and comfortable feel throughout. The SITTING ROOM serves as the principal reception space and is a generously sized room with bay windows, allowing for excellent natural light. There is ample space for sofas and additional furniture, making it ideal for both everyday living and entertaining, with flexibility in how the space can be arranged to suit individual preference.

The KITCHEN/DINING ROOM is a light contemporary space and a generous kitchen diner. It is fitted with a large cooker with extraction hood and provides ample space for white goods. There is comfortable room for a substantial dining table, making it a sociable and practical heart of the home, equally suited to family meals or entertaining guests.

There are three bedrooms in total. The PRINCIPAL BEDROOM is an impressive extended room measuring over 20 feet in length and has been arranged to accommodate a double bed along with a generous office or dressing area, an increasingly essential feature for modern living. This additional space offers excellent flexibility, whether used for working from home, storage, or as a private retreat.

BEDROOM TWO is a well-proportioned double room with an attractive bay window, creating a bright and pleasant environment. BEDROOM THREE is a versatile room, ideal as a generous single bedroom, guest room, nursery or home office, depending on individual requirements.

The BATHROOM comprises a bath with shower over, wash hand basin and WC, finished in practical materials for ease of maintenance.

Overall, the interior provides a straightforward and adaptable layout, allowing purchasers to configure the accommodation in a way that best suits their lifestyle, whether prioritising sleeping space, dedicated workspace, or comfortable reception areas.

Outside
Outside, the property benefits from private garden areas and off-road parking. The FRONT GARDEN provides an attractive approach, with planting and established greenery that softens the setting of the bungalow. A driveway offers convenient off-road parking and leads directly to the property, making day-to-day access straightforward.

The REAR GARDEN provides a pleasant outdoor space for seating, planting, and general enjoyment. It is suitable for keen gardeners or those seeking a manageable area to relax or entertain during warmer months. Boundaries create a sense of enclosure and privacy, making it a comfortable extension of the living space.

To one side, the former garage has been converted into a LARGE WORKSHOP with light and power, offering versatile space for hobbies, DIY projects, or storage, adding a highly practical and valuable feature to the property.

Location
The charming village of Pimperne is situated in the heart of North Dorset within the Cranborne Chase, close to the historic Georgian town of Blandford and Cathedral City of Salisbury.

The village dates back to the Saxon times and was mentioned in the Doomsday Book. A thriving primary school, well attended church and numerous clubs and associations are all within the village, in addition to the popular local pub and eatery, the Anvil Inn.

Directions
Use what3words.com to navigate to the exact spot. Search using: heeding.navy.onlookers

Single-storey convenience
Large, sun-filled sitting room
Stylish kitchen / dining room
Large workshop with power
Ample parking

ROOM MEASUREMENTS Please refer to floor plan.

SERVICES Mains drainage, electricity & gas. Gas central heating.

LOCAL AUTHORITY Dorset Council. Tax band C.

BROADBAND Standard download 5 Mbps, upload 0.6 Mbps. Superfast download 80 Mbps, upload 20 Mbps. Ultrafast download 1800 Mbps, upload 1000 Mbps. Please note all available speeds quoted are 'up to'.

MOBILE PHONE COVERAGE For further information please go to Ofcom website.

TENURE Freehold.

LETTINGS Should you be interested in acquiring a Buy-to-Let investment, and would appreciate advice regarding the current rental market, possible yields, legislation for landlords and how to make a property safe and compliant for tenants, then find out about our Investor Club Our expert lettings team will be pleased to provide you with additional, personalised support; just call on the branch telephone number to take the next step.

IMPORTANT NOTICE DOMVS and its Clients give notice that: they have no authority to make or give any representations or warranties in relation to the property. These particulars do not form part of any offer or contract and must not be relied upon as statements or representations of fact. Any areas, measurements or distances are approximate. The text, photographs (including any AI photography) and plans are for guidance only and are not necessarily comprehensive. It should not be assumed that the property has all necessary Planning, Building Regulation or other consents, and DOMVS has not tested any services, equipment or facilities. Purchasers must satisfy themselves by inspection or otherwise. DOMVS is a member of The Property Ombudsman scheme and subscribes to The Property Ombudsman Code of Practice.

Important Information

  • This is a Freehold property.

Property Ref: NDO260002

Share:

Similar Properties

Dewlish, Dorset

3 Bedroom Semi-Detached House | £345,000

Owner says, 'We've loved the character of the cottage and the peaceful setting. The roof terrace has been a favourite sp...

Milborne St Andrew, Blandford Forum, Dorset

3 Bedroom End of Terrace House | Guide Price £335,000

Modern, beautifully-finished three-bedroom home in a desirable location. With a bright sitting/dining room opening to th...

Milton Abbas, Dorset

Detached House | £330,000

An expansive Grade II Listed barn with auxiliary haylofts, access to water and 19 acres of certified organic arable land...

Cerne Abbas, Dorchester, Dorset

3 Bedroom Penthouse | Guide Price £350,000

Owners say, "We have truly appreciated all that Cerne Abbas offers, particularly the ease of having wonderful countrysid...

Cerne Abbas, Dorset

3 Bedroom End of Terrace House | Guide Price £350,000

Owners say, 'We've loved the warmth of village life here, with countryside walks on the doorstep and everything we need...

Broadmayne, Dorset

2 Bedroom Bungalow | Offers Over £350,000

A well presented two-double-bedroom bungalow with a considerable sense of space and light, and the advantage of an enclo...

DOMVS Mid Dorset (Dorchester)

Dorchester, Dorset, DT1 1UW

01305 757300

How much is your home worth?

Use our short form to request a valuation of your property.

Request a Valuation

Mortgage Calculator

Amount Borrowed: £
Total Amount Repayable: £
Total Monthly Payment: £
©2026 The Guild of Property Professionals. All rights reserved. Terms and Conditions | Privacy Policy | Cookie Policy | Complaints Policy | Members Login
The Guild of Property Professionals Trading Address: 121 Park Lane, London W1K 7AG. GPEA Limited. Registered in England & Wales.  Company No: 02819824.  Registered Office Address: 2 St. Stephen's Court, St. Stephen's Road, Bournemouth, Dorset, England, BH2 6LA.  VAT Registration No: 576 8795 61
Book a Property Valuation Update Cookies Preferences