Luxulyan

Guide Price
£200,000
SSTC
This property listing is now SSTC

Barn Conversion for sale in Bodmin

  • Class Q Permitted Development
  • Village Location
  • Approximately 1.4 Acres
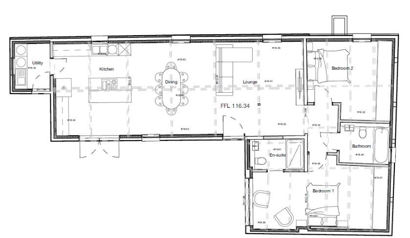
  • Proposed Accommodation
  • Two Bedrooms
  • Master En Suite
  • Open Plan Kitchen & Living Space
  • Bathroom, Utility
  • Exciting Opportunity
  • Viewing Essential

TRADITIONAL STONE BARN WITH CLASS Q PLANNING APPROVAL FOR CONVERSION

In a quiet setting with approximately 1.4 acres of gently sloping land and woodland.
A very attractive building with huge potential to create a lovely home in a convenient setting.
Two double bedrooms, master with en suite, open plan living room, kitchen and dining room, utility and bathroom.
An extremely rare opportunity. Further details available from the sole agents.
Freehold.

General Comments - A former detached cattle shed/milking parlour located in a fabulous rural location on the edge of Luxulyan with approximately 1.4 acres of land.

The property has been in the same family ownership since the 1970's when St Cyors Farm was purchased. The setting is very special and tucked away yet is within close proximity of the village facilities and school. The views from the rear are far reaching over the valley and the whole site is extremely private. Cornwall Council have given a Class-Q planning approval to convert the barn into a residential dwelling that extend to approximately1,250 square feet.

The proposed accommodation includes two double bedrooms, the master has an en suite shower room, kitchen, dining room, sitting room, utility room and bathroom. Access is from a minor country lane and there will be parking for several cars. The land is somewhat overgrown but offers huge potential and the views are incredible. The whole site is very private and enjoys a sunny aspect and is just a short walk from the village facilities.

Class Q Permitted Development - The development must be carried out wholly in accordance with the submitted details, plans and conditions that can be inspected on the planning portal of Cornwall Council under application number: PA24/02116. Attached is the proposed accommodation layout.

Location - Luxulyan is a small, picturesque village in mid-Cornwall, nestled in a lush, wooded valley near St Austell. Known for its rich industrial heritage, it's home to the stunning Luxulyan Valley. The village itself features traditional granite buildings, a historic church, and a strong sense of local community. It's a peaceful, rural spot ideal for walkers, history lovers, and those looking to explore Cornwall's quieter side. the nearby town of St. Austell offers a variety of everyday facilities for daily needs including primary and secondary schools, shops, restaurants, public houses, banks, building societies and a main line railway link with London (Paddington). The city of Truro is approximately sixteen miles away and this city also offers a greater variety of everyday facilities. There are also more picturesque and tourist areas nearby including the Eden Project the Historic Port of Charlestown, nearby beaches of Pentewan and Carlyon Bay and the fishing village of Mevagissey.

Services - We understand that mains water and electric are close by. Purchasers will have to satisfy themselves of this. Private drainage will need to be installed by the purchaser.

Viewing - Strictly by Appointment through the Agents Philip Martin, 9 Cathedral Lane, Truro, TR1 2QS. Telephone: 01872 242244 or 3 Quayside Arcade, St. Mawes, Truro TR2 5DT. Telephone 01326 270008.

Directions - Proceeding into Luxulyan from the A30, proceed down through the village with the primary school on your right hand side. Take the left hand turning to continue straight and heading out of the village take the right hand turning. The barn can be found after a short distance on the left hand side where a Philip Martin for sale board has been erected.
What3Words - puncture.cello.climbing

Property Ref: 858996_34300340

Share:

Similar Properties

Bodmin Road, St. Austell

Land | Guide Price £200,000

INDIVIDUAL BUILDING PLOT SOLD WITH NO CHAINThis is a unique opportunity to purchase an individual building plot with det...

Roseland Peninsula

Land | Guide Price £200,000

A LARGE MODERN FARMBUILDING, DERELICT STONE SHED AND 4.5 ACRES OF LANDLocated adjacent to the built environs of Veryan b...

Fore Street, Tregony

3 Bedroom End of Terrace House | Guide Price £200,000

END TERRACE PROPERTY WITH PARKING SOLD WITH NO CHAINCash buyers only this three bedroom end of terrace property is situa...

Tre Worgan Court, St. Erme

2 Bedroom Terraced House | Guide Price £210,000

MODERN TERRACED HOUSE Tucked away in a quiet position within a popular village setting just four miles north of Truro ci...

Rosva Wenton, Probus

3 Bedroom Semi-Detached House | Guide Price £217,000

3 BEDROOM SEMI DETACHED HOUSE UNDER A LOCAL HOUSING AGREEMENTAn affordable home for a local buyer, ideal as a first time...

Tresawya Drive, Truro

2 Bedroom Flat | Guide Price £219,950

TWO BEDROOM APARTMENT WITH GARDEN AND PARKING SOLD WITH NO CHAINA spacious two bedroom apartment situated in a fantastic...

Philip Martin (Truro)

Truro, Cornwall, TR1 2QS

01872 242244

How much is your home worth?

Use our short form to request a valuation of your property.

Request a Valuation

Mortgage Calculator

Amount Borrowed: £
Total Amount Repayable: £
Total Monthly Payment: £
©2025 The Guild of Property Professionals. All rights reserved. Terms and Conditions | Privacy Policy | Cookie Policy | Complaints Policy | Members Login
The Guild of Property Professionals Trading Address: 121 Park Lane, London W1K 7AG. GPEA Limited. Registered in England & Wales.  Company No: 02819824.  Registered Office Address: 2 St. Stephen's Court, St. Stephen's Road, Bournemouth, Dorset, England, BH2 6LA.  VAT Registration No: 576 8795 61
Book a Property Valuation Update Cookies Preferences