Town End, Bodmin

£225,000

4 Bedroom Terraced House for sale in Bodmin

2 4 1
  • Terraced property
  • Arranged over three floors
  • Low maintenance enclosed garden
  • Parking for two cars
  • Close proximity to local amenities
  • No chain
  • Character Features
  • Four bedrooms

Terraced property
Arranged over three floors
Low maintenance enclosed garden
Parking for two cars
Close proximity to local amenities
No chain
Character Features
Four bedrooms

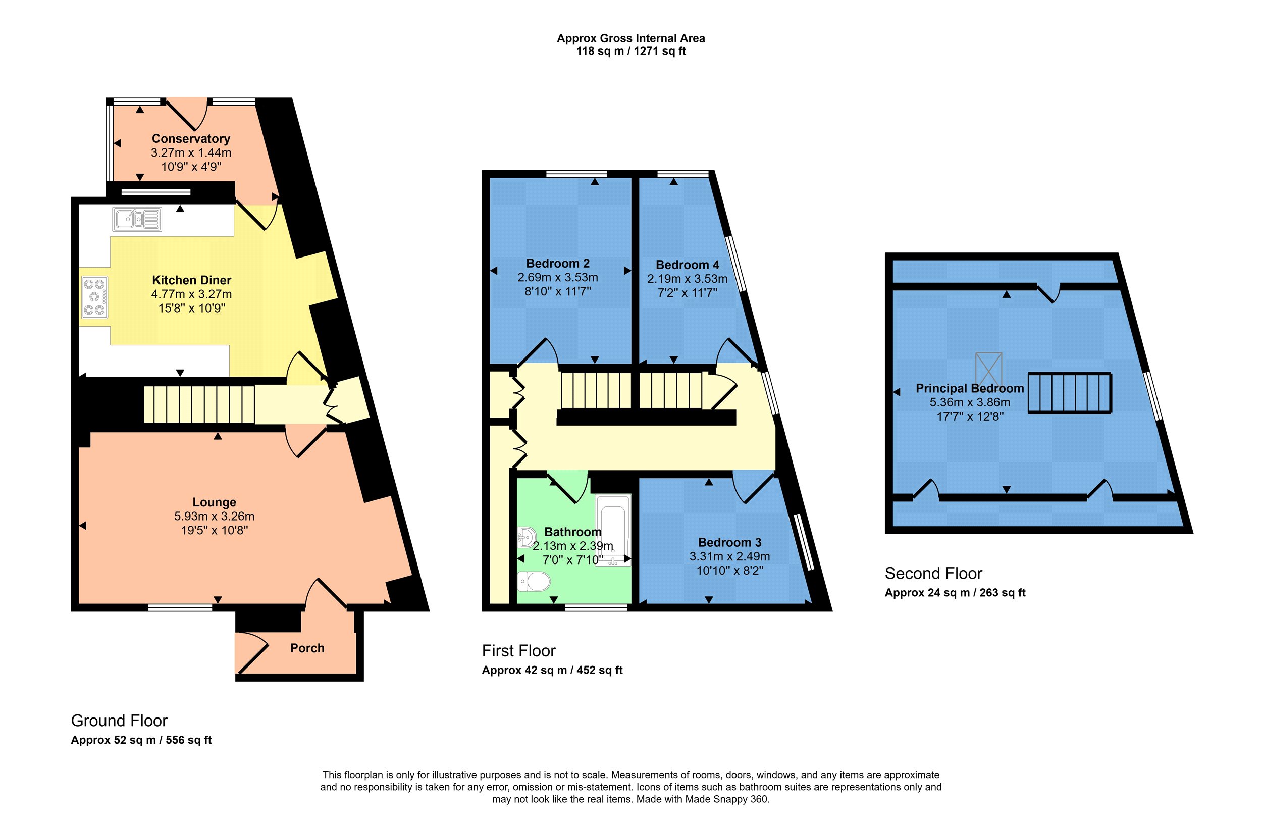
The rear parking area leads to an enclosed rear garden through a woden gate, with a lightfilled conservatory/porch giving access to the fitted kitchen; this modern style room includes shaker-style wall and floor units, and an integrated dishwasher.

The well proportioned sitting room has a feature wall with an inset gas fire, and leads to the front porch.

On the first-floor landing there are two double bedrooms, a single bedroom/study and a fitted family bathroom. The fourth bedroom is found on the second floor where there is eaves storage and a Velux window overlooking the rear.

The garden to the front is tiered with steps up to a pedestrian gate, this leads out onto the main through road into Bodmin Town Centre. The rear garden has a shed, and is low maintenance with a variety of finishes including paving and chippings. There is a pedestrian gate leading onto Tranquil Lane and parking for two cars can be found at the bottom of this lane.

Please note, to the front of the property, there is a flying freehold.

Tenure    Freehold

Services    Mains water, electricity, drainage and gas central heating

Viewing    Strictly by appointment with sole selling agent

Council Tax    Cornwall Council Band A

What3Words - bright.zest.driven

Important Information

  • This is a Freehold property.

Property Ref: 55649_BOL220006

Share:

Similar Properties

Foster Drive, Bodmin, Cornwall

3 Bedroom Semi-Detached House | £225,000

Three-bedroom semi-detached home located on the western side of town, offering a lounge, kitchen/diner, modern bathroom...

Gilbert Road, Bodmin, Cornwall

3 Bedroom Terraced House | £220,000

Three-bedroom terraced home, set within a desirable residential area on the edge of Bodmin.

Tredanek Close, Bodmin, Cornwall

3 Bedroom Terraced House | £220,000

Extended three-bedroom home in a quiet Bodmin cul-de-sac, larger than the standard design and just a short walk from the...

Churchtown Close, Roche, St. Austell

3 Bedroom House | £230,000

A well presented three bedroom end terrace house with parking. Tucked away at the edge of a development in the popular v...

Mount Folly Square, Bodmin, Cornwall

2 Bedroom Apartment | £230,000

***2 year's service charge paid!***Apartment C The Exchange, is an attractive and spacious ground floor apartment locate...

Mount Folly Square, Bodmin, Cornwall

2 Bedroom Apartment | £240,000

*Sale Agreed by Webbers* Apartment A The Exchange, Bodmin, features a spacious and characterful first-floor apartment wi...

Webbers Bodmin (Bodmin)

Bodmin, Cornwall, PL31 2JB

0120873298

How much is your home worth?

Use our short form to request a valuation of your property.

Request a Valuation

Mortgage Calculator

Amount Borrowed: £
Total Amount Repayable: £
Total Monthly Payment: £
©2025 The Guild of Property Professionals. All rights reserved. Terms and Conditions | Privacy Policy | Cookie Policy | Complaints Policy | Members Login
The Guild of Property Professionals Trading Address: 121 Park Lane, London W1K 7AG. GPEA Limited. Registered in England & Wales.  Company No: 02819824.  Registered Office Address: 2 St. Stephen's Court, St. Stephen's Road, Bournemouth, Dorset, England, BH2 6LA.  VAT Registration No: 576 8795 61
Book a Property Valuation Update Cookies Preferences