Lowndes Street, Bolton, BL1

Offers in region of
£210,000

2 Bedroom Terraced House for sale in Bolton

1 2 2
  • Two Bedroom, Terraced on Lowndes Street, Heaton, Bolton.
  • Modern Open Plan Living Room and Kitchen with Spotlighting
  • Sleek Grey Gloss Kitchen Units with Marble Effect Worktops and Integrated Appliances
  • Guest Shower Room
  • Two Double Sized Bedrooms with Grey Laminate Flooring
  • Fitted Wardrobes in Master Bedroom with Sliding Mirrored Doors
  • Three-Piece Bathroom Suite with Additional Walk-In Shower
  • Fully Boarded Loft with Lighting for Additional Storage
  • Block Paved Driveway for Off-Road Parking
  • Low Maintenance, Block Paved Rear Yard

Renovated family home with two bedrooms, modern decor throughout, and located in a highly desirable location of Bolton.

This attractive two-bedroom, terraced property is ideally located on Lowndes Street, Heaton. Lowndes Street is situated just off Chorley Old Road, close to amenities and within a short drive to places of natural beauty such as; Captains Clough, Queens Park and Doffcocker Lodge. The property is located within the catchment area of popular schools such as; St Thomas of Canterbury RC School, Devonshire Road Primary School and Church Road Primary School.

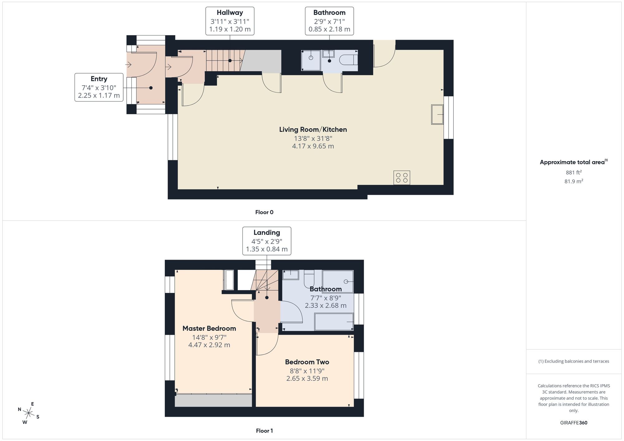
Upon entering the property, there is an entrance porch with laminate flooring, wall tiling and hanging hooks, an ideal space for storing coats and shoes. From here there is an entrance hallway, with laminate flooring, spotlighting and alarm system. The modern open plan living room and kitchen space, is a generous welcoming space with grey wood effect laminate flooring and spotlighting throughout. The kitchen is made up of grey gloss base and wall units, with a stainless steel sink with mixer tap, integrated gas hob and oven, extractor fan, white marble effect worktops and beige wall tiles. The property also benefits from a guest shower room, located just off the open plan living space, which is made up of white push flush toilet, white sink and walk-in shower cubicle with electric shower. Additionally, there is a handy under-stairs cupboard for further storage space.

Upstairs, the landing space has a UPVC window, loft hatch leading to a fully boarded loft space with lighting, and doors to two bedrooms and the family bathroom. The master bedroom, is located at the front of the property, is of a double size with grey laminate flooring, fitted sliding mirror door wardrobe, fitted storage cupboard, spotlighting and two UPVC windows. The second bedroom is located to the rear of the property, which is also of a double size with grey laminate flooring, spotlighting, radiator and UPVC window. The spacious family bathroom is made up of a three-piece white suite with additional walk-in shower cubicle, mains fed waterfall shower, spotlighting, PVC wall panels, PVC ceiling panels, heated towel rail and large frosted UPVC window.

To the rear of the property, there is a low maintenance, block paved yard, with gated access to the front of the property. At the front there is an attractive block paved driveway, providing off-road parking for up to two cars. Additional on-street parking is available for this property.

Energy Efficiency Current: 65.0
Energy Efficiency Potential: 78.0

Important Information

  • This is a Leasehold property.
  • This Council Tax band for this property is: A

Property Ref: e9bdb0a7-ea79-44f1-91b9-af99b0a13976

Share:

Similar Properties

Sofa Street, Heaton, Bolton, BL1

3 Bedroom Terraced House | Offers in region of £210,000

Well presented family home with three bedrooms, not over looked at the rear and located in a highly desirable location o...

Tiverton Walk, Smithills, Bolton, BL1

3 Bedroom Terraced House | Offers in region of £199,950

This stunning townhouse located on Tiverton Walk, Smithills, offers an exceptional blend of luxury, comfort, and modern...

Glade Street, Heaton, Bolton, BL1

3 Bedroom End of Terrace House | Offers in region of £195,000

Movuno are delighted to bring to the market this three-bedroom, end terrace on Glade Street, Heaton, with traditional el...

Kirkby Road, Heaton, Bolton, BL1

3 Bedroom Terraced House | Offers Over £215,000

Movuno are delighted to bring to the market this three-bed, mid-terrace on Kirkby Road, Heaton.

Rowsley Avenue, Heaton, Bolton, BL1

3 Bedroom Semi-Detached House | Offers Over £225,000

Located in the highly desirable area of Heaton, Bolton, this well-presented three bedroom, semi detached home offers a d...

Ashley Road, Hindley Green, Wigan, WN2

2 Bedroom Detached Bungalow | £235,000

Delightful 2-bed bungalow in quiet cul-de-sac. Single-level living with open plan kitchen diner. Large corner plot with...

Movuno Estate Agents (Bolton)

Bolton, Lancashire, BL1 6BL

01204 654 525

How much is your home worth?

Use our short form to request a valuation of your property.

Request a Valuation

Mortgage Calculator

Amount Borrowed: £
Total Amount Repayable: £
Total Monthly Payment: £
©2025 The Guild of Property Professionals. All rights reserved. Terms and Conditions | Privacy Policy | Cookie Policy | Complaints Policy | Members Login
The Guild of Property Professionals Trading Address: 121 Park Lane, London W1K 7AG. GPEA Limited. Registered in England & Wales.  Company No: 02819824.  Registered Office Address: 2 St. Stephen's Court, St. Stephen's Road, Bournemouth, Dorset, England, BH2 6LA.  VAT Registration No: 576 8795 61
Book a Property Valuation Update Cookies Preferences