Harpers Lane, Smithills, Bolton, BL1

Offers in region of
£699,000

4 Bedroom Semi-Detached House for sale in Bolton

2 4 2
  • Four Bedroom, Victorian Semi-Detached on Harpers Lane, Smithills
  • Large Plot with Development Opportunity
  • Tastefully Decorated with Period Elements Throughout
  • Original Victorian Terracotta Floor Tiling in Porch, Hallway, Pantry & Kitchen
  • Original Wooden Windows with Stained Glass
  • Four Double Bedrooms
  • Two Bathrooms
  • Utility Room & Airing Cupboard
  • Large Multi-Car Driveway
  • Detached Garage with Up-and-Over Door

Movuno are delighted to bring to the market this tastefully decorated Four Bedroom, Semi-Detached property on Harpers Lane, Smithills, with additional development opportunity for a four bedroom detached property on the rear land. Harpers Lane is located in a highly desirable area of Smithills, just off Church Road. Ideally positioned a short drive from popular nature parks such as Smithills Country Park, Moss Bank Park, and Doffcocker Lodge. Harpers Lane falls within the catchment area of highly rated schools such as; Church Road Primary School, St Josephs RC Primary School, Thornleigh Salesian College, and Smithills School.

Upon entering the property, there is a large entrance vestibule with original Victorian terracotta floor tiling and a decorative frosted glass partition door through to the hallway. The hallway is a welcoming space decorated in bright and airy colours with traditional ceiling coving and original Victorian terracotta floor tiling, which runs through to the cloak room, kitchen, and pantry. The living room is in keeping with the property, bringing together period elements such as; decorative coving and stained glass wooden windows with modern decor and a stylish electric fire, with an exposed brick feature. An attractive place to relax after a long day or to be used as a separate living space for children. Back to the hallway, there is a handy cloak room for storing coats and shoes, a pantry with built-in shelving and base units with a sink, as well as access to the basement, which has been updated with LED lighting, insulation and carpet, to ensure a dry space for using as an additional storage space or home office.

Across from the pantry, there is a generous-sized kitchen. In keeping with the property, it is made up of multiple cream, solid wood base and wall units, stone effect laminate worktops, integrated induction hob, oven and dishwasher, plus an additional range cooker. The large window allows plenty of light into the room, making the kitchen an ideal space to entertain guests and enjoy family meals. At the rear of the property, there is a second reception room which is a beautiful space to relax and enjoy views over the rear garden. A delightful blend of classic and modern with hard-wood flooring, wall panelling, industrial wall lighting, decorative vintage style fireplace, and bay French doors with stained glass. A utility room is located to the side of the property, providing further space for a washing machine and dryer, with french doors onto the patio, as well as being utilitised as a second entrance to the property, through the doorway to the driveway.

To the first floor, the landing space flows seamlessly from the hallway, decorated in calming colours with further period elements such as coving and a glass ceiling panel, and doors to three bedrooms, an airing cupboard, a bathroom, and separate W.C. The master bedroom sits at the front of the property and is sizable room with two wooden sash windows and plenty of space for a king-sized bed and furniture. The second bedroom is of double size and is located at the rear of the property, with beautiful views over the garden and two wooden sash windows, allowing lots of natural light into the room. The third bedroom, is of a double size and is located in the middle of the home, with a wood sash window and plenty of space for wardrobes and drawers. The bathroom, follows suit with its traditional decor, bathroom suite and half frosted sash window. A separate matching W.C, completes the first floor layout.

To the second floor, the landing space has further period elements with pendant light fitting and sky light, with doors to the fourth bedroom, second bathroom, and a loft room, currently being utilised as a home office. The fourth bedroom is of a double size and is located to the front of the property, with a window over looking the side of the property, pendant lighting and built-in wardrobe and shelving. The second bathroom is fully tiled, with a walk in shower, modern toilet and sink unit, heated towel rail and inset lighting. The loft room is carpetted with velux windows, ideal as a home office with plenty of natural light and space for desk and storage units.

At the rear of the property, there is an extensive garden with multiple patio areas, raised decking area and a large lawn. Adorned with mature plants, trees and shrubs, the garden is your own piece of serenity, providing the property with an ideal space for entertaining or outdoor space for a growing family. A secluded summer house is located at the end of the garden, ideal for enjoying the summer nights with a book and a glass of wine. There is gated access from the rear garden to a sizable detached garage, with and up-and-over door which could be used as workshop, storage space for garden furniture or as sheltered car parking.

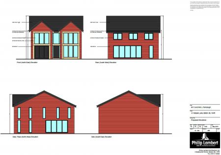
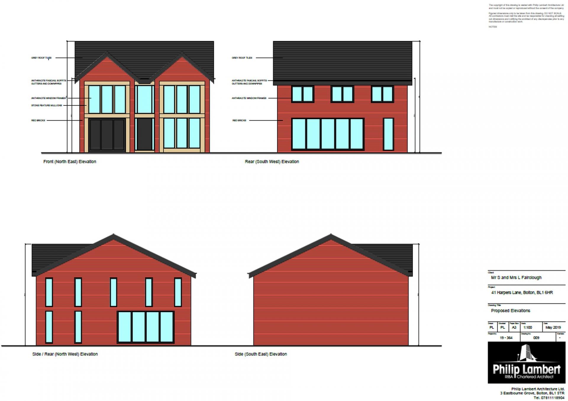
This property comes with the addition of a development opportunity, previously granted planning permission which has now expired, to build a four-bedroom, detached property on the land within the garden.

Energy Efficiency Current: 59.0
Energy Efficiency Potential: 73.0

Important Information

  • This is a Freehold property.
  • This Council Tax band for this property is: D

Property Ref: 3e695bbf-e2c3-4664-9c7c-59d33fab28af

Share:

Similar Properties

Harpers Lane, Smithills, Bolton, BL1

4 Bedroom Semi-Detached House | Guide Price £550,000

Movuno are delighted to bring to the market this tastefully decorated Four Bedroom, Semi-Detached property on Harpers La...

Chorley Old Road, Heaton, Bolton, BL1

4 Bedroom Semi-Detached House | Offers Over £475,000

Luxurious 4-bed semi-detached house in Bolton with open-plan kitchen/lounge, master en-suite, basement Jacuzzi/sauna, wo...

Harpers Lane, Smithills, Bolton, BL1

3 Bedroom Semi-Detached House | Offers in region of £450,000

Movuno are delighted to bring to the market this Three-Bedroom, Semi-Detached property on Harpers Lane, Smithills, which...

Movuno Estate Agents (Bolton)

Bolton, Lancashire, BL1 6BL

01204 654 525

How much is your home worth?

Use our short form to request a valuation of your property.

Request a Valuation

Mortgage Calculator

Amount Borrowed: £
Total Amount Repayable: £
Total Monthly Payment: £
©2025 The Guild of Property Professionals. All rights reserved. Terms and Conditions | Privacy Policy | Cookie Policy | Complaints Policy | Members Login
The Guild of Property Professionals Trading Address: 121 Park Lane, London W1K 7AG. GPEA Limited. Registered in England & Wales.  Company No: 02819824.  Registered Office Address: 2 St. Stephen's Court, St. Stephen's Road, Bournemouth, Dorset, England, BH2 6LA.  VAT Registration No: 576 8795 61
Book a Property Valuation Update Cookies Preferences