Trinity Road, Bootle, Bootle, L20

£300,000
SSTC
This property listing is now SSTC

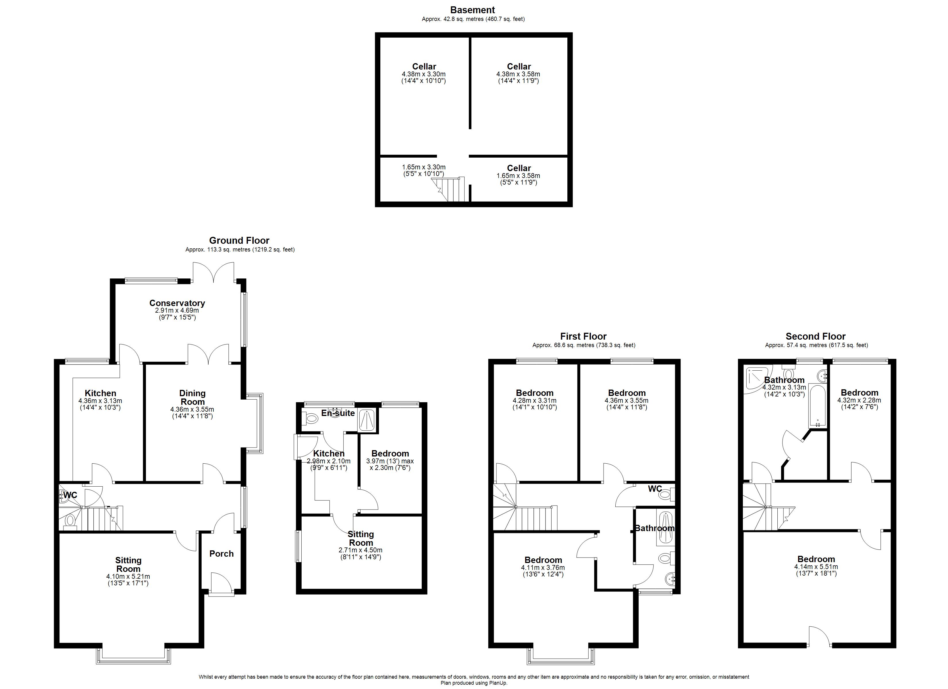
5 Bedroom Semi-Detached House for sale in Bootle

5 2
  • Substantial five bedroom end terrace property
  • Three storey plus cellars
  • Walled back garden & front drive
  • Double garage
  • Three reception rooms
  • Breakfast kitchen

'Straightforward Sales & Lettings'

Title Number - MS245162

Local Authority - Sefton Council

Council tax - Band C

Estimated Annual Council Tax Cost - £1,886

Tenure - Leasehold

Lease Terms - 999 Years From 25 March 1897

Ground Rent - £

Service Charge - £

Conservation Area - No

Flood Risk
Rivers & Seas: Very low
Surface Water: High

Satellite / Fibre TV Availability - BT, Sky, Virgin

Broadband (estimated speeds)
Standard 18 mbps
Superfast 80 mbps
Ultrafast 1000 mbps

Mobile Coverage - O2, EE, Three, Vodafone

(Data source from Sprift)

'Unusually good at what we do'
Sell with a multi - “National award winning Estate Agent!”

Important Information

  • This is a Leasehold property.

Property Ref: 57500_231503S

Share:

Similar Properties

Tobacco Warehouse, Stanley Dock, Regent Road, Liverpool, Liverpool, L3

2 Bedroom Apartment | £300,000

- Two bedroom duplex apartment - Southside Facing - Located on floors 2 and 3 - 1351 sqft - 24hr Concierge - Entrance vi...

Water Street, Liverpool, Liverpool, L3

2 Bedroom Apartment | £288,000

* Book A Viewing Online Now; Visit www.logicestates.co.uk * 2 Bed 1st Floor Apartment * 2 Bathrooms * Open Plan Lounge *...

Tobacco Warehouse, Stanley Dock, Regent Road, Liverpool, Liverpool, L3

2 Bedroom Flat | £285,000

*2 Bedroom Duplex Apartment * Ultimate "Dockside Living" * 956 sq ft * Floor Levels 8 & 9 * Located in the iconic Tobacc...

Becconsall Gardens, Hesketh Bank, Preston, PR4

4 Bedroom Detached House | £310,000

*4 Bedroom Detached House *Luxury fitted Family Kitchen/ Dining room * Ground Floor wc * Utility room * Master bedroom -...

Tobacco Warehouse, Stanley Dock, Regent Road, Liverpool, L3

2 Bedroom Apartment | £310,000

* Apartment sizes range from - 963 sq ft - 2,700 sq' * 2 & 3 bedroom, duplex apartments & penthouses * Parking - £15,000...

Moorgate Avenue, Liverpool, L23

4 Bedroom Detached House | Offers in excess of £320,000

*Newly Built Detached House *Four Bedrooms & Two Bathrooms *Beautifully Presented Throughout *High Specification Finish...

Logic Waterloo Liverpool (Waterloo Liverpool)

97 South Street, Waterloo Liverpool, Merseyside, L22 0LR

01519 202404

How much is your home worth?

Use our short form to request a valuation of your property.

Request a Valuation

Mortgage Calculator

Amount Borrowed: £
Total Amount Repayable: £
Total Monthly Payment: £
©2025 The Guild of Property Professionals. All rights reserved. Terms and Conditions | Privacy Policy | Cookie Policy | Complaints Policy | Members Login
The Guild of Property Professionals Trading Address: 121 Park Lane, London W1K 7AG. GPEA Limited. Registered in England & Wales.  Company No: 02819824.  Registered Office Address: 2 St. Stephen's Court, St. Stephen's Road, Bournemouth, Dorset, England, BH2 6LA.  VAT Registration No: 576 8795 61
Book a Property Valuation Update Cookies Preferences