Manor Way, Borehamwood

£335,000
SSTC
This property listing is now SSTC

2 Bedroom Apartment for sale in Borehamwood

1 2 1

A spacious and modern two double-bedroom apartment in the newest block of the sought-after Gemini Park development, featuring dual-aspect balconies and a share of the freehold.

This well-presented apartment is ideally positioned within easy reach of local shops, bars and restaurants, with Elstree & Borehamwood mainline station also within comfortable walking distance.

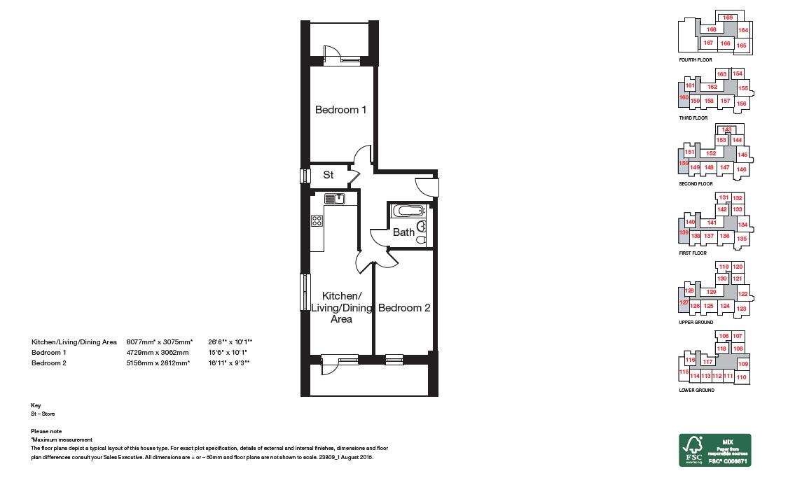
The accommodation comprises two generous double bedrooms, a contemporary family bathroom, and a bright open-plan kitchen/living area-ideal for both everyday living and entertaining. A key highlight is the dual-aspect balconies, with both the principal bedroom and the living area enjoying direct access, allowing for excellent natural light and valuable outdoor space.

The property further benefits from a share of the freehold, removing ground rent, extending the lease term, and providing greater control over building management plans.

Residents enjoy immaculately maintained communal gardens-overlooked by the bedroom balcony-along with an allocated underground parking space, visitor parking permits, and lift access to all floors.

Currently achieving a rental income of ?1,650 per calendar month, the apartment can be sold with vacant possession, making it an attractive option for both owner-occupiers and investors.

Property Ref: 34408167

Share:

Similar Properties

Affinity Place, Elstree Way, Borehamwood

2 Bedroom Apartment | Guide Price £325,000

This two-bedroom luxury apartment, located on the 5th floor in Borehamwood, is just a short stroll from fantastic local...

Elstree Way, Borehamwood

2 Bedroom Flat | £320,000

Built in 2018 this modern 2 bedroom apartment is located on the 5th floor and comprises of two double bedrooms, family b...

Todd Close, Borehamwood

2 Bedroom Apartment | £299,950

This well presented 2 bedroom apartment in Todd Close, Borehamwood is just a short stroll from the bustling high street...

St. Albans Road, Watford

1 Bedroom Apartment | £340,000

London Square Watford is set in the heart of the town on St Albans Road. Relish the bold, contemporary design with open-...

Manor Way, Borehamwood

2 Bedroom Apartment | £349,950

This modern 2 DOUBLE BEDROOM apartment is just a short stroll from the bustling Borehamwood high street with an array of...

St. Albans Road, Watford

2 Bedroom Apartment | £435,000

Set behind gates is 'The Trafalgar' which is a stunning 2 bedroom,2 bathroom apartment built by the award winning develo...

Village Estates (Elstree)

Elstree, Elstree, Hertfordshire, WD6 3BY

0203 7642222

How much is your home worth?

Use our short form to request a valuation of your property.

Request a Valuation

Mortgage Calculator

Amount Borrowed: £
Total Amount Repayable: £
Total Monthly Payment: £
©2026 The Guild of Property Professionals. All rights reserved. Terms and Conditions | Privacy Policy | Cookie Policy | Complaints Policy | Members Login
The Guild of Property Professionals Trading Address: 121 Park Lane, London W1K 7AG. GPEA Limited. Registered in England & Wales.  Company No: 02819824.  Registered Office Address: 2 St. Stephen's Court, St. Stephen's Road, Bournemouth, Dorset, England, BH2 6LA.  VAT Registration No: 576 8795 61
Book a Property Valuation Update Cookies Preferences