Devizes Road Box

Offers in excess of
£450,000
SSTC
This property listing is now SSTC

3 Bedroom Detached House for sale in Box

2 3 1
  • DETACHED PERIOD PROPERTY
  • STUNNING, LARGE GARDEN BACKING ON TO WOODLAND WITH WONDERFUL VIEWS
  • OFF-STREET PARKING AND EASY SIDE ACCESS TO BOTH SIDES OF THE PROPERTY
  • POPULAR LOCATION CLOSE TO AMENITIES
  • WELL PRESENTED WITH FURTHER SCOPE SUBJECT TO PLANNING PERMISSION
  • FLEXIBLE LIVING SPACE PERFECT FOR FAMILIES

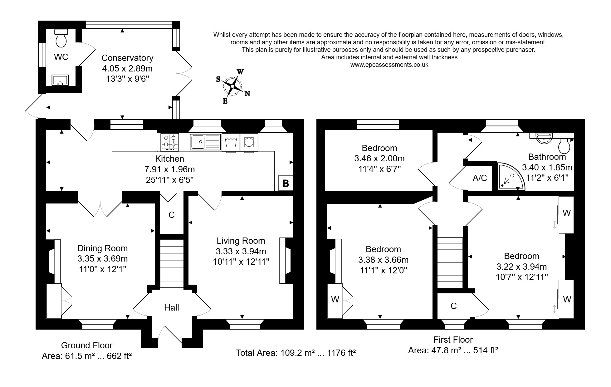
A lovely period detached home in the charming Village of Box. This wonderful home offers the perfect blend of modern comforts and traditional charm. Boasting three bedrooms, this property is perfect for growing families or someone looking to downsize.

As you enter, you have a good size dining room to the left and separate reception room to the right. The kitchen spreads across the rear of the property with plenty of countertop space and storage cupboards. This then leads on to a handy conservatory area with downstairs W/C.

Upstairs there are three good size bedrooms, two of which are doubles, as well as a family bathroom.

Outside is the real wow factor. The garden is a superb size, with handy areas for dining and entertaining, as well as a large lawn area for kids to run around in. This backs on to lovely woodland, meaning it is extremely private and has fantastic views.

Additional features include off-road parking and the fact it is detached means two side access points. With easy access to local amenities and excellent transport links, this property offers the ideal balance of rural tranquillity and urban convenience. Don't miss the opportunity to make this stunning property your new home. Contact us today to arrange a viewing.

Important Information

  • This is a Freehold property.
  • This Council Tax band for this property is: E
  • EPC Rating is D

Property Ref: DDB_DDB250121

Share:

Similar Properties

Leigh Park Road Bradford-On-Avon

3 Bedroom Detached Bungalow | Offers Over £450,000

A well placed detached bungalow offering a dynamic and spacious layout & ample off road parking in a convenient, quiet a...

Park Corner Freshford

3 Bedroom Terraced House | Offers Over £450,000

A charming unlisted period cottage situated in the sought after village of Freshford, ideally situated just five miles f...

Baileys Barn Bradford On Avon

3 Bedroom Terraced House | Offers in excess of £450,000

Hidden away in this idyllic position overlooking the picturesque Kennet & Avon Canal, a beautifully presented modern tow...

Ashgrove Peasedown St John

3 Bedroom Detached House | Asking Price £470,000

Charming period detached house in a picturesque village setting. This 3-bedroom property boasts a large garden, off-road...

Taylors Row Bradford On Avon

4 Bedroom Terraced House | Asking Price £475,000

Charming terraced house boasting 4 bedrooms, a lovely garden, and off-road parking. This property is perfect for familie...

Palairet Close Bradford On Avon

3 Bedroom Link Detached House | Asking Price £485,000

A well positioned 3 bedroom link-detached family home positioned on a generous plot within a peaceful cul-de-sac in the...

Davies & Davies (Bradford on Avon)

Bradford on Avon, Wiltshire, BA15 1JY

01225 867 555

How much is your home worth?

Use our short form to request a valuation of your property.

Request a Valuation

Mortgage Calculator

Amount Borrowed: £
Total Amount Repayable: £
Total Monthly Payment: £
©2025 The Guild of Property Professionals. All rights reserved. Terms and Conditions | Privacy Policy | Cookie Policy | Complaints Policy | Members Login
The Guild of Property Professionals Trading Address: 121 Park Lane, London W1K 7AG. GPEA Limited. Registered in England & Wales.  Company No: 02819824.  Registered Office Address: 2 St. Stephen's Court, St. Stephen's Road, Bournemouth, Dorset, England, BH2 6LA.  VAT Registration No: 576 8795 61
Book a Property Valuation Update Cookies Preferences