Broomhill Way, Boyatt Wood, Eastleigh

£435,000

4 Bedroom House for sale in Boyatt Wood

2 4 2

Located in Boyatt Wood, Eastleigh, this Georgian style semi detached house on Broomhill Way offers spacious and practical family accommodation. Upstairs comprises four well-proportioned bedrooms and two modern bathrooms. Downstairs features a large entrance hall, sitting room, dining room, kitchen, and utility room, providing a well-balanced layout for family living. Externally, there is a private rear garden and a garage offering secure parking and additional storage. The property is situated in a quiet cul-de-sac with good access to local amenities, making it a strong option for families seeking space and convenience.

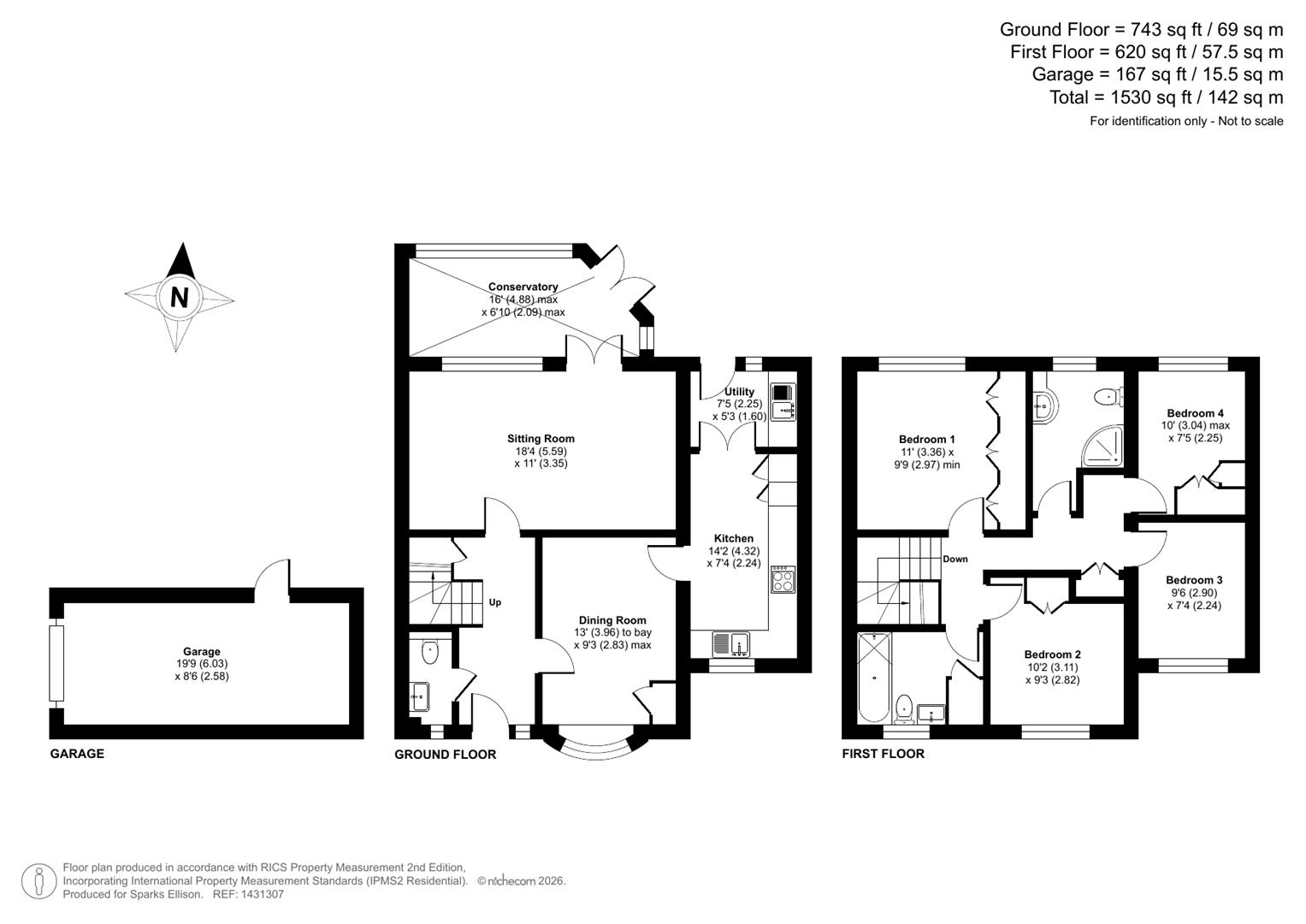
Accommodation -

Ground Floor -

Entrance Hall: -

Cloakroom: - White suite comprising WC, wash basin with cupboard under.

Sitting Room: - 18'4" x 11'0" (5.59m x 3.35m) Electric fireplace and door conservatory.

Conservatory: - 16'0" x 6'10" (4.88m x 2.09m) French doors onto rear garden.

Dining Room: - 13'0" x 9'3" (3.96m x 2.83m) Fitted cupboard accommodating boiler.

Kitchen: - 14'2" x 7'4" (4.32m x 2.24m) Range of units comprising integrated microwave, gas cooker, electric oven and space for dishwasher.

Utility: - 7'5" x 5'3" (2.25m x 1.60m) Fitted units, sink, space for washing machine/tumble dryer and fridge freezer, access to rear garden

First Floor -

Landing - Access to loft space

Bedroom 1: - 11'0" x 9'9" (3.36m x 2.97m) Fitted wardrobes.

Bedroom 2: - 10'2" x 9'3" (3.11m x 2.82m) Fitted wardrobe

Bedroom 3: - 9'6" x 7'4" (2.90m x 2.24m)

Bedroom 4: - 10'0" x 7'5" (3.04m x 2.25m)

Bathroom: - Modern suite, bath with shower over, WC, wash basin with cupboard under.

Shower Room: - Walk in shower cubicle, WC, wash basin with cupboard under.

Outside -

Front: - Path to front door, lawn and range of shrubs and hedging.

Rear: - Shingled area with path leading to raised garden area with lawn area, flowerbeds bordering and path leading to rear gate for access to driveway and garage.

Garage: - 19'9" x 8'6" (6.03m x 2.58m)

Other Information -

Tenure: - Freehold

Approximate Age: - 1980's

Approximate Area: - 1530 sq ft / 142 sq m

Sellers Position: - Looking for a forward purchase

Heating: - Gas central heating

Windows: - UPVC double glazing

Loft Space: - Partially boarded with connected light and connected ladder.

Infant/Junior School: - Shakespeare Infant School / Shakespeare Junior School

Secondary School: - Crestwood Community School

Local Council: - Eastleigh Borough Council - 02380 688000

Council Tax: - Band C

Agents Note: - If you have an offer accepted on a property we will need to, by law, conduct Anti Money Laundering Checks. There is a charge of £60 including vat for these checks regardless of the number of buyers involved.

Property Ref: 34576512

Share:

Similar Properties

Boyatt Lane, Otterbourne, Winchester

2 Bedroom Terraced House | £435,000

Located in the picturesque village of Otterbourne, Winchester, this charming terraced cottage, built in 1885, offers a d...

Pine Road, Hiltingbury, Chandler's Ford

3 Bedroom Semi-Detached House | £435,000

Situated in the highly sought-after area of Hiltingbury, this charming semi-detached house on Pine Road offers an ideal...

Pine Crescent, Hiltingbury, Chandlers Ford

4 Bedroom Terraced House | Offers in excess of £425,000

A particularly spacious four/five bedroom three storey home situated in a quiet crescent within the heart of Hiltingbury...

Charnwood Crescent, Hiltingbury, Chandler's Ford

3 Bedroom Semi-Detached House | £450,000

Located in the sought-after area of Charnwood Crescent, Hiltingbury, Chandler's Ford, this well-presented three-bedroom...

Kelburn Close, South Millers Dale, Chandlers Ford

3 Bedroom Detached House | Guide Price £450,000

A wonderful three bedroom detached home presented in excellent condition throughout benefitting from a 23ft sitting/dini...

Tuscan Walk, Peverells Wood, Chandler's Ford

3 Bedroom Detached Bungalow | £450,000

Located in the highly sought-after Peverells Wood area of Chandler's Ford is this delightful detached bungalow. With no...

Sparks Ellison (Chandler's Ford)

Chandler's Ford, Hampshire, SO53 2GJ

02380 255333

How much is your home worth?

Use our short form to request a valuation of your property.

Request a Valuation

Mortgage Calculator

Amount Borrowed: £
Total Amount Repayable: £
Total Monthly Payment: £
©2026 The Guild of Property Professionals. All rights reserved. Terms and Conditions | Privacy Policy | Cookie Policy | Complaints Policy | Members Login
The Guild of Property Professionals Trading Address: 121 Park Lane, London W1K 7AG. GPEA Limited. Registered in England & Wales.  Company No: 02819824.  Registered Office Address: 2 St. Stephen's Court, St. Stephen's Road, Bournemouth, Dorset, England, BH2 6LA.  VAT Registration No: 576 8795 61
Book a Property Valuation Update Cookies Preferences