Tocker Gardens, Warfield, Bracknell, Berkshire, RG42

£635,000

4 Bedroom House for sale in Bracknell

4

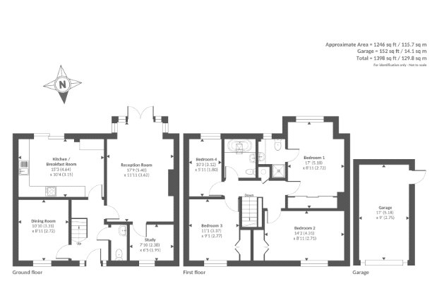
Nestled within a peaceful cul-de-sac in the highly sought after Quelm Park area of Warfield, this well presented four-bedroom detached home is the kind of property that simply feels right the moment you arrive. With driveway parking, a separate garage, and thoughtfully upgraded interiors, it offers the perfect balance of style, comfort and practicality for modern family living.Step inside and the layout flows effortlessly. The heart of the home is the living room — a wonderfully inviting space where natural light pours in through double doors leading out to the garden. A recently upgraded gas fireplace adds that all-important cosy focal point for quieter evenings in.The kitchen is a real highlight; a generous 15'3" eat-in space that has been tastefully upgraded with modern cabinetry, quality worktops and integrated appliances, along with a cleverly arranged laundry area. It's the sort of kitchen where family life naturally gathers. For more formal occasions, a separate dining room provides the perfect setting for entertaining friends and family. A dedicated study or home office is ideal for those working remotely, while a convenient cloakroom neatly completes the ground floor.Upstairs, the sense of space continues. The impressive master bedroom offers built-in double wardrobes and its own en-suite shower room. Two further generous bedrooms (14'2" and 11'1") both benefit from fitted wardrobes, while a fourth bedroom and well-appointed family bathroom complete the first-floor accommodation.Outside, the property continues to impress. The south-facing rear garden is a wonderful sun trap — perfect for relaxing, entertaining or simply enjoying warmer days outdoors. To the front, the garden offers a surprisingly private and spacious feel, framed by a young hedge ready to be shaped to your own style over time. A separate garage provides secure parking or useful additional storage.Tocker Gardens is superbly positioned for enjoying everything Warfield has to offer. Several beautiful green spaces are within easy walking distance, making this a fantastic location for dog owners and outdoor enthusiasts. Everyday conveniences are close at hand, including the Tesco in Warfield and a number of highly regarded schools such as Warfield CE Primary, Woodhurst Park Primary, Whitegrove Primary, Kennel Lane School and King's Academy.For shopping, dining and leisure, The Lexicon in Bracknell is just a short drive away — a vibrant destination filled with shops, restaurants and cafés, perfect for socialising or relaxed weekend browsing.The nearby village of Binfield adds even more charm, offering a parade of independent shops, local amenities and a true village atmosphere that continues to make this area so desirable.For commuters, the property is ideally located near Bracknell railway station with direct services to London Waterloo, while Maidenhead station provides fast Elizabeth Line connections into London Paddington. Heathrow Airport is also within easy reach, approximately a thirty-minute drive away — ideal for both business and leisure travel.A wonderful family home in a fantastic location — early viewing is highly recommended.

Important Information

  • This is a Freehold property.

Property Ref: BNL260007

Share:

Similar Properties

St. Georges Park, Binfield, Bracknell, Berkshire, RG42

4 Bedroom House | Offers in excess of £600,000

A SUPERB FAMILY HOME! Situated in the much sought after Fairways Development, built by Bloor Homes is this modern detach...

Binfield Road, Bracknell, Berkshire, RG42

4 Bedroom House | Offers in excess of £600,000

This 1930s bay-fronted, four-bedroom semi-detached home is **for sale** in a sought-after part of Bracknell, ideal for f...

Cuckoo Lane, Bracknell, Berkshire, RG12

4 Bedroom House | £600,000

This detached 4-bedroom house in the sought-after Jennett's Park area of Bracknell, offering a practical layout well-sui...

Cleopatra Place, Warfield, Bracknell, Berkshire, RG42

4 Bedroom House | Offers in excess of £675,000

Situated within the highly sought-after Poets development, this beautifully presented detached family home enjoys a peac...

Murrell Hill Lane, Binfield, Bracknell, Berkshire, RG42

2 Bedroom House | Offers in excess of £725,000

Positioned on one of Binfield Village's most prestigious and rarely available roads, Murrell Hill Lane is a particularly...

The Robins, Bracknell, Berkshire, RG12

4 Bedroom House | £730,000

Stunning detached home situated in a small cul-de-sac adjacent to Tarmans Copse with its 24 acres of wonderful walks. Th...

David Cliff (Binfield)

Terrace Road South, Binfield, Berkshire, RG42 4DS

01344 450666

How much is your home worth?

Use our short form to request a valuation of your property.

Request a Valuation

Mortgage Calculator

Amount Borrowed: £
Total Amount Repayable: £
Total Monthly Payment: £
©2026 The Guild of Property Professionals. All rights reserved. Terms and Conditions | Privacy Policy | Cookie Policy | Complaints Policy | Members Login
The Guild of Property Professionals Trading Address: 121 Park Lane, London W1K 7AG. GPEA Limited. Registered in England & Wales.  Company No: 02819824.  Registered Office Address: 2 St. Stephen's Court, St. Stephen's Road, Bournemouth, Dorset, England, BH2 6LA.  VAT Registration No: 576 8795 61
Book a Property Valuation Update Cookies Preferences