Monkton Farleigh, Bradford On Avon

Asking Price
£300,000

4 Bedroom Land for sale in Bradford On Avon

2 4 3
  • CIL PAID LEVEL CLEARED SITE WITH SERVICES CONNECTED FULL PLANNING PERMISSION GRANTED & IMPLEMENTED PL/2023/06979 WITHIN THE COTSWOLDS AONB LAYOUT CAN BE EASILY ADAPTED OFF ROAD PARKING FOR THREE...

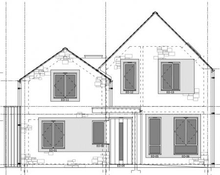
A unique opportunity to build a detached contemporary home in the sought-after location of Monkton Farleigh. Once completed, this detached home will span over 1,700 sqft and will be complete with natural materials and a refined palette that sits perfectly within its surroundings.

This freehold plot that has been cleared and services connected making this an incredibly rare opportunity.

Current plans allow for a generous living space, with the ground floor benefiting from an ample study or playroom and separate living room. Towards the back you will find an enviable kitchen diner and utility room that spans the entire width and will boast an exceptional verdant outlook. Upstairs has been thoughtfully planned, with four very good-sized bedrooms, two of which have ensuites. All of which can be reconfigured to your needs.

Monkton Farleigh is a popular village due to its proximity to the UNESCO city of Bath and is a mere 20-minute drive to Bath Spa station. The historic and quant town of Bradford on Avon also offers great connectivity. The M4 is easily accessible, and Chippenham Station has direct services to London Paddington.

There is an abundance of country walks and local villages to be enjoyed and a great community within Monkton Farleigh itself. The Village Pub offers a great spot for drinks and Box and Bathampton add further appeal.

Important Information

  • This is a Freehold property.

Property Ref: DDB240212

Share:

Similar Properties

Belcombe Place, Bradford On Avon

2 Bedroom End of Terrace House | Offers in excess of £300,000

Positioned in an exclusive location, this period home offering driveway parking, a workshop, garden and two bedrooms is...

Lamb Yard, Bradford on Avon

2 Bedroom Flat | Asking Price £300,000

Situated within a characterful building right in the heart of the town centre, this is a wonderfully light and particula...

The Old Batch, Bradford On Avon

2 Bedroom Terraced House | Asking Price £290,000

A delightful opportunity for First Time Purchase, Downsize or Investment offering 2 spacious bedrooms, off road parking...

Mythern Meadow, Bradford On Avon

3 Bedroom Link Detached House | Asking Price £325,000

Tucked away within a highly sought-after and quiet cul-de-sac in the charming town of Bradford-on-Avon, this attractive...

Huntingdon Place, Bradford On Avon

2 Bedroom Terraced House | Asking Price £325,000

A handsome 2 bedroom period home, hidden away in this delightful secret location, on the sought after Bath side of Bradf...

Woolley Terrace, Bradford on Avon

2 Bedroom Terraced House | Offers Over £325,000

A charming and well appointed two bedroom house positioned along a highly sought after and peaceful street just a short...

Davies & Davies (Bradford on Avon)

Bradford on Avon, Wiltshire, BA15 1JY

01225 867 555

How much is your home worth?

Use our short form to request a valuation of your property.

Request a Valuation

Mortgage Calculator

Amount Borrowed: £
Total Amount Repayable: £
Total Monthly Payment: £
©2026 The Guild of Property Professionals. All rights reserved. Terms and Conditions | Privacy Policy | Cookie Policy | Complaints Policy | Members Login
The Guild of Property Professionals Trading Address: 121 Park Lane, London W1K 7AG. GPEA Limited. Registered in England & Wales.  Company No: 02819824.  Registered Office Address: 2 St. Stephen's Court, St. Stephen's Road, Bournemouth, Dorset, England, BH2 6LA.  VAT Registration No: 576 8795 61
Book a Property Valuation Update Cookies Preferences