Brook Street, Great Bardfield, Essex

Offers Over
£350,000
SSTC
This property listing is now SSTC

2 Bedroom Cottage for sale in Braintree

2 2 2
  • Two Double Bedrooms
  • Grade II Listed Cottage
  • Two Reception Rooms & Separate Garden Room
  • Kitchen
  • Two Bathrooms
  • Landscaped Rear Garden
  • Stunning Period Features Throughout
  • Inglenook Fireplace
  • Desirable Village Location
  • Close To All Local Amenities

Nestled in the charming village of Great Bardfield, this delightful Grade II listed semi-detached cottage on Brook Street offers a perfect blend of comfort and convenience. With two inviting reception rooms and an additional garden room, this home provides ample space for relaxation and entertaining. The property features two double bedrooms, ensuring a restful retreat for all occupants. Additionally, there is a well appointed kitchen and two bathrooms, enhancing the practicality of daily living.

Great Bardfield is a desirable location, known for its picturesque surroundings and strong sense of community. Residents will appreciate the close proximity to local amenities, including a traditional butcher and welcoming public houses, making it easy to enjoy the best of village life.

This cottage is an ideal choice for those seeking a tranquil lifestyle while still being within reach of essential services. Whether you are a first-time buyer, a small family, or looking to downsize, this property presents a wonderful opportunity to embrace the charm of village living.

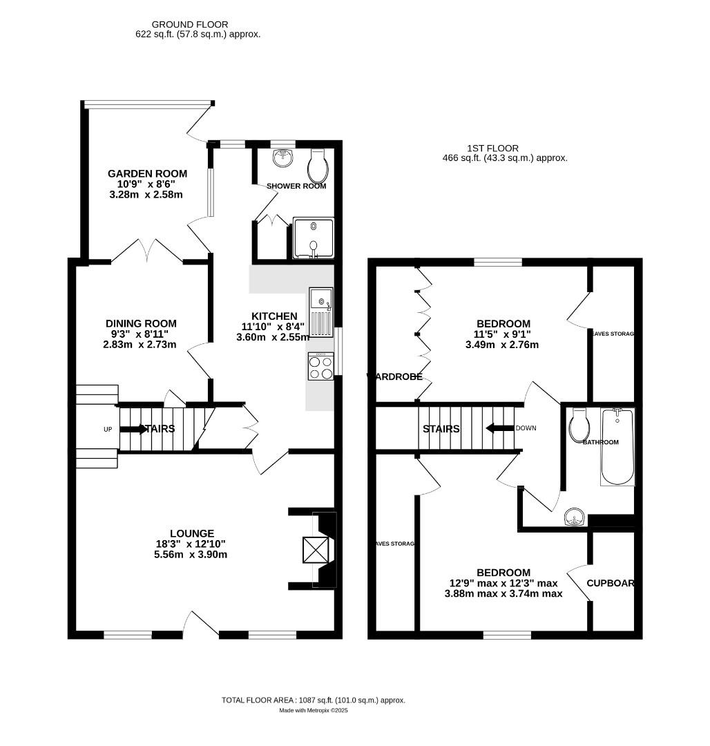
Living Room - 5.56 x 3.90 (18'2" x 12'9") - Accessed via front door, two windows to front aspect, inglenook fireplace with wood burning stove, exposed timbers, stairs rising to first floor, door leading to:-

Kitchen - 3.6 x 2.55 (11'9" x 8'4") - Window to side aspect, range of eye and base level units with working surface over, inset sink and drainer unit with mixer tap over, integrated oven & grill, inset electric hob, space for washing machine, space for fridge/freezer, exposed timbers, door sleading to:-

Inner Hallway - Door to garden room, space for tumble dryer, door leading to shower room.

Dining Room - 2.83 x 2.73 (9'3" x 8'11") - Double doors leading to garden room, door to under stairs storage, stairs rising to first floor, exposed timber.

Garden Room - 3.28 x 2.58 (10'9" x 8'5") - Windows to rear aspect, partly glazed door to side aspect leading to garden.

Shower Room - 2.30 x 1.93 (7'6" x 6'3") - Opaque window to rear aspect, fitted with a tiled shower cubicle with glass enclosure, low level W.C, wash hand basin with pedestal, extractor fan.

First Floor Landing - Doors leading to:-

Bedroom One - 3.49 x 2.76 (11'5" x 9'0") - Window to rear aspect, range of fitted wardrobes.

Bedroom Two - 3.88 x 3.74 (12'8" x 12'3") - Window to front aspect.

Family Bathroom - 2.61 x 2.48 (8'6" x 8'1") - Velux window, fitted with a panel enclosed bath, low level W.C, wash hand basin, exposed brickwork.

Rear Garden - The rear garden has been beautifully landscaped with a patio area directly to the rear of the property with steps leading up to laid lawn. There is a variety of mature trees, shrub borders and flower beds with a further patio seating area and timber shed at the foot of the garden.

Property Ref: 34198601

Share:

Similar Properties

Mortymer Close, Little Canfield, Dunmow, Essex

2 Bedroom End of Terrace House | £350,000

Located within a quiet close on the highly sought-after Priors Green development, this immaculate two double bedroom end...

Cranham Road, Broxted, Dunmow, Essex

2 Bedroom Semi-Detached Bungalow | Offers Over £350,000

Daniel Brewer are pleased to market this two double bedroom semi-detached bungalow located at the end of a residential r...

Flitch Lane, Dunmow

2 Bedroom End of Terrace House | Offers Over £350,000

Located on Flitch Lane in the charming market town of Great Dunmow, this delightful end terrace house presents an excell...

Mercia Road, Dunmow

2 Bedroom Semi-Detached House | Offers Over £365,000

Daniel brewer are pleased to market this well presented two double bedroom semi-detached home on a recent development ne...

New Green, Bardfield Saling, Braintree, Essex

2 Bedroom Semi-Detached House | Offers Over £375,000

Daniel Brewer are pleased to market this two/three bedroom semi-detached family home located down a quiet country lane o...

Canon Road, Flitch Green, Essex

3 Bedroom Semi-Detached House | Offers Over £375,000

Situated on the popular development of Flitch Green is this well-presented three bedroom semi-detached family home boast...

Daniel Brewer Estate Agents (Great Dunmow)

51 High Street, Great Dunmow, Essex, CM6 1AE

01371 856 585

How much is your home worth?

Use our short form to request a valuation of your property.

Request a Valuation

Mortgage Calculator

Amount Borrowed: £
Total Amount Repayable: £
Total Monthly Payment: £
©2026 The Guild of Property Professionals. All rights reserved. Terms and Conditions | Privacy Policy | Cookie Policy | Complaints Policy | Members Login
The Guild of Property Professionals Trading Address: 121 Park Lane, London W1K 7AG. GPEA Limited. Registered in England & Wales.  Company No: 02819824.  Registered Office Address: 2 St. Stephen's Court, St. Stephen's Road, Bournemouth, Dorset, England, BH2 6LA.  VAT Registration No: 576 8795 61
Book a Property Valuation Update Cookies Preferences