Squires Mead, Great Bardfield, Essex

Offers Over
£675,000

4 Bedroom Detached House for sale in Braintree

4
  • Four Bedroom Detached Family Home
  • Generous Rear Garden
  • Double Garage & Driveway Parking
  • Living Room
  • Separate Dining Room
  • Kitchen & Utility Room
  • Study & Cloakroom
  • En-Suite Facilities
  • Family Bathroom
  • Potential To Extend 'STP'

Nestled in the charming village of Great Bardfield, Essex, this delightful detached house on Squires Mead offers a perfect blend of comfort and functionality. With four spacious bedrooms, this property is ideal for families seeking a serene environment while still being close to local amenities.
The property boasts two inviting reception rooms, perfect for both relaxation and entertaining guests. The study provides a quiet space for those who work from home, ensuring productivity in a peaceful setting. The well-appointed utility room adds convenience to daily chores, making household management a breeze.
Bedroom one has en-suite facilities with an additional family bathroom and ground floor cloakroom.
One of the standout features of this home is the large rear garden, which offers ample space for outdoor activities, gardening, or simply enjoying the fresh air. It is an excellent area for children to play.
Additionally, the property boasts a double garage and driveway parking, providing plenty of space for vehicles and storage.
Overall, this detached house in Great Bardfield is a wonderful opportunity for those looking to settle in a peaceful community while enjoying the comforts of modern living. With its generous living spaces and outdoor area, it is sure to appeal to a variety of buyers.

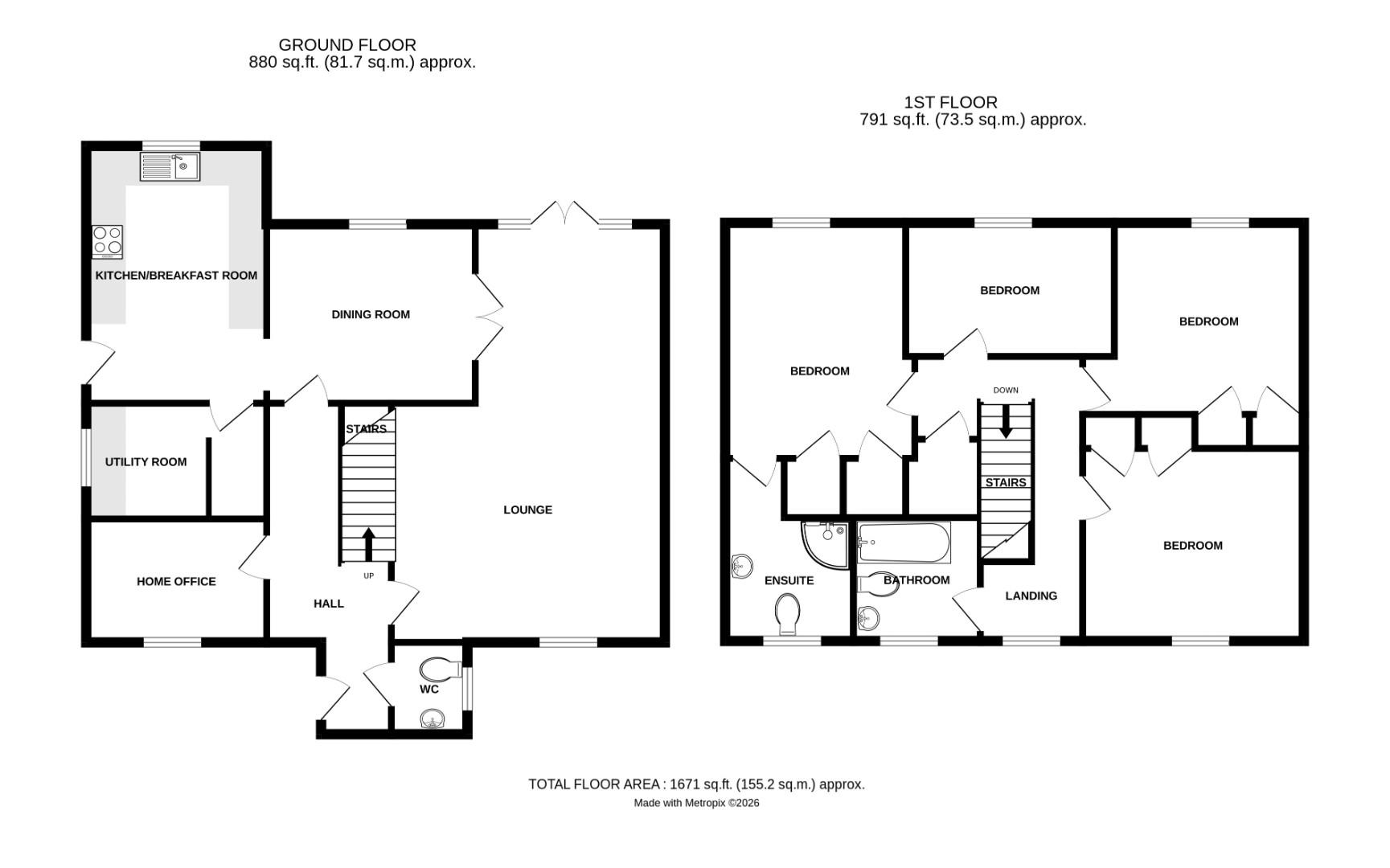
Entrance Hall - Entered via front door, stairs rising to first floor landing, doors leading to:-

Living Room - 7.26m x 4.70m (23'10 x 15'5) - French Doors to rear aspect, window to front aspect, double doors leading to:-

Dining Room - 3.43m x 3.05m (11'3 x 10') - Window to rear aspect, door leading to:-

Kitchen/Breakfast Room - 4.39m x 3.05m (14'5 x 10') - Window to rear aspect, glazed door to side aspect leading to rear garden, fitted with a range of eye and base level units with working surface over, inset sink with mixer tap, four ring gas hob with extractor fan over, integrated oven and grill, integrated dishwasher space for fridge/freezer.

Utility Room - 2.08m x 1.96m (6'10 x 6'5) - Window to side aspect, floor mounted boiler, water softener, space for washing machine, space for tumble dryer.

Study - 3.07m x 2.06m (10'1 x 6'9) - Window to front aspect.

Cloakroom - Opaque window to side aspect, low level W.C, wall mounted wash hand basin.

First Floor Landing - Doors leading to:-

Bedroom One - 4.04m x 3.07m (13'3 x 10'1) - Window to rear aspect, two built in wardrobes, door leading to:-

En-Suite - Opaque window to front aspect, fitted with a glass enclosed shower cubicle, wash hand basin with vanity unit, low level W.C.

Bedroom Two - 3.84m x 3.28m (12'7 x 10'9) - Window to rear aspect, two built in wardrobes.

Bedroom Three - 3.35m x 3.25m (11' x 10'8) - Window to front aspect.

Bedroom Four - 3.48m x 2.31m (11'5 x 7'7 ) - Window to rear aspect.

Family Bathroom - Opaque window to front aspect, fitted with a panel enclosed bath with wall mounted shower attachment and glass enclosure, low level W.C, wash hand basin with pedestal.

Rear Garden - The rear garden is a great size and made up of mainly lawn with a generous patio area directly to the rear of the property perfect for entertaining. There is a variety of mature trees, shrub border and flower beds. At the foot of the garden there is a gate granting access to a public footpath with beautiful walks.

Driveway Parking - Suitable for various vehicles.

Double Garage - With two up and over doors, power and lighting.

Property Ref: 34558711

Share:

Similar Properties

Thaxted Road, Wimbish, Saffron Walden, Essex

3 Bedroom Barn Conversion | Offers Over £675,000

Daniel Brewer are excited to present this modern barn conversion located just outside the charming market town of Thaxte...

Farmer Close, Little Canfield, Dunmow

5 Bedroom Detached House | Offers Over £675,000

Situated in a peaceful close on the sought-after Priors Green development, this exceptional five-bedroom detached execut...

High Meadow, Dunmow

4 Bedroom Detached House | Guide Price £675,000

Nestled in the charming area of High Meadow, Dunmow, this splendid detached house offers a perfect blend of comfort and...

Thaxted Road, Wimbish, Saffron Walden

3 Bedroom Barn Conversion | Offers Over £700,000

Located in the village of Wimbish is this impressive three bedroom detached barn conversion offering a modern living lay...

Bullocks Lane, Takeley, Bishop's Stortford

4 Bedroom Detached House | Offers Over £700,000

Daniel Brewer are pleased to market this well presented four bedroom detached country home in the quiet hamlet of "Hope...

Shalford Road, Rayne, Braintree

4 Bedroom Detached House | Offers Over £700,000

This impressive three bedroom detached family home boasting a self contained one bedroom annexe is located in the popula...

Daniel Brewer Estate Agents (Great Dunmow)

51 High Street, Great Dunmow, Essex, CM6 1AE

01371 856 585

How much is your home worth?

Use our short form to request a valuation of your property.

Request a Valuation

Mortgage Calculator

Amount Borrowed: £
Total Amount Repayable: £
Total Monthly Payment: £
©2026 The Guild of Property Professionals. All rights reserved. Terms and Conditions | Privacy Policy | Cookie Policy | Complaints Policy | Members Login
The Guild of Property Professionals Trading Address: 121 Park Lane, London W1K 7AG. GPEA Limited. Registered in England & Wales.  Company No: 02819824.  Registered Office Address: 2 St. Stephen's Court, St. Stephen's Road, Bournemouth, Dorset, England, BH2 6LA.  VAT Registration No: 576 8795 61
Book a Property Valuation Update Cookies Preferences