High Garrett, Braintree

Offers Over
£270,000

2 Bedroom Apartment for sale in Braintree

1 2 1
  • 21' DUAL ASPECT Open Plan Living Space
  • Two DOUBLE Bedroom Duplex Apartment
  • Prestigious Development Set Within Unique Historic Building
  • IMMACULATELY PRESENTED Throughout
  • Long 244 Years Remaining On Lease
  • STUDY / DINING ROOM Linked To Main Living Space
  • Allocated Parking For Two Vehicles Set Behind Secure Gated Entry
  • Ideal For First Time Buyers!
  • Convenient Access To Braintree Station (4.2m), Halstead & A120/M11

Boasting a 21' DUAL ASPECT open plan living space, STUDY/DINING ROOM and two DOUBLE bedrooms is this IMMACULATELY PRESENTED duplex apartment. Benefiting from a LONG 244 YEAR LEASE term remaining, allocated parking for two vehicles set within secure gated entry and ideally positioned within a prestigious development in a unique, historic building. Offering convenient access to Braintree Town Centre & Station (4.2 miles), Halstead and A120/M11. Ideal for first time buyers!

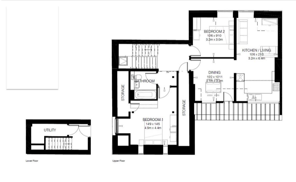
The accommodation, with approximate room sizes, is as follows:

Main Entry: - Secure gated entry with phone system with a secure main entry to reception hall and main foyer.

First Floor Accommodation: -

Entrance Lobby: - Secure main entry door with stairs to main accommodation, access to utility cupboard.

Utility Cupboard: - Spacious built-in cupboard useful for washer/dryer and additional storage space.

Second Floor: -

Landing Area: - Central landing space with access into all rooms.

Study / Dining Room: - 3.33m x 3.10m (10'11 x 10'2) - Velux windows to rear aspect, radiator, wood flooring, open access into open plan living space.

Open Plan Living Space: - 6.40m x 3.20m (21'0 x 10'6) - Double glazed windows to front and rear aspects, kitchen comprising a series of matching base and wall units, edged work surfaces incorporating a one and a half bowl sink with central mixer tap and drainer, built-in oven, ceramic hob with extractor over, integrated fridge/freezer and dishwasher, central dining/breakfast area adjacent to lounge, wood flooring.

Bedroom One: - 4.50m x 4.39m (14'9 x 14'5) - Double glazed windows to side and rear aspects, radiator, carpeted flooring.

Bedroom Two: - 3.20m x 3.00m (10'6 x 9'10) - Double glazed window to front aspect, radiator, carpeted flooring.

Bathroom: - Panelled bath with central mixer tap and dual shower over, inset WC, inset wash hand basin, fitted LED mirror, heated towel rail.

Exterior: -

Communal Gardens: - Well-maintained and landscaped communal gardens across property frontage.

Parking: - Allocated parking set within secure gates.

Agents Notes: - Leasehold Information:
Service Charge: £3,101 per annum.
Years Remaining On Lease: 249 year lease commencing from 1/1/2021.

Council Tax Band: C

For further information regarding this property, please contact Hamilton Piers.

Property Ref: 34510126

Share:

Similar Properties

Comma Close, Braintree

2 Bedroom Semi-Detached House | Guide Price £270,000

Boasting NO ONWARD CHAIN and benefiting from an UNOVERLOOKED rear garden, 15' DUAL ASPECT lounge & spacious kitchen/dine...

Tortoiseshell Way, Braintree

2 Bedroom Semi-Detached House | Offers Over £270,000

Benefiting from an OPEN PLAN living space totalling 26' in length, two DOUBLE bedrooms and allocated parking for two veh...

Gore Terrace, Rayne, Braintree, CM77

2 Bedroom Terraced House | Guide Price £270,000

Boasting a spacious 17? kitchen, TWO reception rooms & d/stairs cloakroom is this EXTENDED two double bedroom cottage. O...

Bolingbroke Close, Great Leighs, Chelmsford

3 Bedroom Semi-Detached House | Guide Price £275,000

Boasting NO ONWARD CHAIN and offering an UNOVERLOOKED and very generously sized rear garden and ideally set on a substan...

Hance Lane, Rayne, Braintree

3 Bedroom Terraced House | £275,000

Benefiting from an UNOVERLOOKED garden, a spacious 16' kitchen/diner & 15' CONSERVATORY is this EXTENDED three bedroom t...

Shimbrooks, Great Leighs, Chelmsford

2 Bedroom Terraced House | Offers in region of £275,000

Benefiting from two DOUBLE bedrooms, GARAGE with allocated parking and IMMACULATELY PRESENTED throughout is this modern...

Hamilton Piers (Great Notley)

Great Notley, Essex, CM77 7AE

01376341141

How much is your home worth?

Use our short form to request a valuation of your property.

Request a Valuation

Mortgage Calculator

Amount Borrowed: £
Total Amount Repayable: £
Total Monthly Payment: £
©2026 The Guild of Property Professionals. All rights reserved. Terms and Conditions | Privacy Policy | Cookie Policy | Complaints Policy | Members Login
The Guild of Property Professionals Trading Address: 121 Park Lane, London W1K 7AG. GPEA Limited. Registered in England & Wales.  Company No: 02819824.  Registered Office Address: 2 St. Stephen's Court, St. Stephen's Road, Bournemouth, Dorset, England, BH2 6LA.  VAT Registration No: 576 8795 61
Book a Property Valuation Update Cookies Preferences