Fowlfield Row, Breage

Guide Price
£540,000
SSTC
This property listing is now SSTC

3 Bedroom Semi-Detached House for sale in Breage

1 3 1
  • THREE BEDROOM SEMI DETACHED HOUSE
  • BEAUTIFULLY PRESENTED PROPERTY
  • MANY CHARACTER FEATURES
  • CENTRAL HEATING, DOUBLE GLAZING & SOLAR PANELS
  • LILLEVILLA STUDIO STYLE LOG CABIN
  • LOVELY SOUTH FACING GARDEN
  • PARKING
  • FREEHOLD
  • COUNCIL TAX D
  • EPC E-54

Situated in the popular Cornish village of Breage is this well proportioned, three bedroom semi detached house of immense charm and character. The beautifully presented property, which enjoys many character features from its local stone facade to impressive inglenook fireplace. The property benefits from central heating (under floor heating on the ground floor), double glazing and solar panels. A real feature of the residence is the extremely good sized southerly facing garden, which is beautifully maintained with a large lawned area, well established plants and shrubs and vegetable plot. Located at the end of the garden is a recently installed studio that has multiple uses as office space, gym, crafting or guest accommodation.

To the rear of the residence is a parking area and to the front of the residence is a further parking space.

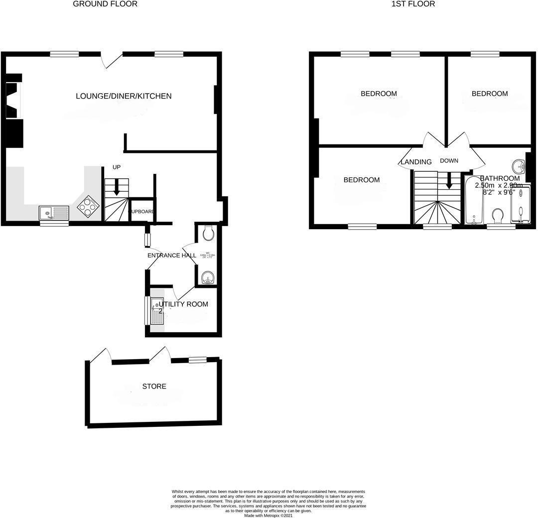
In brief, the accommodation comprises, an entrance area, utility room, w.c., inner hall and completing the ground floor, a lounge kitchen/diner. On the first floor is a bathroom and three bedrooms.

Breage itself is an extremely popular village which boasts many amenities including a post office, public house, primary school and garden centre with well regarded caf�. Being situated along the A394 allows convenient transportation to Porthleven with its many restaurants, shops and public houses as well as the more extensive amenities of the market town of Helston with national stores, cinema and leisure centre with indoor pool.

The Accommodation Comprises (Dimension Approximat -

Door To The Entrance Area -

Entrance Area - With a skylight, tiled floor, door to the w.c. and door to the utility room.

Utility Room - 2.44m x 1.68m (8' x 5'6") - Comprising working top surfaces incorporating a sink unit with drainer and a mixer tap over, cupboards and drawers under and a space for a washing machine. There is a tiled floor and a window to the side. The room houses the combination oil fired boiler.

W.C. - Comprising a w.c. with concealed cistern, sink with mixer tap over and cupboards under and a tiled splashback.

Inner Hall - This is a useful storage area and opening to the lounge kitchen/diner.

Lounge Kitchen/Diner - 7.39m x 6.10m (narrowing to 3.43m) (24'3" x 20' (n - An impressive L-shaped open plan room with a charming inglenook fireplace with local stone surround and tiled hearth, housing a woodburner and acting as a focal point for the room. This area is dual aspect with an outlook to the front garden and rear aspect.

Kitchen Area - Working top surfaces incorporate a sink unit with drainer and mixer tap over, cupboards and drawers under. An array of built-in appliances.

Stairs And Landing - With access to the loft and doors to all remaining rooms.

Bathroom - An attractive suite comprising bath with a mixer tap over, close coupled w.c., shower cubicle with both rain and flexible shower heads and a wash basin with mixer tap over, surround and cupboards under. There is a obscured window to the rear and partially tiled walls.

Bedroom One - 4.65m (narrowing to 4.34m) x 3.20m (15'3" (narrowi - With an outlook over the front garden and towards St Brecca Church.

Bedroom Two - 3.12m x 3.12m (10'3" x 10'3") - Outlook to the front and towards St Brecca Church.

Bedroom Three - 3.20m x 2.82m (10'6" x 9'3") - With an outlook to the rear aspect and towards open countryside.

Outside - To the rear of the property is a parking area and an outbuilding which is characterful in appearance and is a good size housing the solar panel controls and batteries. The outbuilding also has a small storage area. The southerly facing front garden is a real feature of the property being beautifully maintained with an abundance of well established plants and shrubs. There is a good sized lawn area, patio area and a vegetable plot. Situated towards the end of the garden is a recently installed chalet style building.

Agents Note One - We are advised that there is a shared path to the side of the property.

Agents Note Two - We are advised that to the side of the property is an area which is owned by a neighbouring residence and Conson House has a right of way over this area.

Agents Note Three - We are advised that the access lane to the rear of the property is shared with other properties.

World Heritage Site - We understand this property is located in a world heritage site. For details of these areas visit Cornwall Mapping and use the Council's interactive map.

Conservation Area - We understand this property is located in a conservation area. For details of conservation areas visit Cornwall Mapping and use the Council's interactive map.

Services - Mains water, electricity, private drainage and solar panels.

Mobile And Broadband - To check the broadband coverage for this property please visit -
https://www.openreach.com/fibre-broadband
To check the mobile phone coverage please visit -
https://checker.ofcom.org.uk/

Council Tax - Council Tax Band D

Anti-Money Laundering - We are required by law to ask all purchasers for verified ID prior to instructing a sale

Proof Of Finance - Purchasers - Prior to agreeing a sale, we will require proof of financial ability to purchase which will include an agreement in principle for a mortgage and/or proof of cash funds.

Date Details Prepared. - 3rd September 2025

Property Ref: 453323_34198519

Share:

Similar Properties

Prah View, Chy An Dour Road, Praa Sands

2 Bedroom Apartment | Guide Price £525,000

A fabulous two bedroom contemporary apartment in a luxury development enjoying stunning sea and coastal views. Built by...

Gander Lane, Helston

4 Bedroom Detached House | Guide Price £525,000

Being tucked away yet enjoying a supremely convenient setting, Plot 7 is the latest release in the fabulous Gander Lane...

Meadow View, Crowntown

4 Bedroom Detached House | Guide Price £515,000

Completed in 2021 by a well regarded local builder this stunning property offers individually designed, spacious accommo...

The Cove, Coverack, Helston

6 Bedroom End of Terrace House | Guide Price £550,000

Situated in the heart of the highly regarded coastal village of Coverack is this classically proportioned Edwardian five...

Angrouse Lane, Mullion

3 Bedroom Detached Bungalow | Guide Price £550,000

Meadowbank is a striking, individual modern bungalow of generous proportions, which is favourably located along the high...

Higher Tremayne, Praze, Camborne

3 Bedroom Detached Bungalow | Guide Price £550,000

A unique opportunity to buy a three bedroom detached bungalow set amidst some six acres of beautiful rolling Cornish cou...

Christophers Estate Agents Porthleven (Porthleven)

Fore St, Porthleven, Cornwall, TR13 9HJ

01326 573737

How much is your home worth?

Use our short form to request a valuation of your property.

Request a Valuation

Mortgage Calculator

Amount Borrowed: £
Total Amount Repayable: £
Total Monthly Payment: £
©2025 The Guild of Property Professionals. All rights reserved. Terms and Conditions | Privacy Policy | Cookie Policy | Complaints Policy | Members Login
The Guild of Property Professionals Trading Address: 121 Park Lane, London W1K 7AG. GPEA Limited. Registered in England & Wales.  Company No: 02819824.  Registered Office Address: 2 St. Stephen's Court, St. Stephen's Road, Bournemouth, Dorset, England, BH2 6LA.  VAT Registration No: 576 8795 61
Book a Property Valuation Update Cookies Preferences