Velindre, Brecon, LD3

£580,000

3 Bedroom Commercial Development for sale in Brecon

2 3 1
  • Detached Bungalow
  • Three Bedrooms
  • 2.45 Acres
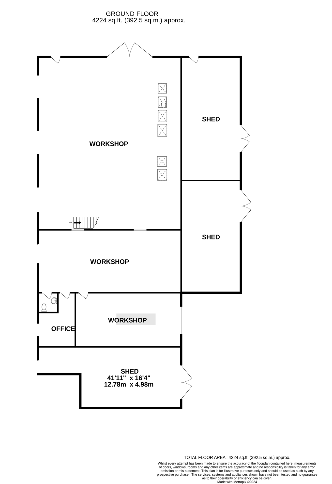
  • Large Light Industrial Unit (4,500 sqft) Suitable For A Variety Of Uses Or Has Planning Permission To Remove & Build Two Houses
  • Plenty Of Parking
  • Popular But Quiet Village Location
  • Kitchen
  • Bathroom
  • Lots Of Potential
  • Freehold

Linden Lea offers great potential to live and work from home. Sitting on approx. 2.45 acres of garden and paddock, the detached bungalow comprises of a large porch, entrance hall, living room with fireplace, kitchen with plenty of cupboard space and a dining room off. It also has three double bedrooms, a bathroom and separate toilet. Outside a gated driveway leads you to a parking area. The gardens are mainly to the front and are lawned with shrub and flower borders. A paved path leads around to the rear of the property which is made up of lawn, further shrub borders and a good-sized existing vegetable area. A gate from the yard leads to a paddock which is gently sloping and approx. 1.75 acres, ideal for grazing animals. Adjacent to the bungalow there is a large, light industrial unit which is divided into one large and two smaller workshops, three storage areas, an office and a toilet. This outbuilding would suit a variety of uses such as a workshop and storage. If not needed, outline planning is in place to remove and build two houses. The property therefore has lots of options and potential.

Felindre is a lovely, rural community within the Brecon Beacons National Park only 5 miles from Hay-On-Wye, a historic market town which lies on the Welsh border and is famous for its books and literary festival. It has a good range of shops and amenities such as a supermarket, doctor's and dental surgeries, primary school, library, pubs, restaurants and post office. The larger town of Brecon is 11 miles away which has a further range of shops and amenities. The nearest High School is Gwernyfed which is 2 miles down the road.

Council Tax: We have been informed that this property has been placed under council tax band ‘F’.

Important Information

  • This is a Freehold property.

Property Ref: 7754001_29550437

Share:

Similar Properties

Llandeilo'r Fan, Brecon, LD3

5 Bedroom Smallholding | £580,000

Situated in a glorious rural location is this four bed, detached house with adjoining annexe, traditional hay barn, gara...

Velindre, Brecon, LD3

3 Bedroom Detached Bungalow | £580,000

Linden Lea has great development potential. It has a large, light industrial unit ideal for running a business from whic...

Cerrigcochion Road, Brecon, LD3

6 Bedroom Detached House | £569,950

A six bed, detached family home in a popular location. Enjoying a stunning kitchen/diner, parking, good size garden and...

Forge Road, Llangynidr, Crickhowell, NP8

6 Bedroom Not Specified | £599,950

Individually designed and extensively updated, this spacious four/five bedroom home is tucked away in a popular village,...

Senni, Brecon, LD3

4 Bedroom Detached House | £600,000

Situated in a wonderful spot and enjoying glorious countryside views is this four bed, detached house with gardens and t...

Camden Road, Brecon, LD3

5 Bedroom Semi-Detached House | £600,000

A spacious, five bed family home in a sought after location and enjoying parking, a double garage and pretty gardens.

James Dean The Estate Agents Brecon (Brecon)

Brecon, Powys, LD3 9AD

01874 624 757

How much is your home worth?

Use our short form to request a valuation of your property.

Request a Valuation

Mortgage Calculator

Amount Borrowed: £
Total Amount Repayable: £
Total Monthly Payment: £
©2025 The Guild of Property Professionals. All rights reserved. Terms and Conditions | Privacy Policy | Cookie Policy | Complaints Policy | Members Login
The Guild of Property Professionals Trading Address: 121 Park Lane, London W1K 7AG. GPEA Limited. Registered in England & Wales.  Company No: 02819824.  Registered Office Address: 2 St. Stephen's Court, St. Stephen's Road, Bournemouth, Dorset, England, BH2 6LA.  VAT Registration No: 576 8795 61
Book a Property Valuation Update Cookies Preferences