Canal Road, Brecon, LD3

£325,000

3 Bedroom Terraced House for sale in Brecon

1 3 2
  • three bedrooms
  • sought after location fronting the Brecon & Monmouthshire canal
  • parking
  • low maintenance garden
  • kitchen/breakfast room
  • living/dining room
  • conservatory
  • no chain
  • cloakroom, bathroom & en-suite

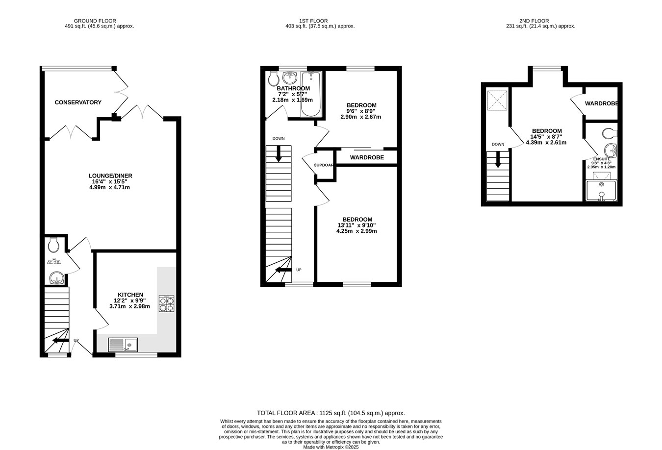
6 Elliott Place is a lovely townhouse set in a fantastic location. The ground floor comprises an entrance hall and a kitchen/breakfast room fitted with a good range of cupboards, integrated oven and hob and plumbing for a washing machine. To the rear, the generous living/dining room enjoys an abundance of natural light and features two sets of patio doors, one opening into the conservatory and the other leading directly out to the rear garden. A useful cloakroom completes the ground floor accommodation. On the first floor are two well-proportioned bedrooms, one of which benefits from built-in wardrobes, along with a family bathroom. The second floor is dedicated to the main bedroom, which enjoys the added benefit of an en-suite shower room and built in wardrobe. The property enjoys attractive views from both the front and rear. Externally, the rear courtyard garden is paved for ease of maintenance and provides access to the allocated parking for two vehicles. Further benefits include gas central heating and double glazing throughout. Offered with no onward chain, this lovely home would make an ideal home or second home. Viewing highly recommended.

Elliott Place is an attractive terrace of town houses which front the Brecon & Monmouthshire canal within easy access of the town centre. Brecon is a traditional market town known for its stunning scenery, rich history and welcoming community. It boasts a wide range of amenities including independent shops, cafés, restaurants, supermarkets, a leisure centre, theatre and the popular weekly market. The town is also well served by both primary and secondary schools, as well as Christ College, a private boarding school for boys and girls aged 7-18. For outdoor enthusiasts, the surrounding countryside is second to none. Residents enjoy immediate access to picturesque walks, cycling routes, riverside paths and iconic peaks such as Pen y Fan. The Monmouthshire & Brecon Canal winds through the area, adding charm and offering peaceful towpath walks. Brecon benefits from good road links, with easy access to Abergavenny, Hereford, Cardiff and Swansea, making it ideal for commuters or those wanting to explore further afield while still enjoying a slower pace of life.

Services: All mains services. Gas central heating. Please note we have not tested the appliances, central heating or services.

Council Tax: We have been informed that this property has been placed under council tax band ‘E’.

Please note: There is a service charge payable to Elliott Place Management Company Limited (EPMC). This was set up when the properties were built to oversee the 'communal' responsibilities and obligations that affect all properties in Elliott Place- namely the upkeep and maintenance of the private road, the lighting, the footpath and fence, overseeing the electrical supply, bank account and as a limited company, dealing with the financial, legal and liability obligations related to this.

The annual fee (£150.00 in May 2025) is to be paid by all shareholders into the company accounts in April/May each year. The fee is calculated based on the annual costs of the company plus the intention to build a minimum balance of £2,000 in the account. The £2,000 is required to cover the excess of the company's insurance policy, should a claim be necessary. There is an initial, one off, transfer fee payable by the buyer of properties in Elliott Place. A fee of £250 has been charged in the past for this although this is under review for future transfers.

 

Important Information

  • This is a Freehold property.

Property Ref: 7754001_26941330

Share:

Similar Properties

Llanfihangel-Nant-Bran, Brecon, LD3

2 Bedroom Detached House | £325,000

A delightful, character cottage within the heart of a rural village. Enjoying plenty of living space, wood burning stove...

Canalside, Brecon, LD3

3 Bedroom End of Terrace House | £325,000

A fab, three bed house in a wonderful location and enjoying parking and an easily managed garden with views over the can...

Hoggan Park, Brecon, Brecon, LD3

3 Bedroom Semi-Detached House | £324,995

With an attractive stone front, The Alder is a popular, three bedroom, family home. Inside there is an entrance hall, WC...

The Alder, Brecon, Brecon, LD3

3 Bedroom Semi-Detached House | £330,000

*NEW BUILD* Take a look at this fab, three bed, semi-detached house with double garage and gardens. 

Hoggan Park, Brecon, Brecon, LD3

3 Bedroom Semi-Detached House | £330,000

A three bed, semi-detached family home with integral garage, parking and garden.

The Moorings, Brecon, LD3

3 Bedroom Semi-Detached House | £330,000

In a sought after and convenient location is this modern and attractively finished, three bed semi-detached home enjoyin...

James Dean The Estate Agents Brecon (Brecon)

Brecon, Powys, LD3 9AD

01874 624 757

How much is your home worth?

Use our short form to request a valuation of your property.

Request a Valuation

Mortgage Calculator

Amount Borrowed: £
Total Amount Repayable: £
Total Monthly Payment: £
©2026 The Guild of Property Professionals. All rights reserved. Terms and Conditions | Privacy Policy | Cookie Policy | Complaints Policy | Members Login
The Guild of Property Professionals Trading Address: 121 Park Lane, London W1K 7AG. GPEA Limited. Registered in England & Wales.  Company No: 02819824.  Registered Office Address: 2 St. Stephen's Court, St. Stephen's Road, Bournemouth, Dorset, England, BH2 6LA.  VAT Registration No: 576 8795 61
Book a Property Valuation Update Cookies Preferences