Adelaide Gardens, Brecon, LD3

£200,000

3 Bedroom End of Terrace House for sale in Brecon

1 3 1
  • three bedrooms
  • end of terrace house
  • in need of modernisation
  • popular location
  • front & rear gardens
  • no chain
  • living room
  • kitchen/diner
  • bathroom

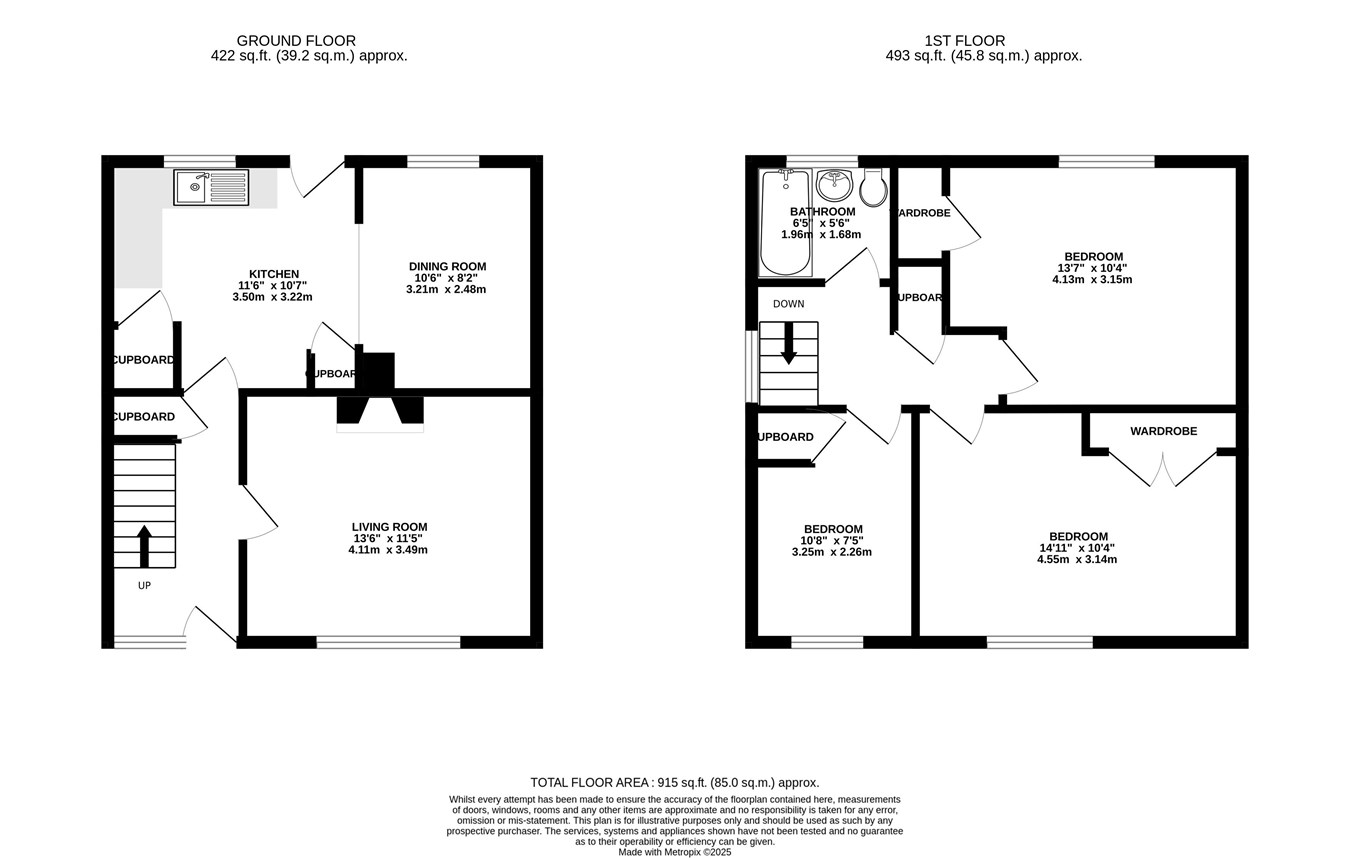
This end-terrace house offers an exciting opportunity for anyone looking to modernise and create a home to their own taste. With no onward chain, it is ideal for first-time buyers, investors or those seeking a project. The accommodation is well-proportioned throughout. On the ground floor, an entrance hall leads to a living room and kitchen/diner fitted with wall and base units, plumbing for a washing machine and a door opening out to the rear garden. Upstairs, there are three bedrooms, all benefiting from built-in storage, together with a family bathroom. Outside, the front of the property features a brick-paved area which, subject to the necessary consents, offers potential to create off-road parking. A shared side passage leads to the rear garden, which enjoys paved seating areas, a lawn, shrubs, a useful store and two greenhouses.

Adelaide Gardens is a popular residential area within easy access of the town centre. Brecon is a traditional market town, the centre of the Brecon Beacons National Park. Surrounded by wonderful countryside it has a wide range of shops and amenities which include a cinema, theatre, leisure centre, library and golf course. It also has several good primary schools, a secondary school, college of further education and Christ College a private boarding school for boys and girls aged 7-18. With good access links Cardiff, Swansea and Hereford are all an hour’s drive and the nearest train station is in Abergavenny which is 20 miles away.

Services: All mains services. Gas central heating. Please note we have not tested the appliances, central heating or services.

Council Tax: We have been informed that this property has been placed under council tax band ‘C’. 

 

Important Information

  • This is a Freehold property.

Property Ref: 7754001_29636327

Share:

Similar Properties

Llanfrynach, Brecon, LD3

Farm Land | £200,000

A wonderful block of farmland which includes two level productive fields with good access off the Cantref road extending...

Old Road, Bwlch, Brecon, LD3

2 Bedroom End of Terrace House | £200,000

In a two double bed, end terrace house with garden and parking. In need of modernisation it has lots of potential.

Cray, Brecon, LD3

3 Bedroom Semi-Detached House | £200,000

In a quiet village location and occupying a generous plot, is this three bed, semi-detached family home.

Hoggan Park, Brecon, LD3

2 Bedroom Apartment | £205,000

PLOT 90 & 91. A two bed, top floor apartment within the popular development of Hoggan Park. An ideal starter home or inv...

Defynnog, Brecon, LD3

2 Bedroom End of Terrace House | £210,000

Attractively finished and ready to move in to, this lovely, two bed cottage is within the village and benefits from a de...

Coedwaungar, Sennybridge, Brecon, LD3

3 Bedroom Semi-Detached House | £210,000

A great, three bed family home situated on a quiet cul-de-sac and benefitting from front and rear gardens.

James Dean The Estate Agents Brecon (Brecon)

Brecon, Powys, LD3 9AD

01874 624 757

How much is your home worth?

Use our short form to request a valuation of your property.

Request a Valuation

Mortgage Calculator

Amount Borrowed: £
Total Amount Repayable: £
Total Monthly Payment: £
©2025 The Guild of Property Professionals. All rights reserved. Terms and Conditions | Privacy Policy | Cookie Policy | Complaints Policy | Members Login
The Guild of Property Professionals Trading Address: 121 Park Lane, London W1K 7AG. GPEA Limited. Registered in England & Wales.  Company No: 02819824.  Registered Office Address: 2 St. Stephen's Court, St. Stephen's Road, Bournemouth, Dorset, England, BH2 6LA.  VAT Registration No: 576 8795 61
Book a Property Valuation Update Cookies Preferences