Coedwaungar, Sennybridge, Brecon, LD3

£285,000

3 Bedroom Semi-Detached Bungalow for sale in Brecon

1 3 2
  • three bedrooms
  • great open plan kitchen/living/dining room
  • large conservatory
  • semi-detached bungalow
  • quiet village location
  • woodland views
  • ample parking
  • bathroom and en-suite
  • attractively modernised and extended
  • deceptively spacious

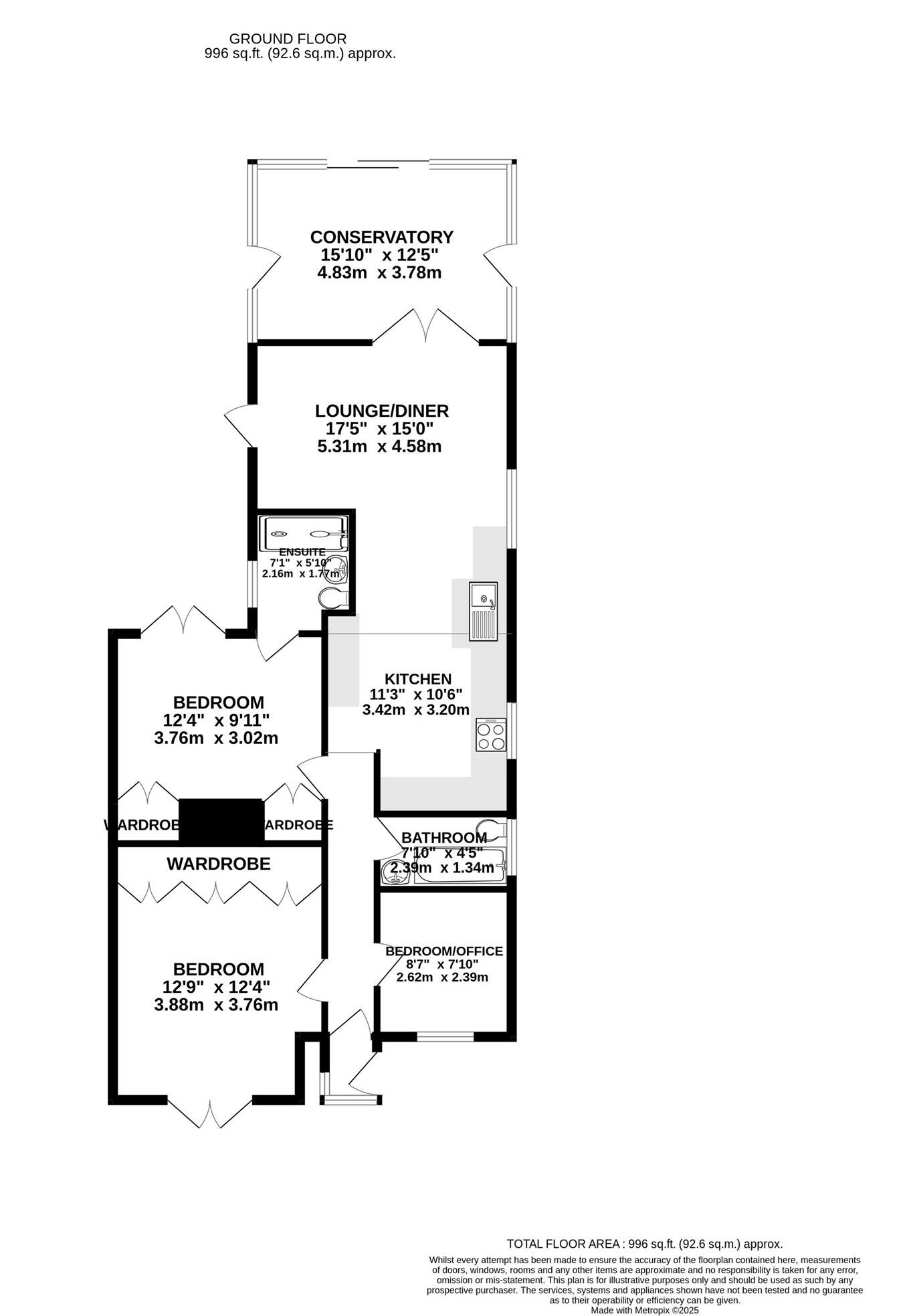
Deceptively spacious from the front, this extended and modernised semi-detached bungalow offers stylish and flexible living in a peaceful setting. The accommodation includes an entrance porch and hallway, two double bedrooms, both with built-in wardrobes and patio doors opening to the outside space and a third bedroom, which would also makes an ideal office. There’s a fully tiled bathroom and a modern en-suite shower room for added convenience. To the rear of the property, the open-plan kitchen/dining/living area is the heart of the home, perfect for family meals and entertaining. The kitchen is fitted with sleek units, worktops and integrated appliances including an oven, hob, microwave and fridge. Patio doors open into a large conservatory that overlooks woodland, creating a tranquil retreat filled with natural light. Outside, the front offers ample parking with side access leading to the rear which backs onto woodland with views of the river below. There is also a private decked seating area, ideal for relaxing and enjoying the peaceful surroundings.

Sennybridge, a popular village within the Brecon Beacons National Park. It has a range of amenities which include a surgery, primary school, post office, two petrol stations and several pubs. It is 9 miles from Brecon itself where there is a wider range of shops and amenities which include a cinema, theatre, leisure centre, library and golf course. It also has a secondary school, college of further education and Christ College a private boarding school for boys and girls aged 7-18. With good access links Cardiff, Swansea and Hereford are all an hour’s drive.

Services: Mains electricity, water and drainage. Oil fired central heating. Please note we have not tested the appliances, central heating or services.

Council Tax: We have been informed that this property has been placed under council tax band ‘B’.

Important Information

  • This is a Freehold property.

Property Ref: 7754001_29144221

Share:

Similar Properties

Trenewydd, Brecon, LD3

3 Bedroom Semi-Detached House | £285,000

In a popular location is this great, three bed, semi-detached family home enjoying parking and good size gardens. No cha...

Ffynnon Dewi, Brecon, LD3

3 Bedroom Semi-Detached House | £285,000

A spacious, three bed, semi-detached family home in a popular location enjoying parking and an easily managed, level gar...

Beacons Park, Brecon, LD3

2 Bedroom Detached House | £285,000

Situated on a quiet cul-de-sac and enjoying south facing gardens and wonderful views of the Beacons, is this neatly pres...

Meadow Side, Llanspyddid, Brecon, LD3

3 Bedroom Semi-Detached House | £290,000

Ready to move straight in to, is this modern, attractively presented, three bed house. Enjoying parking, an easily manag...

Bronllys Road, Talgarth, Brecon, LD3

3 Bedroom Semi-Detached House | Offers in region of £290,000

Immaculately presented and ready to move straight in to, this three bed family home is in a convenient location and enjo...

Cornwall Farm, Pencelli, Brecon, LD3

3 Bedroom Semi-Detached House | £290,000

Situated in a great spot enjoying delightful countryside views is this lovely, three bed, semi-detached house benefittin...

James Dean The Estate Agents Brecon (Brecon)

Brecon, Powys, LD3 9AD

01874 624 757

How much is your home worth?

Use our short form to request a valuation of your property.

Request a Valuation

Mortgage Calculator

Amount Borrowed: £
Total Amount Repayable: £
Total Monthly Payment: £
©2025 The Guild of Property Professionals. All rights reserved. Terms and Conditions | Privacy Policy | Cookie Policy | Complaints Policy | Members Login
The Guild of Property Professionals Trading Address: 121 Park Lane, London W1K 7AG. GPEA Limited. Registered in England & Wales.  Company No: 02819824.  Registered Office Address: 2 St. Stephen's Court, St. Stephen's Road, Bournemouth, Dorset, England, BH2 6LA.  VAT Registration No: 576 8795 61
Book a Property Valuation Update Cookies Preferences