The Avenue, Brecon, LD3

£200,000

2 Bedroom End of Terrace House for sale in Brecon

1 2 1
  • Two Bedrooms
  • Superbly Modernised
  • End Terrace
  • Ideal Starter Home Or Investment Opportunity
  • Living Room With Wood Burning Stove & Underfloor Heating
  • Kitchen/ Diner
  • Bathroom
  • Small Side Yard
  • Gas Central Heating
  • Freehold

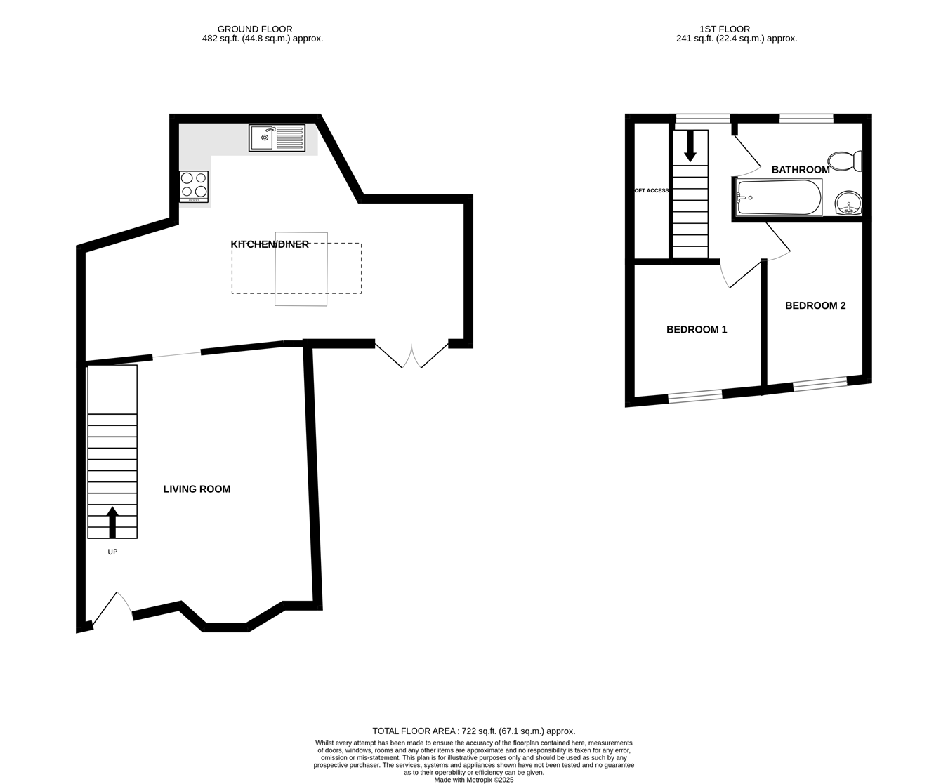
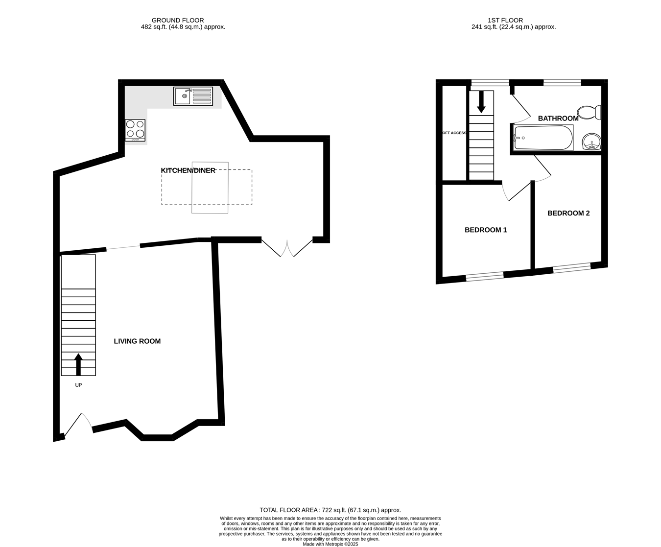
This great end terrace house is a fab opportunity for first-time buyers or investors. The ground floor comprises a living/dining room with wood burning stove and underfloor heating, kitchen with tiled flooring fitted base and wall units, wooden and marble workshops, integrated oven hob, cooker and dishwasher and patio doors which lead out to the rear courtyard. Upstairs, there are two bedrooms, and a bathroom which is fully tiled and has a bath with separate shower. The property also benefits from gas central heating and uPVC double glazing. Outside, the garden is easily managed and low maintenance with a small rear courtyard.

The Avenue is just a short walk from the town centre, Brecon Castle and the River Usk Promenade. Brecon is a traditional market town, the centre of the Brecon Beacons National Park. Surrounded by wonderful countryside it has a wide range of shops and amenities which include a cinema, theatre, leisure centre, library and golf course. It also has several good primary schools, a secondary school, college of further education and Christ College a private boarding school for boys and girls aged 7-18. With good access links Cardiff, Swansea and Hereford are all an hour’s drive and the nearest train station is in Abergavenny which is 20 miles away.

Council Tax: We have been informed that this property has been placed under council tax band ‘D’.

Services: All mains services. Gas central heating. Please note we have not tested the appliances, central heating or services.

 

Important Information

  • This is a Freehold property.

Property Ref: 7754001_29570613

Share:

Similar Properties

Llanfrynach, Brecon, LD3

Farm Land | £200,000

A wonderful block of farmland which includes two level productive fields with good access off the Cantref road extending...

Adelaide Gardens, Brecon, LD3

3 Bedroom End of Terrace House | £200,000

In a popular residential area is this three bed, end of terrace house with front & rear gardens. In need of modernisatio...

Old Road, Bwlch, Brecon, LD3

2 Bedroom End of Terrace House | £200,000

In a two double bed, end terrace house with garden and parking. In need of modernisation it has lots of potential.

Hoggan Park, Brecon, LD3

2 Bedroom Apartment | £205,000

PLOT 90 & 91. A two bed, top floor apartment within the popular development of Hoggan Park. An ideal starter home or inv...

Defynnog, Brecon, LD3

2 Bedroom End of Terrace House | £210,000

Attractively finished and ready to move in to, this lovely, two bed cottage is within the village and benefits from a de...

Coedwaungar, Sennybridge, Brecon, LD3

3 Bedroom Semi-Detached House | £210,000

A great, three bed family home situated on a quiet cul-de-sac and benefitting from front and rear gardens.

James Dean The Estate Agents Brecon (Brecon)

Brecon, Powys, LD3 9AD

01874 624 757

How much is your home worth?

Use our short form to request a valuation of your property.

Request a Valuation

Mortgage Calculator

Amount Borrowed: £
Total Amount Repayable: £
Total Monthly Payment: £
©2025 The Guild of Property Professionals. All rights reserved. Terms and Conditions | Privacy Policy | Cookie Policy | Complaints Policy | Members Login
The Guild of Property Professionals Trading Address: 121 Park Lane, London W1K 7AG. GPEA Limited. Registered in England & Wales.  Company No: 02819824.  Registered Office Address: 2 St. Stephen's Court, St. Stephen's Road, Bournemouth, Dorset, England, BH2 6LA.  VAT Registration No: 576 8795 61
Book a Property Valuation Update Cookies Preferences