Dan Y Crug, Brecon, LD3

£180,000
SSTC
This property listing is now SSTC

3 Bedroom End of Terrace House for sale in Brecon

1 3 1
  • three bedrooms
  • great family home
  • cracking views of the Brecon Beacons
  • easily managed front and rear gardens with garden store
  • no chain
  • scope for improvement
  • good size kitchen/diner
  • living room
  • downstairs toilet and shower room
  • freehold

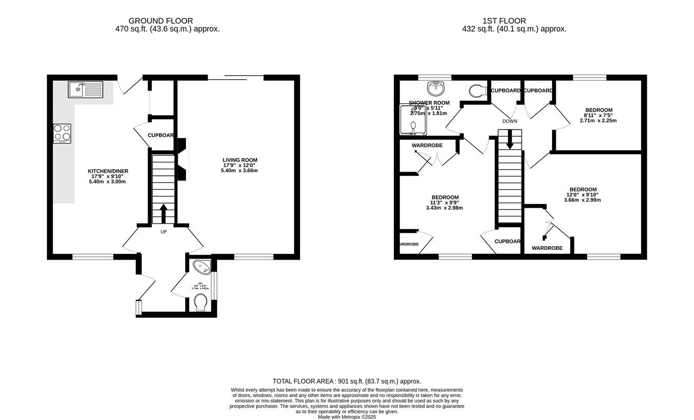
This three bed, end-of-terrace property is an ideal family home, offered with no onward chain and ready for you to make your own. Flooded with natural light, the ground floor accommodation comprises a welcoming entrance hall, a convenient cloakroom, a spacious living room with sliding patio doors that open onto the rear garden and a generously sized kitchen/diner. The kitchen offers plenty of cupboard space, plumbing for a washing machine and a useful understairs storage cupboard. Upstairs, the landing features useful built-in storage, along with the three bedrooms. A wet room style shower room completes the first floor. Outside, the front garden is low-maintenance with decorative chippings and a paved path. The south-facing rear garden is a real sun trap, featuring artificial lawn, a paved seating area and a practical garden store.

Dan Y Crug is a popular and established residential area to the north of the town centre and within easy access of the shops and amenities. Brecon is a traditional market town, the centre of Bannau Brycheiniog National Park. Surrounded by wonderful countryside it has a wide range of shops and amenities which include a cinema, theatre, leisure centre, library and golf course. It also has several good primary schools, a secondary school, college of further education and Christ College a private boarding school for boys and girls aged 7-18. With good access links Cardiff, Swansea and Hereford are all an hour’s drive and the nearest train station is in Abergavenny which is 20 miles away.

Council Tax: We have been informed that this property has been placed under council tax band ‘C’.

Services: All mains services. Gas central heating. Please note we have not tested the appliances, central heating or services.

Important Information

  • This is a Freehold property.

Property Ref: 7754001_28596932

Share:

Similar Properties

Kensington, Brecon, LD3

3 Bedroom Terraced House | £180,000

A spacious, three bed house in a convenient location enjoying views of the Beacons and a south facing garden. In need of...

Coryton Close, Brecon, LD3

3 Bedroom Semi-Detached House | £180,000

Enjoying great views of the Beacons and sought after parking, is this three bed family home.

Newgate Street, Brecon, LD3

2 Bedroom Terraced House | £180,000

A fab, attractively presented, two bed house. Ready to move straight in to, it’s a great starter home.

Hoggan Park, Brecon, LD3

2 Bedroom Apartment | £185,000

A lovely, modern and spacious, two bed apartment situated within a new and exciting development within easy access of th...

Gwenllian Morgan Court, Heol Gousenou, Brecon, LD3

2 Bedroom Apartment | £185,000

great, two bed ground floor apartment situated in a popular retirement complex enjoying patio doors opening out onto the...

Birch Close, Hay-on-Wye, Hereford, HR3

3 Bedroom Terraced House | £189,000

A lovely, three bed, mid terrace house, located in a sought-after location. Immaculately presented it enjoys parking, ea...

James Dean The Estate Agents Brecon (Brecon)

Brecon, Powys, LD3 9AD

01874 624 757

How much is your home worth?

Use our short form to request a valuation of your property.

Request a Valuation

Mortgage Calculator

Amount Borrowed: £
Total Amount Repayable: £
Total Monthly Payment: £
©2025 The Guild of Property Professionals. All rights reserved. Terms and Conditions | Privacy Policy | Cookie Policy | Complaints Policy | Members Login
The Guild of Property Professionals Trading Address: 121 Park Lane, London W1K 7AG. GPEA Limited. Registered in England & Wales.  Company No: 02819824.  Registered Office Address: 2 St. Stephen's Court, St. Stephen's Road, Bournemouth, Dorset, England, BH2 6LA.  VAT Registration No: 576 8795 61
Book a Property Valuation Update Cookies Preferences