Middle Green, Doddinghurst, Brentwood

Offers in excess of
£625,000

4 Bedroom Semi-Detached House for sale in Brentwood

3 4 1
  • FOUR DOUBLE BEDROOMS
  • SEMI-DETACHED FAMILY HOME
  • COMPLETELY REFURBISHED
  • GROUND FLOOR SHOWER ROOM / UTILITY
  • MODERN FAMILY BATHROOM
  • THREE RECEPTION ROOMS
  • PLANS PASSED FOR FURTHER EXTENSION
  • EXTENSIVE OFF STREET PARKING & DETACHED GARAGE

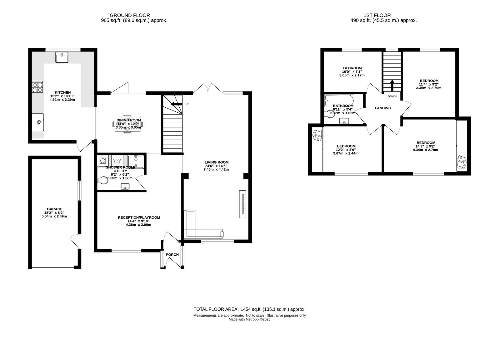
Having been completely refurbished by the current owners we are delighted to bring to market this extended, four-bedroom, semi-detached family home which benefits from having THREE receptions, a ground floor shower room/utility as well as first floor bathroom, an easy to maintain garden to the rear and excellent off-street parking which includes a detached garage. Plans have been passed for a for further extension, converting the garage to a habitable room and linking to the main house. The property is located in 'Middle Green'; a sought-after quiet residential turning in the ever-popular village of Doddinghurst and is within easy walking distance to village shops, village park and schools. Applicants looking at secondary school options, mainline train services to London and high street shopping, will note that Brentwood and Shenfield Town Centres are just a short drive of around 4 miles from this lovely home.

There are steps up to the front door which give access into a bright porch, where you have a further door giving direct access into the playroom. The playroom opens into the living room and through to the kitchen, and there is a door which gives access into a spacious shower room/utility where there are wall and base units, plumbing for appliances, w.c. and wash hand basin, and a separate shower cubicle. The living room is lovely bright room with a window to the front aspect and French doors and further windows to the rear, allowing for plenty of natural lighting. There are stairs to one end which give access to the first-floor level. A further reception serves as a dining room which is open plan to a stylish kitchen. Bi-folding doors from the dining room give additional access to the garden. Having been previously extended to the side and rear, the current Vendors have transformed this space into a luxury kitchen with modern wall and base units and range of quality, integrated appliances. Amtico, 'Heringbone' style flooring extends through most of the ground floor, and there is an attractive, hexagonal tiled floor in the shower room/utility. There is underfloor heating to both the ground and first floor levels.

Located on the first-floor level there are four well-proportioned, double bedrooms. The two bedrooms to the front of the property have fitted wardrobes, and there is ample space in the remaining two bedrooms for freestanding or fitted furniture. Finishing the accommodation on this level is an attractive family bathroom with tiled panelled bath, wash hand basin inset into a modern vanity unit and a w.c. with hidden cistern.

The rear garden has been well-maintained and commences with a paved patio opening into a low maintenance artificial lawn, and there are sleeper edged flower beds. There is a further seating/patio area which is located to the rear of the kitchen. At the front of the property an extensively block paved driveway allows parking for several vehicles, in addition to a detached garage. There is a pedestrian gate allowing side access to the garage and into the kitchen, and there is an EV charging point at the front of the property. There have been plans passed for a single storey side extension, converting the garage and linking to the main dwelling. Plans can be viewed on the Brentwood Council Planning site using Ref. No: 22/01073/HHA

Porch - Door into :

Reception / Playroom - 4.37m x 3.00m (14'4 x 9'10) - Window to front aspect.

Living Room - 7.47m x 4.42m (24'6 x 14'6) - Window to front aspect and French doors and further windows to rear. Stairs to first floor.

Shower Room / Utility - 2.49m x 1.88m (8'2 x 6'2) - Tiled flooring. Wall and base units and counter top. Space saver sink unit, close coupled w.c. and shower cubicle. Space for stacked washing machine and tumble dryer.

Dining Room - 3.35m x 3.05m (11' x 10') - Bi-folding doors opening onto the rear garden. Open through to :

Kitchen - 4.62m x 3.30m (15'2 x 10'10) - Window to rear aspect. Door to side access. Stylish wall and base units with quartz work surface over and Butler sink. Integrated appliances to include double ovens, hob with extractor above and double fronted fridge/freezer.

First Floor Landing - Doors to all rooms.

Bedroom - 4.34m x 2.79m (14'3 x 9'2) - Fitted wardrobes. Window to front aspect.

Bedroom - 3.66m x 2.44m (12' x 8') - Fitted wardrobes. Window to front aspect.

Bedroom - 3.45m x 2.79m (11'4 x 9'2) - Window to rear aspect.

Bedroom - 3.05m x 2.16m (10' x 7'1) - Window to rear aspect.

Family Bathroom - Tilled flooring and part tiled walls. Modern white suite, comprising of : panelled bath, wash hand basin set into a vanity unit and w.c. with hidden cistern.

Exterior - Rear Garden - Commencing with a paved patio leading into an artificial lawn. There is a further patio/seating area to the rear of the kitchen. Sleeper edged flower beds.

Exterior - Front Garden - Extensive block paved driveway providing parking for several vehicles. Pedestrian gate allowing side access to the garage and into the kitchen. EV charging point.

Detached Garage - 5.54m x 2.49m (18'2 x 8'2) - Window and door to side.

Agents Note - Fee Disclosure - As part of the service we offer we may recommend ancillary services to you which we believe may help you with your property transaction. We wish to make you aware, that should you decide to use these services we will receive a referral fee. For full and detailed information please visit 'terms and conditions' on our website www.keithashton.co.uk

Property Ref: 59223_34306669

Share:

Similar Properties

School Road, Kelvedon Hatch, Brentwood

4 Bedroom Semi-Detached House | Offers in excess of £625,000

We are delighted to bring to market this exquisitely styled, four-bedroom semi-detached family home which has been exten...

Chelmsford Road, Shenfield, Brentwood

3 Bedroom Semi-Detached House | Guide Price £625,000

We are delighted to bring to market this immaculately presented and extended, three double bedroom, semi-detached chalet...

Peartree Lane, Doddinghurst, Brentwood

4 Bedroom Detached House | Guide Price £625,000

Located in 'Peartree Lane', a sought after turning in the popular Village of Doddinghurst is this four-bedroom detached...

Hook End Road, Hook End

3 Bedroom Semi-Detached House | Guide Price £635,000

We are delighted to bring to market this well presented, three double bedroom chalet style home with large open plan kit...

Hook End Road, Hook End, Brentwood

4 Bedroom Detached House | Offers in excess of £635,000

Located in the semi-rural village of Hook End, approximately 5 miles from Brentwood Town centre with all its amenities a...

Harpers Lane, Doddinghurst, Brentwood

3 Bedroom Semi-Detached Bungalow | Guide Price £650,000

Coming to the market for the first time in 30 years is this exceedingly well-maintained semi-detached bungalow located i...

Keith Ashton Estates - Village Office (Kelvedon Hatch)

38 Blackmore Road, Kelvedon Hatch, Essex, CM15 0AT

01277 375757

How much is your home worth?

Use our short form to request a valuation of your property.

Request a Valuation

Mortgage Calculator

Amount Borrowed: £
Total Amount Repayable: £
Total Monthly Payment: £
©2025 The Guild of Property Professionals. All rights reserved. Terms and Conditions | Privacy Policy | Cookie Policy | Complaints Policy | Members Login
The Guild of Property Professionals Trading Address: 121 Park Lane, London W1K 7AG. GPEA Limited. Registered in England & Wales.  Company No: 02819824.  Registered Office Address: 2 St. Stephen's Court, St. Stephen's Road, Bournemouth, Dorset, England, BH2 6LA.  VAT Registration No: 576 8795 61
Book a Property Valuation Update Cookies Preferences