Whittington Road, Hutton, Brentwood

£300,000

2 Bedroom Apartment for sale in Brentwood

1 2 1

We are delighted to present this well-appointed first-floor apartment, ideally situated within a quiet cul-de-sac just a mile from Shenfield Station, offering fast and convenient links into London and beyond.

The property features a bright open-plan kitchen and living area, with French doors opening onto a private balcony. The well-equipped kitchen provides ample storage and worktop space, creating a practical yet stylish hub for everyday living. There are two well-proportioned bedrooms and a modern bathroom completing the interior, along with the added benefit of useful loft storage. Additional highlights include a brand-new boiler, ensuring efficient heating and peace of mind for years to come, and your own private parking space for added convenience. Externally, the apartment also boasts its own private rear garden-an inviting space for outdoor relaxation.

This property benefits from a share of freehold, meaning £0 Ground Rent and a remarkably low £10 Service Charge per month, making it a cost-effective and attractive purchase.

Combining comfort, convenience, and a desirable location, this attractive home is an excellent choice for investors, first-time buyers, professionals and commuters alike.

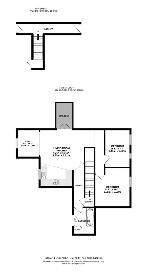
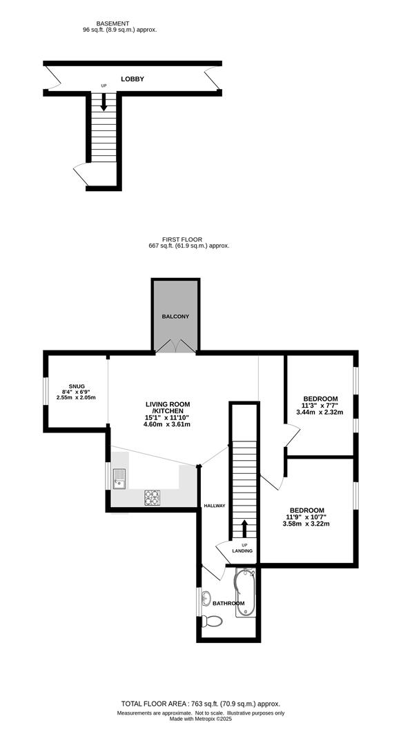
Entrance Hallway -

Kitchen/Living Room - 4.60 x 3.61 (15'1" x 11'10") -

Snug - 2.55 x 2.05 (8'4" x 6'8") -

Balcony -

Bedroom One - 3.58 x 3.22 (11'8" x 10'6") -

Bedroom Two - 3.44 x 2.32 (11'3" x 7'7") -

Bathroom -

Agents Note - As part of the service we offer we may recommend ancillary services to you which we believe may help you with your property transaction. We wish to make you aware, that should you decide to use these services we will receive a referral fee. For full and detailed information please visit 'terms and conditions' on our website www.keithashton.co.uk

Property Ref: 34274325

Share:

Similar Properties

Regent House, Hubert Road, Brentwood

2 Bedroom Apartment | Offers in excess of £300,000

We are delighted to present this beautifully appointed top-floor, two-bedroom apartment, ideally located just a short st...

St. Marys Lane, Upminster

2 Bedroom Apartment | Offers in excess of £300,000

We are delighted to bring to market this well-presented top-floor apartment, ideally positioned within easy reach of bot...

The Courtyard, Brentwood

3 Bedroom Apartment | £300,000

Offered with no onward chain, this spacious three-bedroom first-floor apartment is ideally located within walking distan...

Corcorans, Pilgrims Hatch, Brentwood

2 Bedroom Terraced House | Guide Price £305,000

Overlooking a small greensward to the front and being close to good local schooling, further green spaces, and the popul...

Cromwell Road, Warley, Brentwood

2 Bedroom Maisonette | Offers in excess of £315,000

We are pleased to bring to market this well presented, ground-floor maisonette featuring a generously sized sitting room...

Limes Court, Sawyers Hall Lane, Brentwood

2 Bedroom Apartment | £315,000

Ideally situated in a sought-after central location, this property offers convenient access to a variety of local shops,...

Keith Ashton Estates - Brentwood Office (Brentwood)

26 St. Thomas Road, Brentwood, Essex, CM14 4DB

01277 260858

How much is your home worth?

Use our short form to request a valuation of your property.

Request a Valuation

Mortgage Calculator

Amount Borrowed: £
Total Amount Repayable: £
Total Monthly Payment: £
©2026 The Guild of Property Professionals. All rights reserved. Terms and Conditions | Privacy Policy | Cookie Policy | Complaints Policy | Members Login
The Guild of Property Professionals Trading Address: 121 Park Lane, London W1K 7AG. GPEA Limited. Registered in England & Wales.  Company No: 02819824.  Registered Office Address: 2 St. Stephen's Court, St. Stephen's Road, Bournemouth, Dorset, England, BH2 6LA.  VAT Registration No: 576 8795 61
Book a Property Valuation Update Cookies Preferences