Victors Crescent, Hutton, Brentwood

Guide Price
£525,000

4 Bedroom Semi-Detached House for sale in Brentwood

1 4 1
  • SEMI-DETACHED FAMILY HOME
  • WELL-PRESENTED THROUGHOUT
  • SPACIOUS KITCHEN/DINER
  • FOUR BEDROOMS
  • EASY REACH OF SHENFIELD STATION
  • POPULAR VILLAGE OF HUTTON
  • CLOSE TO HIGHLY REGARDED SCHOOLS
  • CUL-DE-SAC LOCATION

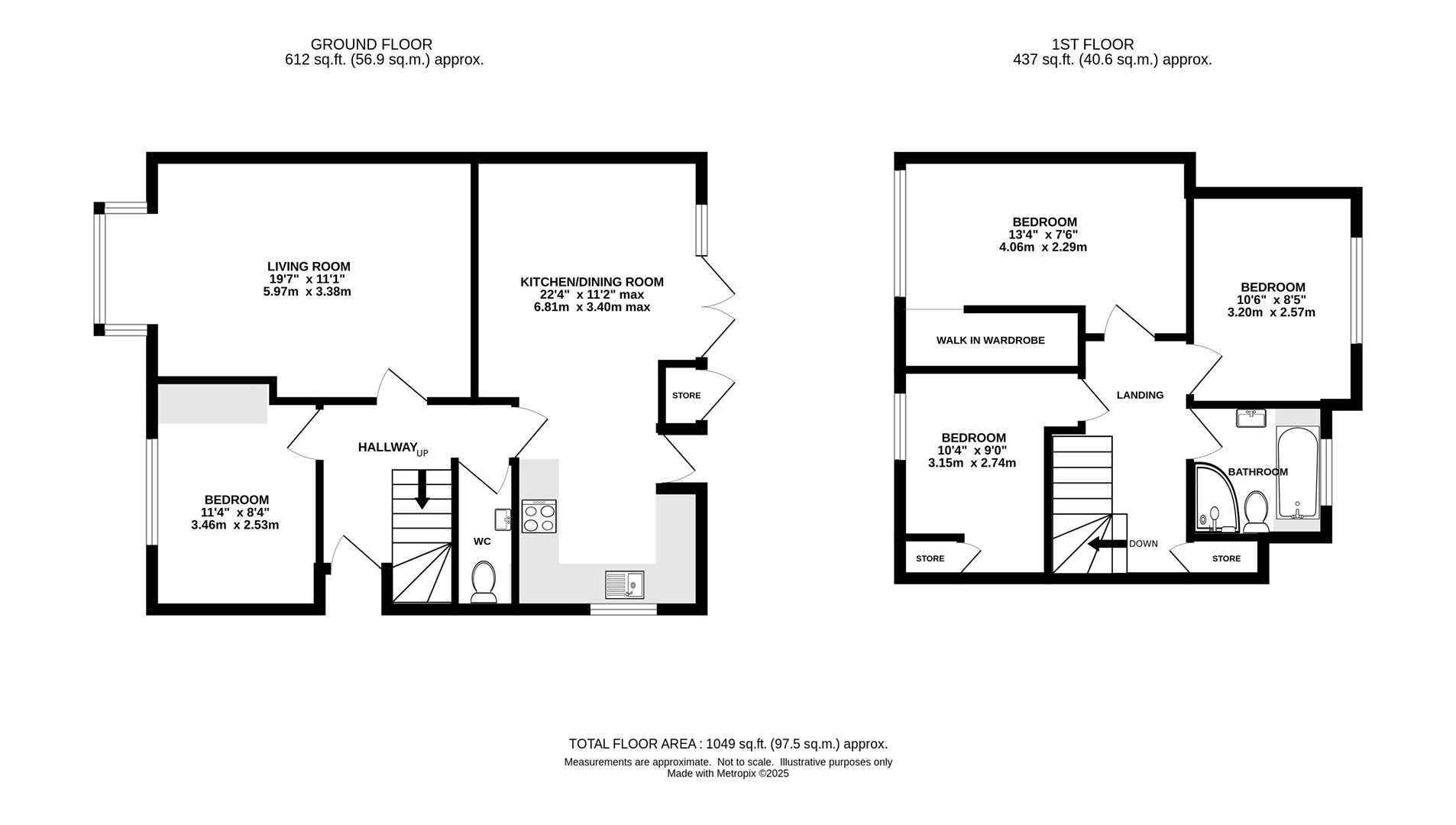
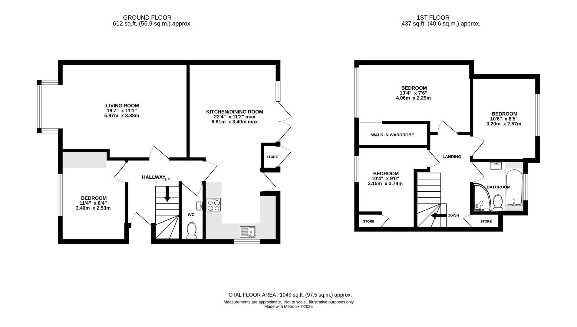
** Guide Price £525,000 - £550,000 ** We are pleased to present this semi-detached family home, situated in a peaceful cul-de-sac within the highly sought-after village of Hutton. Thoughtfully presented throughout, the property offers four generously sized bedrooms and is ideally located just a short distance from Shenfield Station, offering excellent commuter links to London and beyond. With several highly regarded schools nearby, this home is an ideal choice for families seeking both convenience and quality of life.

The internal layout begins with a welcoming entrance hall that leads into a comfortable living room, featuring a bay window to the front. At the rear of the property, the kitchen is fitted with a range of eye and base level units, integrated appliances, and generous worktop space. This area flows seamlessly into the bright and airy dining room, enhanced by French doors that overlook and open onto the rear garden. A bedroom and a convenient WC complete the ground floor.

Upstairs, the landing provides access to all rooms. The principal bedroom, positioned at the front of the property, benefits from a walk-in wardrobe. Two further double bedrooms and a modern family bathroom complete the first floor.

Externally, the rear garden opens with a paved patio area leading to a neat lawn bordered by mature shrubs. To the front, a block-paved driveway provides convenient off-street parking.

Entrance Hall -

Kitchen/Dining Room - 6.81 x 3.40 (22'4" x 11'1") -

Living Room - 5.97 x 3.38 (19'7" x 11'1") -

Bedroom - 3.46 x 2.53 (11'4" x 8'3") -

Wc -

Landing -

Bedroom - 4.06 x 2.29 (13'3" x 7'6") -

Walk In Wardrobe -

Bedroom - 3.20 x 2.57 (10'5" x 8'5") -

Bedroom - 3.15 x 2.74 (10'4" x 8'11") -

Bathroom -

Agents Note - As part of the service we offer we may recommend ancillary services to you which we believe may help you with your property transaction. We wish to make you aware, that should you decide to use these services we will receive a referral fee. For full and detailed information please visit 'terms and conditions' on our website www.keithashton.co.uk

Property Ref: 8226_33956427

Share:

Similar Properties

Robin Close, Billericay

3 Bedroom Semi-Detached Bungalow | Guide Price £525,000

**Guide Price £525,000 - £550,000** New to the market comes this immaculate three-bedroom bungalow, nestled in a peacefu...

Brocksparkwood, Brentwood

3 Bedroom Semi-Detached House | Guide Price £525,000

** Guide Price £525,000 - £550,000 ** Situated in a popular cul-de-sac backing onto woodland, this well-maintained three...

Wendover Gardens, Brentwood

3 Bedroom Detached House | Guide Price £525,000

**Guide Price £525,000 - £550,000** We are pleased to present this detached family home, offered with No Onward Chain, n...

Pennyfields, Warley, Brentwood

5 Bedroom Semi-Detached House | Guide Price £530,000

**Guide Price £530,000 - £545,000** We are delighted to present this spacious and versatile four-to-five-bedroom family...

Hanging Hill Lane, Brentwood

2 Bedroom Semi-Detached Bungalow | Guide Price £535,000

**GUIDE PRICE £535,000 - £550,000** We are pleased to offer for sale, this extended semi-detached bungalow in the sought...

Warley Mount, Warley, Brentwood

3 Bedroom Semi-Detached House | Guide Price £550,000

**Guide Price £550,000 - £575,000** We are delighted to present this semi-detached family home, ideally situated in the...

Keith Ashton Estates - Brentwood Office (Brentwood)

26 St. Thomas Road, Brentwood, Essex, CM14 4DB

01277 260858

How much is your home worth?

Use our short form to request a valuation of your property.

Request a Valuation

Mortgage Calculator

Amount Borrowed: £
Total Amount Repayable: £
Total Monthly Payment: £
©2025 The Guild of Property Professionals. All rights reserved. Terms and Conditions | Privacy Policy | Cookie Policy | Complaints Policy | Members Login
The Guild of Property Professionals Trading Address: 121 Park Lane, London W1K 7AG. GPEA Limited. Registered in England & Wales.  Company No: 02819824.  Registered Office Address: 2 St. Stephen's Court, St. Stephen's Road, Bournemouth, Dorset, England, BH2 6LA.  VAT Registration No: 576 8795 61
Book a Property Valuation Update Cookies Preferences