Stocksfield, Kelvedon Hatch, Brentwood

Guide Price
£750,000

3 Bedroom Detached House for sale in Brentwood

1 3 2
  • THREE BEDROOMS
  • DETACHED FAMILY HOME
  • 1998 SQ.FT OF ACCOMMODATION
  • CONSERVATORY EXTENSION
  • LARGE UTILITY ROOM
  • DOUBLE GARAGE & LARGE DRIVEWAY
  • OUTBUILDING
  • EN-SUITE TO MASTER BEDROOM

We are delighted to bring to market this spacious, three-bedroom detached family home located in a popular turning in Kelvedon Hatch and benefitting from well-balanced accommodation of over 1900 sq.ft, a double width, detached garage plus excellent off-street parking, and a spacious outbuilding which would lend itself to a home office/gym/games room. 'Stocksfield' is perfectly situated, being within walking distance of local shops, pubs, and Kelvedon Hatch Primary School, and is just a short drive of around 2.5 miles to Ongar with its quaint high street and 5 miles to Brentwood Train Station and Town Centre where you will find high street shopping, restaurants, bars, and further schooling options.

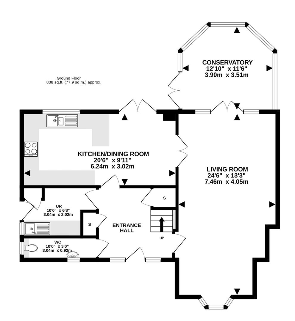
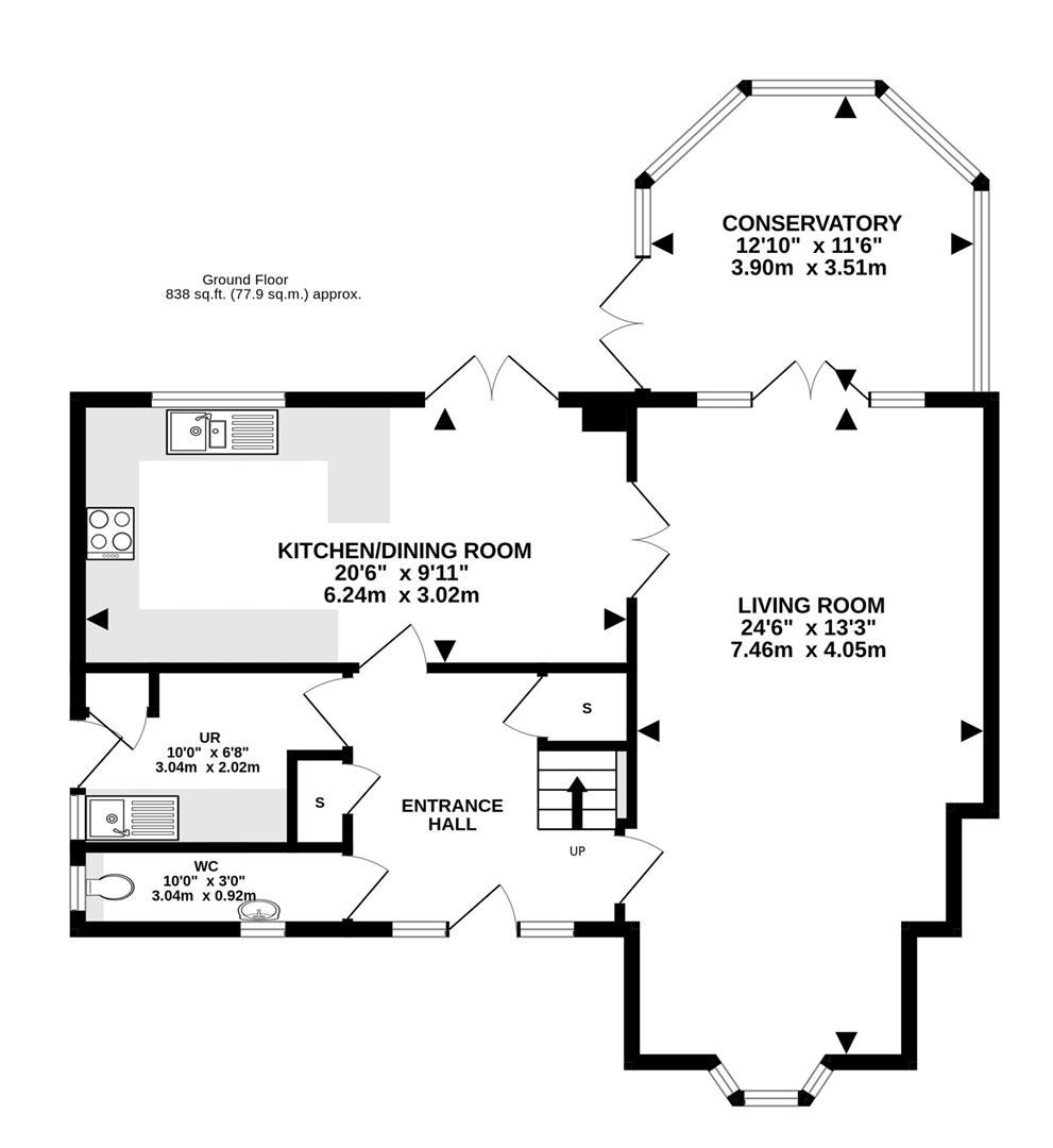
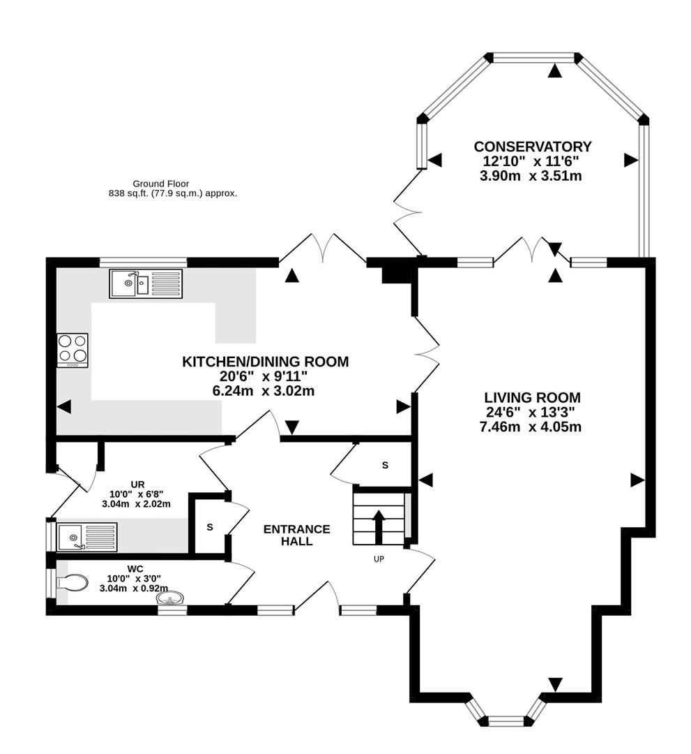
Entering the property, you find yourself in an impressive reception hallway with stairs rising to the first floor which has a galleried landing, and there are doors to all main ground floor rooms. There are two spacious cupboards providing good storage options. The property has a large and bright living room which offers access into the conservatory at the rear of the property and into the kitchen/diner, both via, double doors with stained glass inserts. There is access into the garden from the conservatory, which has a tiled floor and windows to all aspects, along with a high-pitched roof with ceiling blinds. A modern kitchen has been fitted in a range of gloss, wall and base units with contrasting work surfaces over and integrated appliances include double ovens and a hob with extractor above. There is ample space in this room for a family sized table and chairs and there is additional access into the garden. Off the hallway you will find a spacious utility room with wall and base units, including a sink unit and with plenty of room for a freestanding washing machine and tumble dryer. Finishing the accommodation on the ground floor is a cloakroom fitted in a white suite.

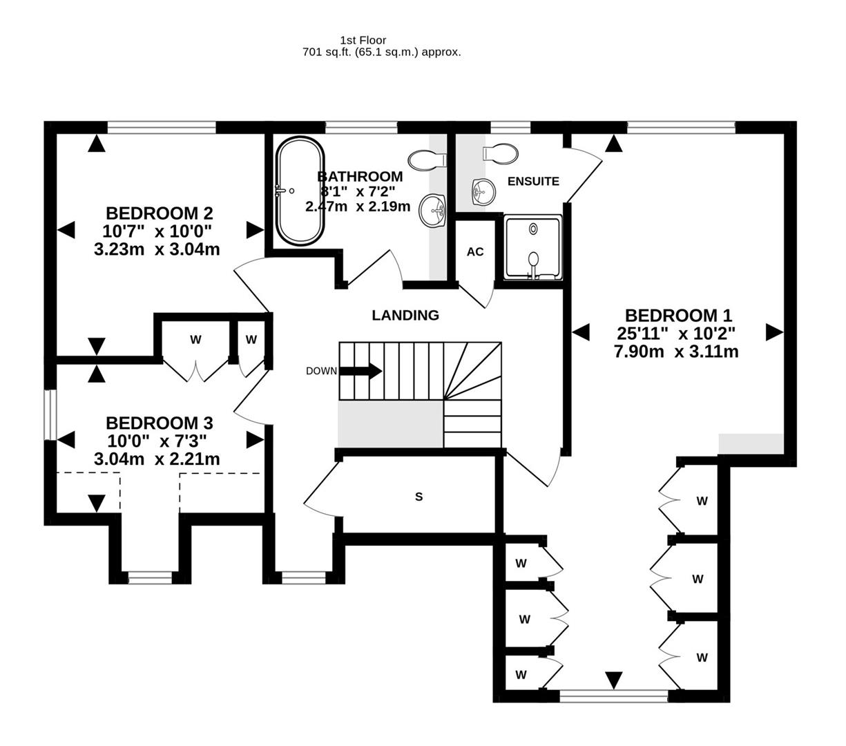
Rising to the first floor a spacious galleried landing offers doors to all three bedrooms and a family bathroom. There is loft access, a spacious built-in storage cupboard, plus an airing cupboard. All bedrooms are spacious rooms, with the master bedroom being an impressive 25'11 in length and having an extensive range of fitted wardrobes to one end and access to its own en-suite shower room. Viewers will note that this room was originally two rooms and therefore has the potential to be returned, quite easily to its original state, by re-instating the partitioning wall and door to create an additional bedroom. Finally, there is a family bathroom which has a tiled flooring and part tiled walls and includes a tile panelled bath, plus wash hand basin and w.c. set into a fitted unit.

Externally, to the rear of the property there is a block paved patio which leads into the lawn. There is pedestrian access into the double garage and to a spacious outbuilding which has a w.c. and wash hand basin. The outbuilding would lend itself nicely to a home office for someone looking for a quiet space to work from home, or a gym/games room. There is a pedestrian gate which gives access to the front of the property where you have a large, loose stone driveway which provides excellent parking for several vehicles, in addition to the detached, double width garage.

Reception Hallway - Tiled flooring. Stairs to first floor with galleried landing. Two built-in storage cupboards. Doors to all rooms.

Ground Floor Cloakroom - 3.05m in length (10' in length) - Wash hand basin and w.c.

Living Room - 7.47m x 4.04m (24'6 x 13'3) - Bay window to front aspect. Double doors into the kitchen and a further set of double doors into the conservatory.

Conservatory - 3.91m x 3.51m (12'10 x 11'6) - Tiled flooring. French doors to garden.

Kitchen / Dining Room - 3.20m x 3.02m (10'6 x 9'11) - French doors to garden. Fitted in a modern range of gloss wall and base units with contrasting work surface over. Integrated appliances include double oven and hob with extractor above. Space for double fronted fridge/freezer.

Utility Room - 3.05m x 2.03m (10' x 6'8) - Built-in storage cupboard, further wall and base units with inset sink unit. Space and plumbing for washing machine and tumble dryer. Door into garden

First Floor Landing - Galleried landing. Doors to all rooms. Large storage cupboard and airing cupboard.

Master Bedroom - 7.90m x 3.10m (25'11 x 10'2) - Extensive range of fitted wardrobes. Double aspect. This room was originally two rooms and has potential to be returned to its original state, creating a further bedroom if required. Door to :

En-Suite Shower Room - Tiled flooring and part tiled walls. Shower cubicle. Wash hand basin and w.c. set into fitted unit.

Bedroom - 3.23m x 3.05m (10'7 x 10') - Window to rear.

Bedroom - 3.05m x 2.21m (10' x 7'3) - Built-in wardrobes. Window to front and side aspect.

Family Bathroom - 2.46m x 2.18m (8'1 x 7'2) - Window to rear aspect. Tile panelled bath, wash hand basin and w.c set into fitted unit.

Exterior - Rear Garden - Block paved patio with the remainder being laid to lawn.

Spacious Outbuilding - 4.57m x 3.96m (15' x 13') - Includes wash hand basin and w.c.

Double Garage - 5.28m x 4.67m (17'4 x 15'4) - Double width garage. Window to rear and pedestrian door into garden.

Exterior - Front Garden - Side access through to rear. Loose stone driveway providing parking for several vehicles.

Agents Note - Fee Disclosure - As part of the service we offer we may recommend ancillary services to you which we believe may help you with your property transaction. We wish to make you aware, that should you decide to use these services we will receive a referral fee. For full and detailed information please visit 'terms and conditions' on our website www.keithashton.co.uk

Property Ref: 34183409

Share:

Similar Properties

Plot 2 The Mulberry, Stocks Lane, Kelvedon Hatch CM15 0BN

4 Bedroom Detached House | £750,000

** PLOT 2 - THE MULBERRY ** 4 Bedroom detached house - 1368 sq.ft of accommodation.Discover Myleswood, an exclusive coll...

Plot 6 - Barnmead, Start Hill, Bishops Stortford

4 Bedroom End of Terrace House | Guide Price £750,000

** GUIDE PRICE ?750,000 - ?800,000 **** PLOT 6 - 4 BEDROOM END OF TERRACE HOUSE SET OVER 3 LEVELS - 1667.16 SQ.FT **We a...

Peartree Lane, Doddinghurst, Brentwood

3 Bedroom Detached House | Guide Price £745,000

Sitting on a spacious corner plot and with potential for extension (stpp) is this detached, chalet style family home loc...

Plot 4 The Mulberry, Stocks Lane, Kelvedon Hatch CM15 0BN

4 Bedroom Detached House | £760,000

** PLOT 4 - THE MULBERRY ** 4 Bedroom detached house with double garage - 1368 sq.ft of accommodation.Discover Myleswood...

Church Lane, Doddinghurst, Brentwood

4 Bedroom Detached House | Offers in excess of £775,000

Situated in a prominent position within the village of Doddinghurst is this beautifully maintained family home which off...

Chelmsford Road, Blackmore, Ingatestone

4 Bedroom Detached House | Guide Price £775,000

We are delighted to market this chalet style, detached family home which sits on a plot of just under ? of an acre (stls...

Keith Ashton Estates - Village Office (Kelvedon Hatch)

38 Blackmore Road, Kelvedon Hatch, Essex, CM15 0AT

01277 375757

How much is your home worth?

Use our short form to request a valuation of your property.

Request a Valuation

Mortgage Calculator

Amount Borrowed: £
Total Amount Repayable: £
Total Monthly Payment: £
©2026 The Guild of Property Professionals. All rights reserved. Terms and Conditions | Privacy Policy | Cookie Policy | Complaints Policy | Members Login
The Guild of Property Professionals Trading Address: 121 Park Lane, London W1K 7AG. GPEA Limited. Registered in England & Wales.  Company No: 02819824.  Registered Office Address: 2 St. Stephen's Court, St. Stephen's Road, Bournemouth, Dorset, England, BH2 6LA.  VAT Registration No: 576 8795 61
Book a Property Valuation Update Cookies Preferences