** SIGNATURE HOME ** Coxtie Green Road, Pilgrims Hatch, Brentwood

Guide Price
£1,100,000
SSTC
This property listing is now SSTC

4 Bedroom Detached House for sale in Brentwood

3 4 2
  • FOUR DOUBLE BEDROOMS
  • JUST OVER 1/4 OF AN ACRE PLOT (STLS)
  • EN-SUITE TO BEDROOM ONE
  • THREE RECEPTION ROOMS
  • 2303 SQ.FT OF ACCOMMODATION
  • DETACHED ANNEX
  • CHARACTER FEATURES THROUGHOUT
  • EXTENSIVE OFF STREET PARKING

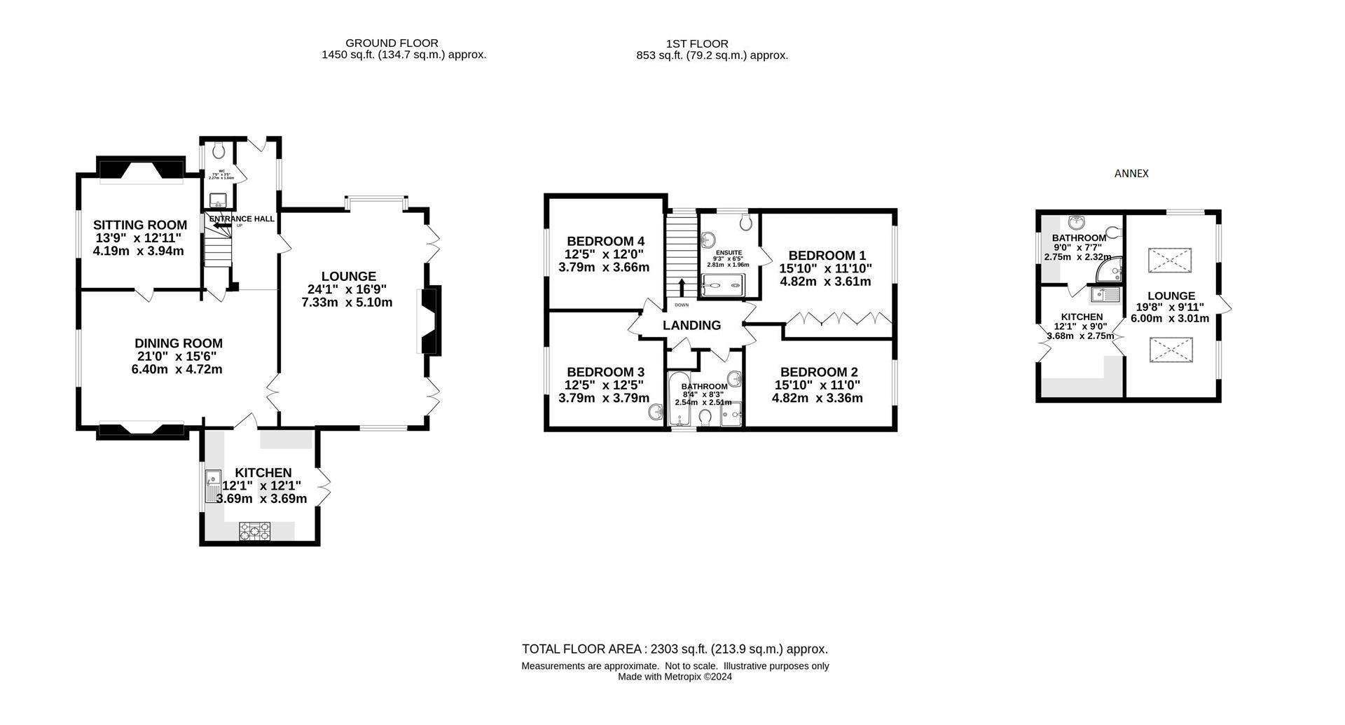
Thought to date back to the 1800's and with a wealth of character throughout, including beamed ceilings, redbrick fireplaces, solid wooden flooring, and wooden thumb latch doors, we are delighted to bring to market 'The Old Forge', a stunning four, double-bedroom country style family home. The property is situated in sought-after location on the borders of Pilgrims Hatch, within walking distance of South Weald Country Park and is just a short drive into both Brentwood and Shenfield Towns with high street shopping and Mainline Train services into London. Offering 2303 sq. ft of living accommodation, which include three reception rooms and a large, detached annex with lounge, kitchen, and bathroom. With views across fields to the front and sitting on a mature plot of around ? acre (stls) with a large driveway set behind wooden, five-bar gates this property is certainly one not to be missed and therefore interested parties are urged to view at their earliest convenience.

Entering the property, you find yourself in a spacious hallway with solid wooden flooring which extends through into the dining room and lounge. There are stairs which rise to the first floor and a door giving access into a modern ground floor cloakroom. Open plan from the hallway, the dining room is a lovely space, with beams wall and ceiling, part panelling to remaining walls, open brickwork, and a red brick fireplace with wooden mantel over. Off the dining room, via a wooden door with iron thumb latch and hinges, there is a cosy sitting room/snug with a fabulous, Inglenook, herringbone brick fireplace with ornate wooden beam above which is without doubt the main focal point of this room. This room also features beamed ceiling, leaded windows to the front aspect and a leaded light, borrowed window to the hallway. The remaining reception room is a large and bright, triple aspect, lounge with windows to the front and rear and two sets of French doors to the side giving access to the gardens and directly onto a spacious patio. This room also features a spectacular Inglenook, redbrick fireplace with heavy wooden mantle set into brickwork above and includes a multi-fuel burning stove. A spacious kitchen with tiled (insulated) flooring has been fitted in a range of country style wooden wall and base units with end display shelving to wall units and granite work surfaces to the base units. There is a central island which provides additional storage and work surface. A 'Range' style cooker sits neatly in an Inglenook recess and there is ample space for further appliances. There are further double doors from the kitchen into the garden. Viewers will note that the flooring in the sitting room/snug, and lounge have been laid with underfloor insulation and there is underfloor heating to the kitchen.

Rising to the first-floor landing there are wooden, thumb latch doors to all rooms and a useful storage/airing cupboard. As previously mentioned, the property has four well-proportioned, double bedrooms. Bedroom one benefits from being fitted in a range of wardrobes and having access into a modern en-suite shower room with walk-in shower, w.c. and wash hand basin set into a neat vanity unit. Bedroom three also features a wash hand basin tucked away to one corner of the room. Also to this level is a fully tiled family bathroom which includes a panelled bath and a separate corner shower cubicle, in addition to a wash hand basin and close coupled w.c.

Externally, the property sits on a mature plot which measures in the region of ? acre (0.26 acres) stls. There is a spacious patio to the garden which provides a lovely spot to sit and relax. Within the rear garden there is a detached, self-contained annex which has a bright and spacious living area, kitchen, and a separate shower room. A set of five-bar gates to the front of the property give access to a spacious driveway where parking is provided for multiple vehicles. Our Vendor has advised the property has a full alarm system and connected to all mains services.

Entrance Hall - Open plan to the dining room. Door into :

Ground Floor Cloakroom - Fitted in a modern white suite, comprising wash hand basin and w.c.

Dining Room - 6.40m x 4.72m (21' x 15'6) -

Sitting Room / Snug - 4.19m x 3.94m (13'9 x 12'11) - Insulated flooring.

Lounge - 7.34m x 5.11m (24'1 x 16'9) - Two sets of French doors giving access into the garden. Insulated flooring.

Kitchen - 3.68m x 3.68m (12'1 x 12'1) - French doors giving access to the garden. Fitted in a range of Country style wooden wall and base units with granite work surface over. Central island unit with additional storage. Tiled floor with underfloor heating.

First Floor Landing - Doors to all rooms. Storage / airing cupboard.

Bedroom One - 4.83m x 3.61m (15'10 x 11'10) - Window to rear aspect. Fitted wardrobes to one wall. Door into :

En-Suite Shower Room - 2.82m x 1.96m (9'3 x 6'5) - Tiled flooring. Walk-in shower, wash hand basin set into modern vanity unit and close coupled w.c.

Bedroom Two - 4.83m x 3.35m (15'10 x 11') - Window to rear aspect. Ample space for freestanding furniture.

Bedroom Three - 3.78m x 3.78m (12'5 x 12'5) - Window to front aspect. Ample space for freestanding furniture. Wash hand basin to one corner of the room.

Bedroom Four - 3.78m x 3.66m (12'5 x 12') - Window to front aspect. Ample space for freestanding furniture.

Family Bathroom - 2.67m x 2.51m (8'9 x 8'3) - Fully tiled. Comprising : enclosed corner shower cubicle, separate panelled bath, w.c. and wash hand basin.

Exterior - Overall Plot 0.26 Acres - Sitting on a plot measuring in the region of just over 1/4 of an acre (stls) with mature gardens to the rear with spacious patio area.

Detached Self-Contained Annex -

Annex - Lounge - 5.99m x 3.02m (19'8 x 9'11) -

Annex - Kitchen - 3.68m x 2.74m (12'1 x 9') -

Annex - Shower Room - 2.97m x 2.31m (9'9 x 7'7) -

Exterior - Front Garden - Extensive driveway set behind wooden five-bar gates, providing parking for several vehicles. Pedestrian access through to rear garden. Views to the front over open fields.

Agents Note - Vendor has advised us that the property is fully alarmed and that the boiler is just 3 years old with remaining warranty. All mains services are connected.

Agents Note - Fee Disclosure - As part of the service we offer we may recommend ancillary services to you which we believe may help you with your property transaction. We wish to make you aware, that should you decide to use these services we will receive a referral fee. For full and detailed information please visit 'terms and conditions' on our website www.keithashton.co.uk

Property Ref: 59223_33056322

Share:

Similar Properties

** SIGNATURE HOMES ** Shellow Road, Willingale, Ongar

4 Bedroom Detached House | Guide Price £1,100,000

We are delighted to bring to market this spacious family home offering around 2545 sq.ft of accommodation, which sits in...

** SIGNATURE HOMES ** Nine Ashes Road, Nine Ashes, Ingatestone

4 Bedroom Detached House | Guide Price £1,100,000

Located on the outskirts of Blackmore village, along the coveted Nine Ashes Road stands this impressive detached, GDII l...

Chelmsford Road, Blackmore, Ingatestone

4 Bedroom Detached House | Offers in excess of £1,050,000

With a semi-rural position and sitting on a fabulous plot of over half an acre (0.62 stls) with views over open farmland...

Abbotts Way, Off Oak Hill Road, Stapleford Abbotts, Romford

5 Bedroom Detached House | Guide Price £1,175,000

With no onward chain and being set in a private gated development of just 8 other houses built in 2021, is this beautifu...

Weald Road, South Weald, Brentwood

Plot | Guide Price £1,250,000

Set in a stunning location within Weald Country Park is this exceptional and truly unique development opportunity to ref...

** SIGNATURE HOMES ** Church Road, Kelvedon Hatch, Brentwood

3 Bedroom Detached House | Guide Price £1,300,000

In a semi-rural location and sitting on a fabulous well-tended plot of just under 1 acre (stls) with far-reaching views...

Keith Ashton Estates - Village Office (Kelvedon Hatch)

38 Blackmore Road, Kelvedon Hatch, Essex, CM15 0AT

01277 375757

How much is your home worth?

Use our short form to request a valuation of your property.

Request a Valuation

Mortgage Calculator

Amount Borrowed: £
Total Amount Repayable: £
Total Monthly Payment: £
©2025 The Guild of Property Professionals. All rights reserved. Terms and Conditions | Privacy Policy | Cookie Policy | Complaints Policy | Members Login
The Guild of Property Professionals Trading Address: 121 Park Lane, London W1K 7AG. GPEA Limited. Registered in England & Wales.  Company No: 02819824.  Registered Office Address: 2 St. Stephen's Court, St. Stephen's Road, Bournemouth, Dorset, England, BH2 6LA.  VAT Registration No: 576 8795 61
Book a Property Valuation Update Cookies Preferences