Oliver Road, Shenfield, Brentwood

Offers in excess of
£700,000
SSTC
This property listing is now SSTC

4 Bedroom Semi-Detached House for sale in Brentwood

1 4 2
  • SEMI-DETACHED FAMILY HOME
  • OPEN PLAN KITCHEN/DINER
  • FOUR BEDROOMS
  • TWO BATHROOMS
  • 0.6 MILES TO SHENFIELD STATION
  • HIGHLY REGARDED SCHOOLS NEARBY
  • SOUTH WESTERLY FACING GARDEN
  • GROUND FLOOR CLOAKROOM

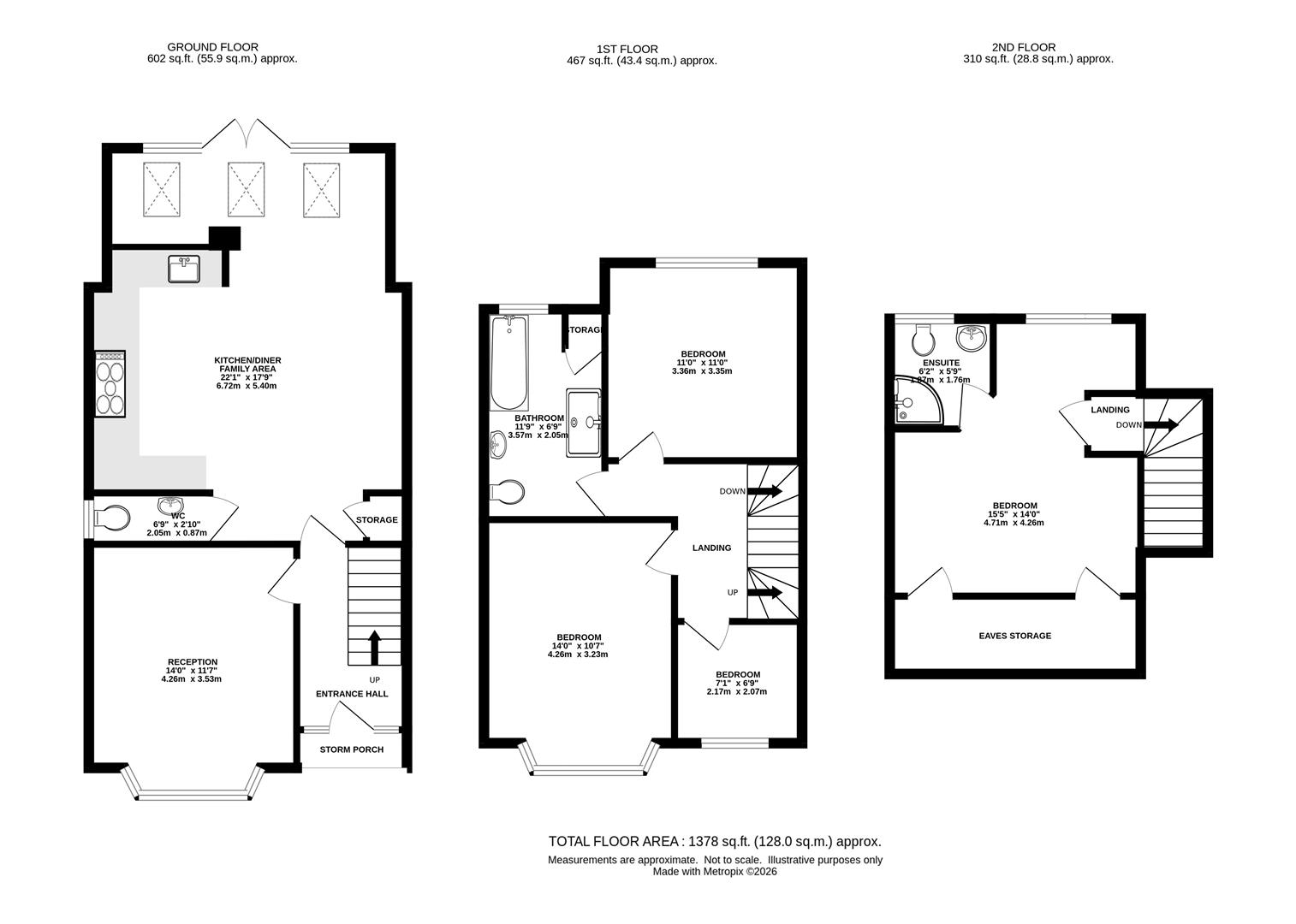
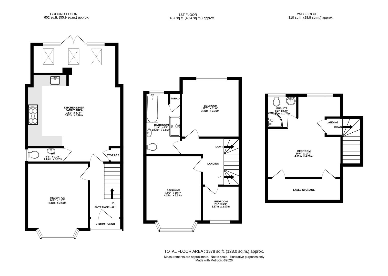
We are delighted to present this well-appointed semi-detached family home, situated in a pleasant and convenient location just a short walk from Shenfield mainline railway station and High Street. The property offers generous accommodation arranged over three floors which includes a spacious open plan kitchen and breakfast room, four well-proportioned bedrooms, and a delightful south westerly facing rear garden, ideal for enjoying afternoon and evening sunshine.

The accommodation begins with an inviting entrance hall leading to a bright and spacious reception room, flooded with natural light from a wide front-facing bay window. An attractive ornate wooden fireplace with decorative surround and gas coal-effect fire creates a warm and welcoming setting, ideal for relaxing and entertaining.

To the rear, an open plan kitchen, dining and family room provides a superb everyday living space, enhanced by French doors with side lights and Velux windows that allow an abundance of natural light. The kitchen is well equipped with a range of eye and base level units, a range cooker and a butler-style sink. A ground floor cloakroom completes this level.

The first-floor landing gives access to two well-proportioned double bedrooms, a single bedroom and a generous family bathroom fitted with a four-piece suite. The second floor hosts a further spacious double bedroom, benefiting from eaves storage and its own ensuite shower room.

Externally, the south westerly facing rear garden begins with a shingle area and pergola-covered seating space, perfect for outdoor dining. Beyond, the garden is mainly laid to lawn and planted with a variety of shrubs and trees. To the front, a driveway provides off-street parking for several vehicles.

Entrance Hall -

Reception Room - 4.28 x 3.53 (14'0" x 11'6") -

Kitchen/Diner/Family Area - 6.72 x 5.40 (22'0" x 17'8") -

Wc -

Landing -

Bedroom - 4.26 x 3.23 (13'11" x 10'7") -

Bedroom - 3.36 x 3.35 (11'0" x 10'11") -

Bedroom - 2.17 x 2.07 (7'1" x 6'9") -

Bathroom - 3.57 x 2.05 (11'8" x 6'8") -

Bedroom - 4.71 x 4.26 (15'5" x 13'11") -

Ensuite - 1.87 x 1.76 (6'1" x 5'9") -

Eaves Storage -

Agents Note - As part of the service we offer we may recommend ancillary services to you which we believe may help you with your property transaction. We wish to make you aware, that should you decide to use these services we will receive a referral fee. For full and detailed information please visit 'terms and conditions' on our website www.keithashton.co.uk

Property Ref: 34411389

Share:

Similar Properties

Burntwood, Brentwood

3 Bedroom Detached House | Guide Price £700,000

**Guide Price £700,000 - £725,000** We are delighted to bring to market this beautifully presented detached family home,...

The Dell, Great Warley, Brentwood

4 Bedroom Detached House | Offers in excess of £700,000

We are delighted to bring to market this impressive, detached family home, occupying a generous corner plot within a qui...

Tree Tops, Brentwood

4 Bedroom Detached House | POA

** OPEN HOUSE - SATURDAY 21ST MAY - STRICTLY BY APPOINTMENT ONLY ** Requiring complete modernisation throughout and loca...

Willingale Close, Hutton, Brentwood

3 Bedroom Detached Bungalow | Offers in excess of £710,000

We are delighted to bring to market this exquisite three-bedroom detached bungalow, offered with the advantage of no onw...

The Chase, Ingrave, Brentwood

5 Bedroom Detached House | Guide Price £725,000

Guide Price £725,000 - £775,000** Nestled in a charming cul-de-sac within the sought-after village of Ingrave, this spac...

Byron Road, Hutton, Brentwood

4 Bedroom Detached House | £725,000

We are delighted to present this beautifully maintained, detached family home, ideally positioned in the sought-after Po...

Keith Ashton Estates - Brentwood Office (Brentwood)

26 St. Thomas Road, Brentwood, Essex, CM14 4DB

01277 260858

How much is your home worth?

Use our short form to request a valuation of your property.

Request a Valuation

Mortgage Calculator

Amount Borrowed: £
Total Amount Repayable: £
Total Monthly Payment: £
©2026 The Guild of Property Professionals. All rights reserved. Terms and Conditions | Privacy Policy | Cookie Policy | Complaints Policy | Members Login
The Guild of Property Professionals Trading Address: 121 Park Lane, London W1K 7AG. GPEA Limited. Registered in England & Wales.  Company No: 02819824.  Registered Office Address: 2 St. Stephen's Court, St. Stephen's Road, Bournemouth, Dorset, England, BH2 6LA.  VAT Registration No: 576 8795 61
Book a Property Valuation Update Cookies Preferences