Ongar Road, Stondon Massey, Brentwood

Offers in excess of
£650,000

4 Bedroom Detached House for sale in Brentwood

2 4 2
  • EXTENDED DETACHED CHALET STYLE PROPERTY
  • FOUR DOUBLE BEDROOMS
  • OPEN PLAN LIVING ROOM / DINING ROOM
  • WELL-FITTED, CONTEMPORARY STYLE KITCHEN
  • GROUND FLOOR BATHROOM & FIRST FLOOR SHOWER ROOM
  • GROUND FLOOR CLOAKROOM
  • 65' GARDEN BACKING ONTO FIELDS
  • SPACIOUS DRIVEWAY & ATTACHED GARAGE

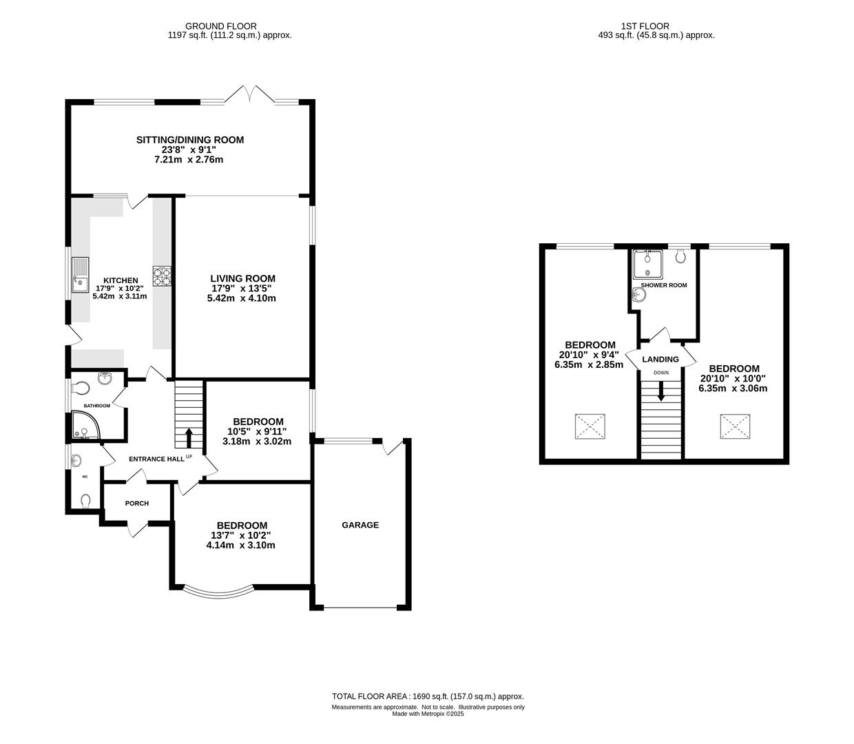
Deceptively spacious with almost 1700 sq.ft of living space is this extended, four double bedroom, detached chalet style property which benefits from a tidy 65' rear garden which backs onto open farmland. This lovely home is perfectly situated in the heart of Stondon Massey and is within easy reach of the nearby villages of Blackmore, Doddinghurst and Kelvedon Hatch with a great range of local amenities. The property is also just a short drive into Brentwood and Shenfield Town Centre, where you will find high street shopping, well-regarded secondary schools and mainline train services into London.

Entering the property a small porch provides a useful space for coat and shoe storage, with a further door giving access into a spacious entrance hall where you have stairs rising to the first floor with attractive wrought iron spindles. From the hallway you have access into the kitchen; this room has been beautifully styled with marble effect tiled flooring and high-gloss, contemporary style coloured base units with contrasting work surface and cream units above. Integrated appliances include oven and hob with extractor above and there is plenty of space for further appliances, including washing machine, dishwasher and fridge/freezer. You have access into the garden from the kitchen. The living room and dining room are open plan to each other, but still very clearly defined spaces. The living room area has a contemporary style fireplace inset and a window to the side aspect, along with views of the garden via the dining room. From the dining room French doors open into the rear garden and there is a further door which gives access into the kitchen. Also to this level is a modern ground floor cloakroom and a shower room with corner shower cubicle, wash hand basin and w.c.

Overall, the property has four double bedrooms, two are located on the ground floor with the remaining two bedrooms located on the first floor, which forms part of the loft conversion. The first-floor bedrooms are large rooms both measuring 20'10 in length and they have views over the garden and fields beyond. Also to this level is a spacious shower room with double, walk-in shower room with handheld shower attachment and overhead rainfall shower, wash hand basin set into in a vanity unit and w.c.

To the rear of the property is a tidy 65' rear garden which backs onto open farmland. The garden commences with a block paved patio leading into neat lawns, with a storage shed at the bottom of the garden. There is access through to the front of the property from the side of the house and via a pedestrian door at the rear of the garage. There is ample parking provided for several vehicles by way of a good-sized loose stone driveway and an attached garage.

Porch - Door into :

Entrance Hall - Staircase with wrought iron spindles rising to the first floor.

Ground Floor Cloakroom - Wash hand basin and w.c.

Ground Floor Bathroom - Modern suite, comprising shower cubicle, wash hand basin and w.c.

Ground Floor Bedroom - 4.14m x 3.10m (13'7 x 10'2) - Bay window to front aspect.

Bedroom - 3.18m x 3.02m (10'5 x 9'11) - Window to side aspect.

Living Room - 5.41m x 4.09m (17'9 x 13'5) - Window to side aspect. Inset, contemporary fireplace. Lounge is open plan to :

Sitting Room / Dining Room - 7.21m x 2.77m (23'8 x 9'1) - French doors to garden and windows to rear aspect. Door to :

Kitchen - 5.41m x 3.10m (17'9 x 10'2) - High gloss. contemporary style kitchen fitted with coloured base units with contrasting work surfaces and cream wall units over. Marble effect tiled flooring. Integrated oven and hob with extractor above and further space for freestanding washing machine, dishwasher and fridge/freezer. Door to garden.

First Floor Landing - Doors to all rooms.

Bedroom - 6.35m x 3.05m (20'10 x 10') - Window to rear aspect with views over the garden and farmland beyond.

Bedroom - 6.35m x 2.84m (20'10 x 9'4) - Window to rear aspect with views over the garden and farmland beyond.

Shower Room - Double, walk-in shower with hand held attachment and overhead rainfall shower. Wash hand basin set into vanity unit and close coupled w.c.

Exterior - Rear Garden - approx 19.81m in length (approx 65' in length) - Block paved patio leading into lawn. Backing onto fields at the rear. Side access through to the front.

Exterior - Front Garden - Large driveway providing parking for several vehicles with the remainder being laid to lawn.

Attached Single Garage - Window and pedestrian door to rear into the garden.

Agents Note - Fee Disclosure - As part of the service we offer we may recommend ancillary services to you which we believe may help you with your property transaction. We wish to make you aware, that should you decide to use these services we will receive a referral fee. For full and detailed information please visit 'terms and conditions' on our website www.keithashton.co.uk

Property Ref: 34075296

Share:

Similar Properties

Harpers Lane, Doddinghurst, Brentwood

3 Bedroom Semi-Detached Bungalow | Guide Price £650,000

Coming to the market for the first time in 30 years is this exceedingly well-maintained semi-detached bungalow located i...

Hook End Road, Hook End, Brentwood

4 Bedroom Detached House | Guide Price £650,000

Situated in the centre of Hook End is this detached chalet style home which comes to the market with full planning permi...

Church Lane, Doddinghurst, Brentwood

3 Bedroom Detached Bungalow | Offers in excess of £650,000

***NO ONWARD CHAIN*** Set back from the road and sitting on a good-sized plot is this spacious, detached freehold bungal...

Stocksfield, Kelvedon Hatch, Brentwood

5 Bedroom Detached House | Guide Price £665,000

Benefitting from a double storey extension to the rear, we are delighted to bring to market this FIVE bedroom, two recep...

Jericho Place, Blackmore, Ingatestone

3 Bedroom Detached Bungalow | Guide Price £670,000

Offered for sale is this three, double bedroom, detached bungalow situated in a quiet cul-de-sac in the heart of Blackmo...

Tipps Cross Lane, Hook End, Brentwood

2 Bedroom Detached Bungalow | Guide Price £675,000

Situated in a sought-after village location, a little over 5 miles from Brentwood Town Centre with its high street shopp...

Keith Ashton Estates - Village Office (Kelvedon Hatch)

38 Blackmore Road, Kelvedon Hatch, Essex, CM15 0AT

01277 375757

How much is your home worth?

Use our short form to request a valuation of your property.

Request a Valuation

Mortgage Calculator

Amount Borrowed: £
Total Amount Repayable: £
Total Monthly Payment: £
©2026 The Guild of Property Professionals. All rights reserved. Terms and Conditions | Privacy Policy | Cookie Policy | Complaints Policy | Members Login
The Guild of Property Professionals Trading Address: 121 Park Lane, London W1K 7AG. GPEA Limited. Registered in England & Wales.  Company No: 02819824.  Registered Office Address: 2 St. Stephen's Court, St. Stephen's Road, Bournemouth, Dorset, England, BH2 6LA.  VAT Registration No: 576 8795 61
Book a Property Valuation Update Cookies Preferences