Weald Road, Brentwood

Guide Price
£425,000
SSTC
This property listing is now SSTC

2 Bedroom Semi-Detached House for sale in Brentwood

1 2 2
  • TWO BEDROOM SEMI-DETACHED HOME
  • CORNER PLOT
  • SPACIOUS BALCONY
  • GENEROUS DOUBLE BEDROOMS
  • HALF A MILE FROM BRENTWOOD STATION
  • OFF-STREET PARKING
  • STRIKING DISTANCE OF THE HIGH STREET
  • LOW MAINTENANCE GARDEN

**Guide Price £425,000 - £450,000** We are delighted to present this distinctive semi-detached home, occupying a corner plot just moments from Brentwood High Street.

Set across two floors, the ground level features two generous double bedrooms, while the first floor boasts a bright lounge and a well-appointed kitchen/diner opening onto a full-length balcony - an ideal space to relax or entertain.

Ideally located just half a mile from Brentwood Station, this home combines individuality with superb convenience, offering excellent connectivity into London and beyond.

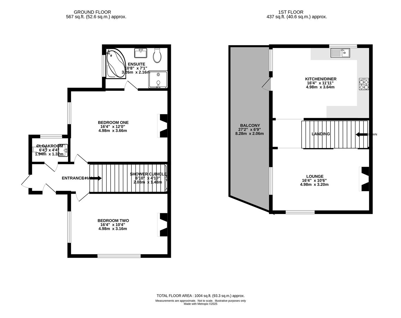
The accommodation begins with a welcoming entrance hall, leading to two well-proportioned double bedrooms, one with an ensuite bathroom and the other served by a walk-in shower, alongside a separate WC.

On the first floor, a bright lounge sits alongside a well-appointed kitchen/diner, fitted with a range of eye and base level units and generous worktop space. From here, doors open onto a full-length balcony, providing an excellent spot to relax or entertain.

Externally, the property enjoys a low-maintenance rear garden with a paved patio and artificial lawn, while to the front, a paved driveway offers convenient off-street parking.

Entrance Hall -

Bedroom One - 4.98 x 3.66 (16'4" x 12'0") -

Ensuite - 3.26 x 2.16 (10'8" x 7'1") -

Bedroom Two - 4.98 x 3.16 (16'4" x 10'4") -

Shower Cubicle -

Wc -

Landing -

Kitchen/Diner - 4.98 x 3.64 (16'4" x 11'11") -

Lounge - 4.98 x 3.20 (16'4" x 10'5") -

Balcony - 8.28 x 2.06 (27'1" x 6'9") -

Agents Note - As part of the service we offer we may recommend ancillary services to you which we believe may help you with your property transaction. We wish to make you aware, that should you decide to use these services we will receive a referral fee. For full and detailed information please visit 'terms and conditions' on our website www.keithashton.co.uk

Property Ref: 34125692

Share:

Similar Properties

Ingrave Road, Brentwood

3 Bedroom Semi-Detached House | Guide Price £425,000

**GUIDE PRICE £425,000 - £450,000** Located on the popular Ingrave Road, this three-bedroom semi-detached property prese...

Cornwall Road, Pilgrims Hatch, Brentwood

2 Bedroom End of Terrace House | Guide Price £425,000

We are pleased to present this spacious and beautifully maintained end-of-terrace home, ideally located in the popular v...

Chase Road, Brentwood

2 Bedroom Terraced House | Guide Price £425,000

We are delighted to present this beautifully arranged two-bedroom cottage, offering a warm and inviting atmosphere acros...

Karen Close, Brentwood

3 Bedroom Semi-Detached House | Guide Price £435,000

Welcome to this charming three bedroom semi-detached family home located on the desirable Karen Close in Brentwood. Situ...

Milton Road, Warley, Brentwood

2 Bedroom End of Terrace House | £435,000

We are delighted to bring to market this charming end-terrace cottage, ideally located just 0.3 miles from Brentwood mai...

Saffron Close, West Horndon, Brentwood

2 Bedroom Semi-Detached Bungalow | Guide Price £450,000

We bring to market this two-bedroom, semi-detached bungalow, ideally located, within easy reach of local amenities, and...

Keith Ashton Estates - Brentwood Office (Brentwood)

26 St. Thomas Road, Brentwood, Essex, CM14 4DB

01277 260858

How much is your home worth?

Use our short form to request a valuation of your property.

Request a Valuation

Mortgage Calculator

Amount Borrowed: £
Total Amount Repayable: £
Total Monthly Payment: £
©2026 The Guild of Property Professionals. All rights reserved. Terms and Conditions | Privacy Policy | Cookie Policy | Complaints Policy | Members Login
The Guild of Property Professionals Trading Address: 121 Park Lane, London W1K 7AG. GPEA Limited. Registered in England & Wales.  Company No: 02819824.  Registered Office Address: 2 St. Stephen's Court, St. Stephen's Road, Bournemouth, Dorset, England, BH2 6LA.  VAT Registration No: 576 8795 61
Book a Property Valuation Update Cookies Preferences