Doddinghurst Road, Brentwood

Guide Price
£850,000

4 Bedroom Detached House for sale in Brentwood

1 4 2
  • DETACHED FAMILY HOME
  • WELL PRESENETED THROUGHOUT
  • FOUR BEDROOMS
  • TWO BATHROOMS
  • EXCELLENT SCHOOLING OPTIONS CLOSE BY
  • AMPLE OFF-STREET PARKING
  • EASY REACH OF BRENTWOOD TRAIN STATION
  • VERSATILE OUTBUILDING

**GUIDE PRICE £850,000 - £900,000** We are delighted to bring to market this detached family home, ideally positioned less than a mile from Brentwood High Street, where you can enjoy a range of shops, bars, and restaurants. Thoughtfully designed and well-presented throughout, the property boasts four bedrooms, two modern bathrooms, and a generous rear garden complete with a versatile purpose-built outbuilding.

The location is equally impressive, with Brentwood's mainline station just a short distance away, offering Elizabeth Line services for swift and direct connections into London and beyond. Families will also appreciate the close proximity to a number of highly regarded local schools, making this home a perfect choice for both convenience and lifestyle.

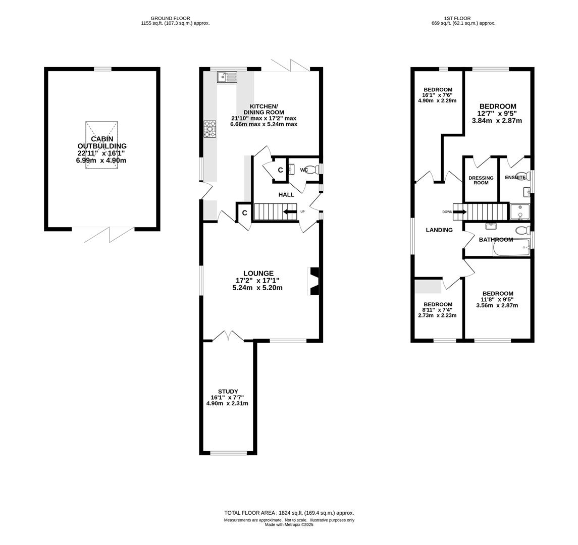
The accommodation is introduced by a welcoming entrance hall. To the front, a comfortable lounge offers a cosy retreat, with double doors opening into a versatile study. At the rear, the heart of the home lies in the bright and spacious kitchen/diner, beautifully fitted with contemporary eye and base level units, contrasting worktops, and a stylish breakfast bar. Bi-fold doors not only flood the room with natural light but also provide seamless access to the rear garden. A convenient ground floor cloakroom completes this level.

Upstairs, the landing leads to four well-proportioned bedrooms. The principal suite boasts a sleek ensuite shower room and a separate dressing room. A modern family bathroom serves the remaining bedrooms, combining both comfort and functionality.

Outside, the rear garden begins with a paved seating area, perfect for al fresco dining, which extends to a neatly maintained lawn framed by mature shrubs. A purpose-built outbuilding adds excellent versatility, currently arranged as a bar and living area with its own wood burner. To the front of the property, a large block-paved driveway provides ample off-street parking.

Entrance Hall -

Kitchen/Dining Room - 6.66 x 5.24 (21'10" x 17'2") -

Lounge - 5.24 x 5.20 (17'2" x 17'0") -

Study - 4.90 x 2.31 (16'0" x 7'6") -

Wc -

Landing -

Bedroom One - 3.84 x 2.87 (12'7" x 9'4") -

Dressing Room -

Ensuite -

Bedroom Two - 3.56 x 2.87 (11'8" x 9'4") -

Bedroom Three - 4.90 x 2.29 (16'0" x 7'6") -

Bedroom Four - 2.73 x 2.23 (8'11" x 7'3") -

Bathroom -

Cabin/Outbuilding - 6.99 x 4.90 (22'11" x 16'0") -

Agents Note - As part of the service we offer we may recommend ancillary services to you which we believe may help you with your property transaction. We wish to make you aware, that should you decide to use these services we will receive a referral fee. For full and detailed information please visit 'terms and conditions' on our website www.keithashton.co.uk

Property Ref: 8226_34193766

Share:

Similar Properties

Coxtie Green Road, Pilgrims Hatch, Brentwood

4 Bedroom Cottage | £850,000

We are delighted to present this charming three/four bedroom semi-detached cottage, ideally positioned in a semi-rural s...

41 Shenfield Road, Shenfield, Brentwood

2 Bedroom Apartment | Guide Price £825,000

We are proud to present 41 Shenfield Road Apartments - an exclusive, gated development of just nine brand-new luxury apa...

Warley Gap, Little Warley, Brentwood

Land | Guide Price £820,000

We are delighted to present a rare and exceptional opportunity to acquire a prime plot of land in the prestigious and pi...

41 Shenfield Road, Shenfield, Brentwood

2 Bedroom Apartment | Guide Price £875,000

We are proud to present 41 Shenfield Road Apartments - an exclusive, gated development of just nine brand-new luxury apa...

Rhapsody Crescent, Warley, Brentwood

4 Bedroom Terraced House | Offers in excess of £899,950

We are excited to bring to market this impressive, four-bedroom town house, set over four levels and being located in th...

Brentwood Road, Herongate, Brentwood

3 Bedroom Detached House | £900,000

We are pleased to introduce this delightful, detached family home, perfectly positioned in the sought-after village of H...

Keith Ashton Estates - Brentwood Office (Brentwood)

26 St. Thomas Road, Brentwood, Essex, CM14 4DB

01277 260858

How much is your home worth?

Use our short form to request a valuation of your property.

Request a Valuation

Mortgage Calculator

Amount Borrowed: £
Total Amount Repayable: £
Total Monthly Payment: £
©2025 The Guild of Property Professionals. All rights reserved. Terms and Conditions | Privacy Policy | Cookie Policy | Complaints Policy | Members Login
The Guild of Property Professionals Trading Address: 121 Park Lane, London W1K 7AG. GPEA Limited. Registered in England & Wales.  Company No: 02819824.  Registered Office Address: 2 St. Stephen's Court, St. Stephen's Road, Bournemouth, Dorset, England, BH2 6LA.  VAT Registration No: 576 8795 61
Book a Property Valuation Update Cookies Preferences