Convil Road, Blaengarw, Bridgend

Offers in region of
£138,000
Under Offer
This property listing is now Under Offer

2 Bedroom Terraced House for sale in Bridgend

1 2 1
  • 2 Bedrooms
  • 7 miles from M4 and Bridgend Designer Outlet
  • Chain free
  • Close proximity to local school, shops and amenities
  • Close to lakes and countryside walks
  • Conveniently located
  • Fitted Bathroom
  • Fitted Kitchen

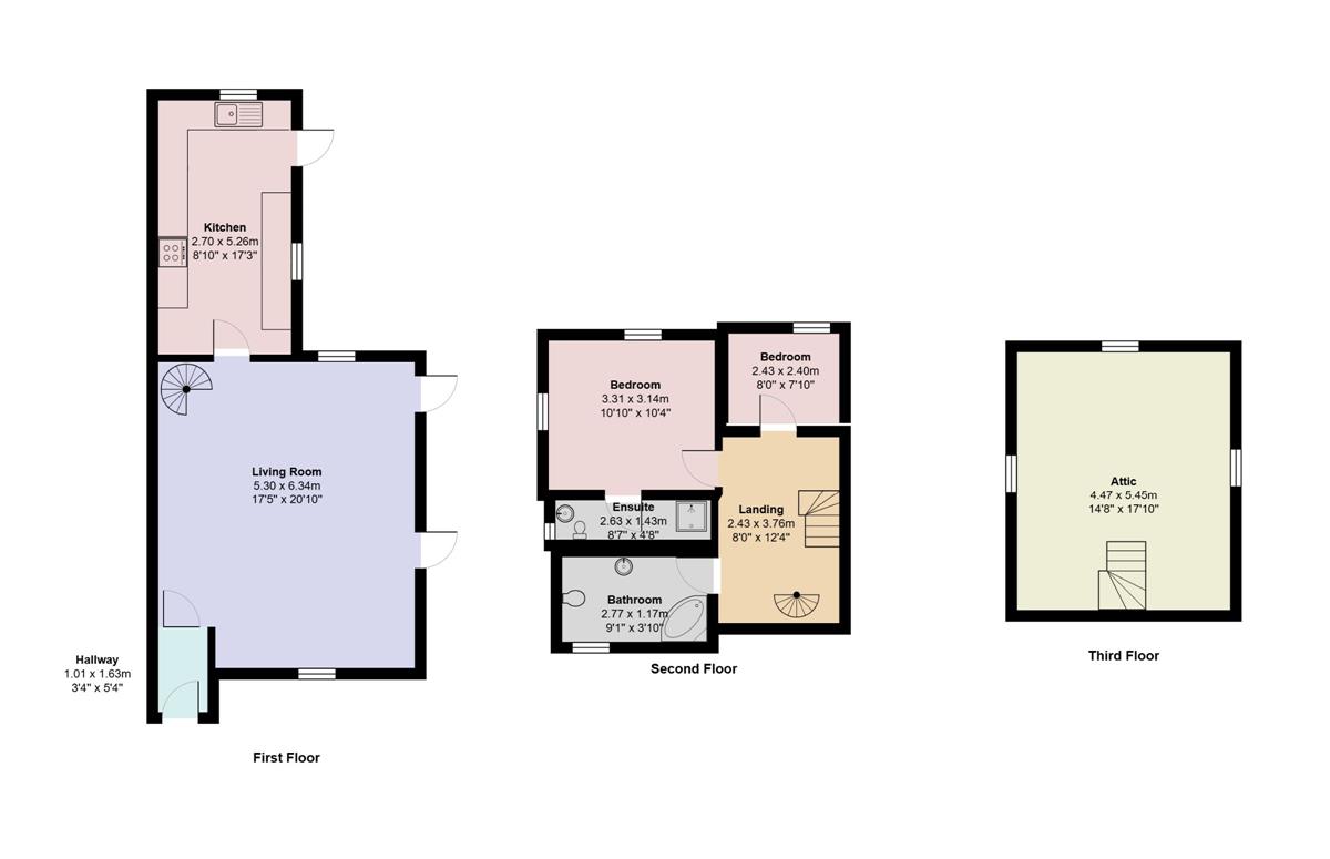
**NEW STAIRCASE BEING DONE** Enjoying countryside views, this unique end terrace property is situated in the heart of Blaengarw; within walking distance of village amenities, Primary School, countryside walks and lakes.
This charming and distinctive two-bedroom property offers a wonderful blend of character, comfort, and practicality.

Stepping inside, you're greeted by a generous and inviting living room adorned with a beautiful log burner-ideal for curling up on the sofa during chilly winter evenings. The ambiance exudes warmth and relaxation, making it the perfect space for entertaining or unwinding.

Adjacent to the living area is a thoughtfully designed fitted kitchen, equipped with ample storage solutions and plenty of countertop space for meal prepping and culinary creativity. Its functional layout makes cooking a pleasure, whether it's a quick breakfast or a gourmet dinner.
upper floor, where you'll find two spacious bedrooms bathed in natural light. The primary bedroom features a private ensuite, while the second bathroom serves the remaining spaces with style and convenience. Both bedrooms are designed with comfort in mind, offering peaceful retreats from the busyness of the day.

At the top of the house, a converted attic space adds an extra layer of versatility-perfect as a secluded reading nook or a creative studio. It's a true getaway within your own home, offering privacy and charm in equal measure.

This property truly stands out with its thoughtful design, homely features, and adaptable spaces-an inviting haven for anyone looking to balance everyday living with unique character.

Council Tax Band: A
Tenure: Freehold
Garden details: Rear Garden
Electricity supply: Mains

Living room w: 5.3m x l: 6.3m x h: 2.52m (w: 17' 5" x l: 20' 8" x h: 8' 3")
White door with silver handle upon entry, white skirting boards, light beige carpet, cream painted walls, three white radiators, 12 spotlights, log burner in the corner of the room, 5 dual plug sockets, one window overlooking front and one overlooking rear.

Kitchen w: 2.7m x l: 5.34m x h: 2.19m (w: 8' 10" x l: 17' 6" x h: 7' 2")
White wooden sliding door upon entry, wooden plank flooring, white skirting boards, white walls with half red tiling, black overnight and hobs with black extraction hood, white cabinets, wooden worktops, one window overlooking side, 1 window overlooking rear, one white glass panelled door upon exit, 6 dual plug sockets, one single plug socket.

Bathroom w: 1.17m x l: 2.77m x h: 2.38m (w: 3' 10" x l: 9' 1" x h: 7' 10")
White sliding door upon entry with silver handle, black tiled flooring, white skirting boards, light cream walls, light beige and diamond patterned black tiles around bath and sink, white bath with silver taps, white sink with silver tap, white toilet, white towel radiator, white storage cupboards, one window overlooking tear

Bedroom 1 w: 3.31m x l: 3.14m x h: 2.42m (w: 10' 10" x l: 10' 4" x h: 7' 11")
White door with silver handle upon entry, tan coloured carpet, light cream walls, white skirting boards, two dual sockets, one radiator, one window overlooking front, one window overlooking side of the property,white door with silver handle upon exit to en-suite

En-suite w: 2.63m x l: 1.43m x h: 2.39m (w: 8' 8" x l: 4' 8" x h: 7' 10")
White door with silver handle upon entry, black tiled flooring,white walls with beige tiling behind shower and sink, white sink with silver taps, white toilet,white towel radiator, one window overlooking side of the property, glass sliding door for the shower, silver shower head unit.extractor fan fitted.

Bedroom 2 w: 2.43m x l: 2.4m x h: 2.4m (w: 8' x l: 7' 11" x h: 7' 10")
White door with silver handle upon entry, tan carpet, light cream walls, white skirting boards, one radiator, one visible dual socket, one window overlooking front,

Attic w: 4.47m x l: 5.45m x h: 2.22m (w: 14' 8" x l: 17' 11" x h: 7' 4")
Converted attic area, tan carpet, light cream walls, white skirting boards, two skylight overlooking each side of the property, one circular window overlooking the surrounding landscape, one radiator, four visible dual sockets, five doors leading to storage area.

Garden
Patio garden with pebbles one one side and plants and the other, white door with glass panels leading into the garden, a wooden door leading to the paths behind, surrounded by maroon fencing.

Disclaimer
Your attention is drawn to the fact that we have been unable to confirm whether certain items included with the property are in full working order. Any prospective purchaser must accept that the property is offered for sale on this basis. All dimensions are approximate and for guidance purposes on

Important Information

  • This is a Freehold property.

Property Ref: RS0585

Share:

Similar Properties

Herbert Street, Blaengarw, Bridgend

3 Bedroom Terraced House | Offers in region of £136,000

Spacious three-storey mid-terrace in Blaengarw with two large reception rooms, a generous kitchen/diner, and modern show...

Oakdale Terrace, Tonypandy

3 Bedroom Terraced House | Offers Over £135,000

Wisemove are proud to present this spacious 3 bed terraced house in Tonypandy. With excellent views from well-presented...

Bryn Cottages, Pontyrhyl, Bridgend

2 Bedroom Terraced House | Guide Price £135,000

Well-presented two-bedroom terraced cottage arranged over three floors. Lounge on first floor, kitchen, utility and four...

Waun Fach, Bettws, Bridgend

3 Bedroom Semi-Detached House | Offers in region of £139,950

An ideal chain?free investment opportunity situated in the sought?after area of Bettws, Bridgend. The property benefits...

James Road, Blaengarw, Blaengarw, Bridgend

3 Bedroom Terraced House | £139,995

Three-storey, three-bedroom terraced home on James Road, Balengarw. Three good-sized bedrooms on the first floor, large...

Marian Street, Blaengarw, Bridgend

3 Bedroom End of Terrace House | £139,999

This beautifully presented, chain?free three?bedroom home is set in the picturesque Garw Valley, offering a wonderful bl...

Wisemove (Pontycymer)

Pontycymer, Bridgend, CF32 8DD

01656870640

How much is your home worth?

Use our short form to request a valuation of your property.

Request a Valuation

Mortgage Calculator

Amount Borrowed: £
Total Amount Repayable: £
Total Monthly Payment: £
©2026 The Guild of Property Professionals. All rights reserved. Terms and Conditions | Privacy Policy | Cookie Policy | Complaints Policy | Members Login
The Guild of Property Professionals Trading Address: 121 Park Lane, London W1K 7AG. GPEA Limited. Registered in England & Wales.  Company No: 02819824.  Registered Office Address: 2 St. Stephen's Court, St. Stephen's Road, Bournemouth, Dorset, England, BH2 6LA.  VAT Registration No: 576 8795 61
Book a Property Valuation Update Cookies Preferences