Puriton Park, Puriton

£290,000
SSTC
This property listing is now SSTC

3 Bedroom Link Detached House for sale in Bridgwater

2 3 1
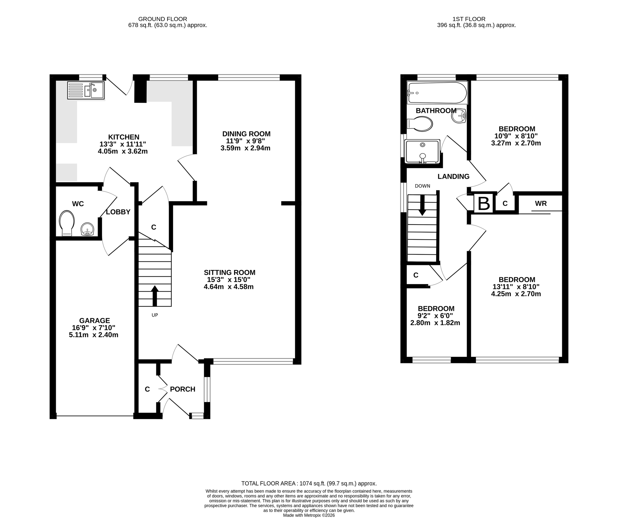
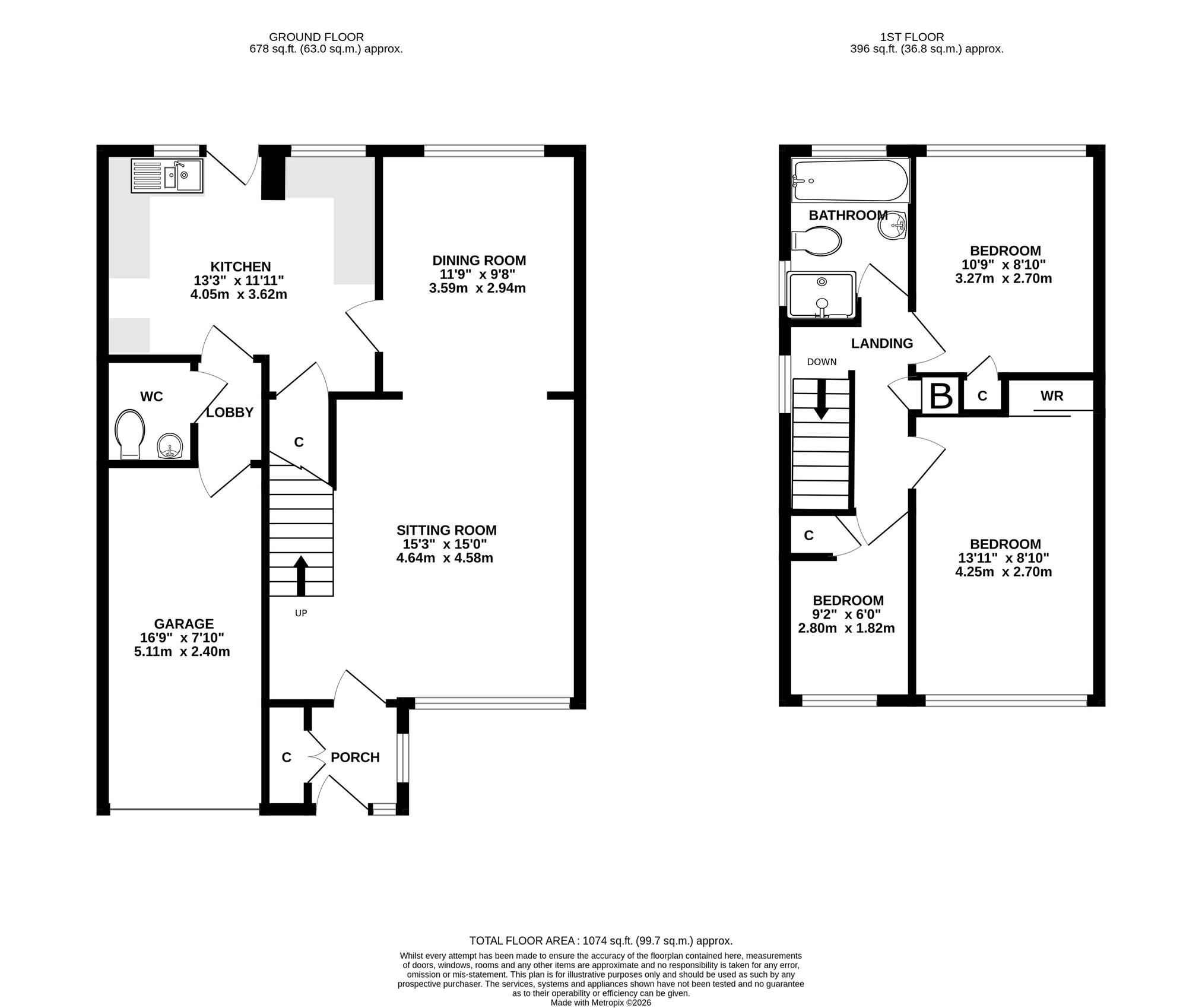
  • Set within a quiet residential area, the property offers attractive kerb appeal with scope to extend, subject to the necessary planning permissions and consents.
  • Offering a welcoming entrance porch with built-in storage for coats and shoes, a convenient ground floor cloakroom, and internal access through to the garage.
  • An impressive, bright and airy sitting room, generously proportioned and flooded with natural light via a large front-facing window.
  • A well-proportioned dining room offering ample space for a family-sized table and chairs, enjoying pleasant views over the rear garden.
  • The Kitchen has been fitted with a comprehensive range of wall, base and drawer units, offering space for freestanding and under-counter appliances and enjoying direct access to the rear garden.
  • Affording three bedrooms, two of which would be considered well-proportioned, all benefiting from built-in wardrobe or cupboard space.
  • A neatly presented family bathroom fitted with a white suite comprising a bath, separate shower enclosure, wash basin, WC and heated towel rail.
  • Enclosed rear garden featuring a generous patio, an area of lawn bordered by shrub-filled beds, and a garden shed providing useful storage.
  • To the front is an area laid to lawn with ample driveway parking for multiple vehicles, leading to the garage fitted with an up-and-over door, power and lighting.

Offered for sale with no onward chain, this well maintained and neatly presented three-bedroom link-detached house is set within a well-established residential area of similar properties, making it an ideal purchase for a range of buyers.

Location
Puriton is a well regarded village situated on the western end of the beautiful Polden Hills, popular for its walks and typical Somerset scenery. The village enjoys an active community and good range of facilities including a Post Office, Shop, Village Hall, Butchers, Hairdressers, Nursery, Preschool, Church and Primary School. A popular commuter village with easily accessible transport links including the M5 J23 just a few minutes' drive and train station in Bridgwater just 5 miles. Nearby market towns of Taunton and Bridgwater and the thriving village Street offer excellent employment opportunities and amenities.

Directions
From Street, proceed west on the A39 towards Bridgwater. After approximately ten miles you will arrive at the village of Bawdrip. At the traffic lights turn left, signposted M5, proceed up and over the hill. At the roundabout take the 3rd exit onto enterprise way and then left onto Hillside road, continue along and take a right at the junction of Woolavington Road. Follow the road and take the 3rd right into Puriton Park, continue along passing the turning for Elm Lea Close. As the road bears around to the left, the property will be found after a short distance, also on the left hand side and will be easily identified by our For Sale board.

Material Information
All available property information can be provided upon request from Holland & Odam. For confirmation of mobile phone and broadband coverage, please visit checker.ofcom.org.uk

Identity Verification
To ensure full compliance with current legal requirements, all buyers are required to verify their identity and risk status in line with anti-money laundering (AML) regulations before we can formally proceed with the sale. This process includes a series of checks covering identity verification, politically exposed person (PEP) screening, and AML risk assessment for each individual named as a purchaser. In addition, for best practice, we are required to obtain proof of funds and where necessary, to carry out checks on the source of funds being used for the purchase. These checks are mandatory and must be completed regardless of whether the purchase is mortgage-funded, cash, or part of a related transaction. A disbursement of £49 per individual (or £75 per director for limited company purchases) is payable to cover all aspects of this compliance process. This fee represents the full cost of conducting the required checks and verifications. You will receive a secure payment link and full instructions directly from our compliance partner, Guild365, who carry out these checks on our behalf.

Important Information

  • This is a Freehold property.

Property Ref: SCJ839838

Share:

Similar Properties

Ford Lane, Stawell

3 Bedroom Semi-Detached House | £290,000

A deceptively spacious home that offers far more than first meets the eye, this immaculately presented and tastefully de...

Polden Court, Ashcott

3 Bedroom Semi-Detached House | £290,000

Advantageously available with no onward chain, this neatly presented three bedroom semi-detached house benefits from a d...

Orchard Road, Street

3 Bedroom Character Property | £289,950

More than meets the eye and not to be overlooked, this deceptively spacious three-bedroom cottage is a true hidden gem....

Cranhill Road, Street

3 Bedroom Semi-Detached House | £295,000

An imposing three bedroom semi detached home, well positioned within a short and level walk of Street High Street, Clark...

Pearmain Road, Street

3 Bedroom Semi-Detached House | £295,000

Situated in a popular area of the town along a quiet no-through road, this light, bright and well-maintained three-bedro...

Oriel Road, Street

2 Bedroom Chalet | £295,000

Advantageously available with no onward chain and vacant possession, this spacious two-bedroom chalet bungalow offers we...

Holland & Odam (Street)

Street, Somerset, BA16 0BJ

01458 841411

How much is your home worth?

Use our short form to request a valuation of your property.

Request a Valuation

Mortgage Calculator

Amount Borrowed: £
Total Amount Repayable: £
Total Monthly Payment: £
©2026 The Guild of Property Professionals. All rights reserved. Terms and Conditions | Privacy Policy | Cookie Policy | Complaints Policy | Members Login
The Guild of Property Professionals Trading Address: 121 Park Lane, London W1K 7AG. GPEA Limited. Registered in England & Wales.  Company No: 02819824.  Registered Office Address: 2 St. Stephen's Court, St. Stephen's Road, Bournemouth, Dorset, England, BH2 6LA.  VAT Registration No: 576 8795 61
Book a Property Valuation Update Cookies Preferences