Northbrook Road, Shapwick

£399,950

4 Bedroom Semi-Detached House for sale in Bridgwater

3 4 1
  • Characterful Victorian semi-detached home with period charm, rustic floorboards, sash windows and a multi-fuel burner.
  • Well-appointed farmhouse-style kitchen with Belfast sink, range-style cooker, breakfast bar and flagstone flooring.
  • Impressive open-plan kitchen, dining and family space forming the heart of the home, ideal for modern family living and entertaining.
  • Light-filled family room with lantern rooflight and bifold doors creating a seamless connection to the garden.
  • Versatile second-floor loft room with Velux windows and far-reaching views towards the Mendips, ideal as a home office, studio or hobby space.
  • Attractive enclosed rear garden designed for low maintenance, with a generous paved patio, artificial lawn, planted borders and useful storage.

A deceptively spacious Victorian semi-detached house in the popular village of Shapwick, offering four bedrooms, characterful period features, modern comforts, a private garden, far-reaching views to the Mendips.This is one not to be overlooked.

Accommodation
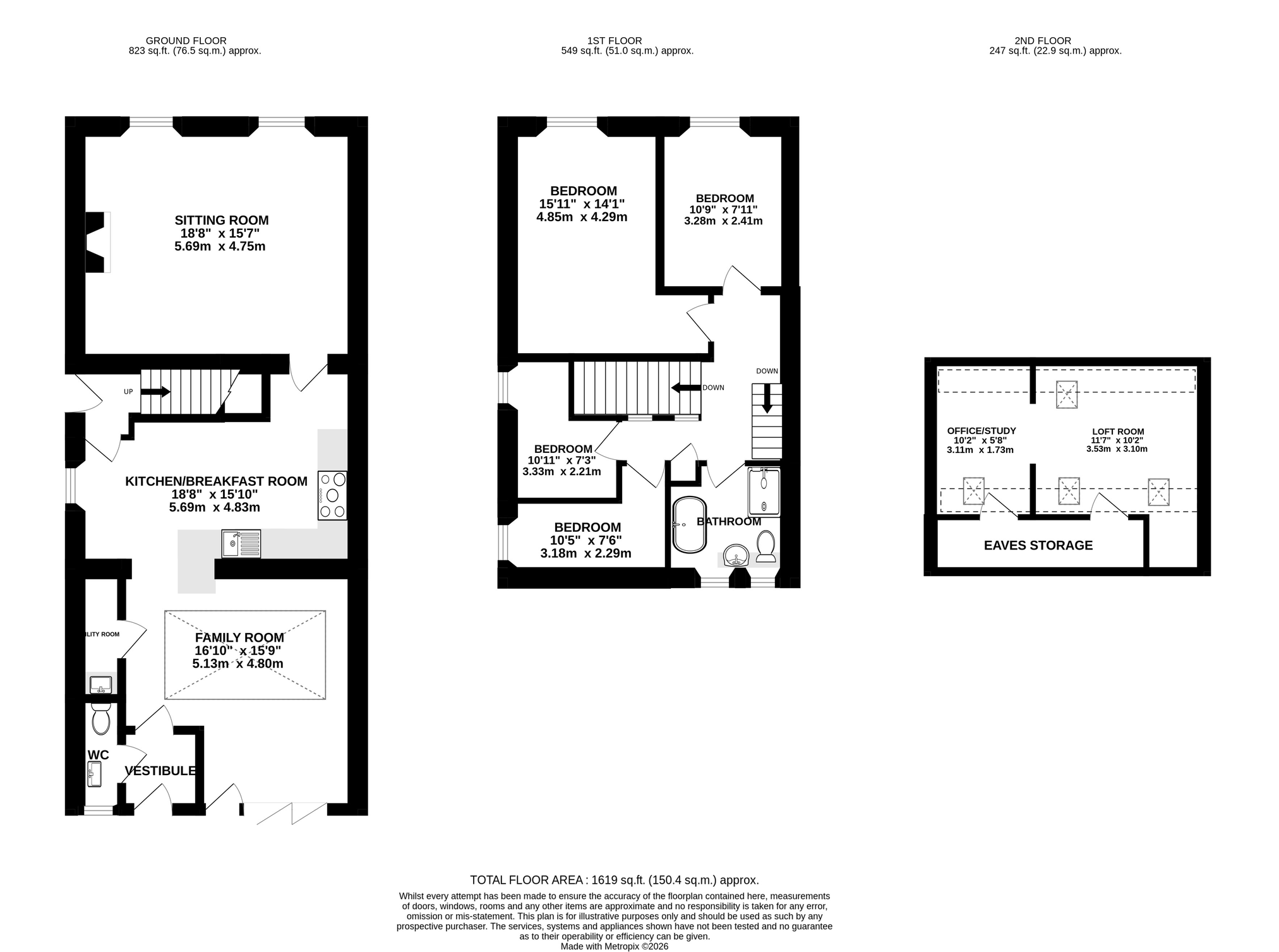
You enter the home via a welcoming vestibule, perfect for coats and shoe storage, with a convenient ground-floor WC just off the entrance. From here, a door opens into the heart of the home, a stunning open-plan family, kitchen, and dining space. The family room is a versatile space, ideal as an additional reception or formal dining room, flooded with natural light from a fantastic lantern window above. Bifold doors open seamlessly onto the garden, creating a bright and airy connection to the outdoors. A useful utility cupboard, fitted with plumbing for laundry facilities, provides practical storage solutions. The kitchen and dining space is well-appointed with wall, base, and drawer units, a Belfast sink, a range-style cooker, and an integrated dishwasher, with space for a freestanding American-style fridge/freezer. Flagstone flooring complements the character of the room, and a breakfast bar offers space for casual dining, while an understairs cupboard provides additional storage. From the kitchen, a door leads through to the sitting room, a well-proportioned reception with dual sash windows, rustic wooden floorboards, and alcove shelving either side of a fireplace fitted with a multifuel burner. Another door from the kitchen leads to a hall, providing access to the stairs up to the first floor and a side exit to the property. Upstairs, the landing gives access to all first-floor rooms. The master bedroom is generously proportioned, with ample space for freestanding furniture, while three further bedrooms offer flexibility for a variety of uses. The family bathroom is fully tiled and well-appointed, featuring an elegant roll-top bath, a separate shower enclosure, a vanity unit with storage, wash basin and WC, finished with a heated towel rail. Stairs continue to the second floor, which provides a superb multifunctional room, ideal as a home office, hobby space, or studio. Velux windows fill the room with natural light, and it offers far-reaching views across the rooftops and the surrounding countryside towards the Mendips in the distance

Outside
An attractive enclosed rear garden designed for ease of maintenance, featuring a generous paved patio, artificial lawn, planted borders and useful garden storage. With direct access from the house, it provides a pleasant space for both outdoor dining and everyday enjoyment.

A delightful cottage-style front garden with gravel pathways, mature planting and well-tended borders, offering an inviting approach and a lovely degree of character and kerb appeal.

Location
Shapwick is a highly regarded Somerset village set in an elevated position mid-way along the Polden Hills, overlooking the open landscapes of the Somerset Levels. A peaceful rural environment underpinned by a strong and active community. The village is particularly well known for its attractive period homes, historic church and welcoming village hall all contributing to its established and well-balanced character.
At the heart of village life is the well-regarded independent Dovecote School, making Shapwick especially appealing to families seeking a supportive and close-knit setting. The village café provides a popular social hub for residents and visitors alike, while the cricket pavilion and adjoining playing fields are a focal point for local sport, events and summer gatherings, reinforcing the village’s strong community spirit. Shapwick is surrounded by countryside and nature reserves, including nearby Shapwick Heath.

Directions
From Street proceed on the A39 towards Bridgwater. Pass through the villages of Walton and Ashcott and shortly after passing the Albion Inn on the left, turn right signposted to Shapwick. Follow the road down the hill into the village and take the second right into Northbrook Road. The property will be found after a short distance on the left hand side, just before reaching the Cricket Ground.

Material Information
All available property information can be provided upon request from Holland & Odam. For confirmation of mobile phone and broadband coverage, please visit checker.ofcom.org.uk

Identity Verification
To ensure full compliance with current legal requirements, all buyers are required to verify their identity and risk status in line with anti-money laundering (AML) regulations before we can formally proceed with the sale. This process includes a series of checks covering identity verification, politically exposed person (PEP) screening, and AML risk assessment for each individual named as a purchaser. In addition, for best practice, we are required to obtain proof of funds and where necessary, to carry out checks on the source of funds being used for the purchase. These checks are mandatory and must be completed regardless of whether the purchase is mortgage-funded, cash, or part of a related transaction. A disbursement of £49 per individual (or £75 per director for limited company purchases) is payable to cover all aspects of this compliance process. This fee represents the full cost of conducting the required checks and verifications. You will receive a secure payment link and full instructions directly from our compliance partner, Guild365, who carry out these checks on our behalf.

Important Information

  • This is a Freehold property.
  • This Council Tax band for this property is: C

Property Ref: SCJ964001

Share:

Similar Properties

Burley Gardens, Street

3 Bedroom Bungalow | £399,950

Set within a superb plot in a desirable residential area on the southern side of Street, this detached three-bedroom bun...

Leigh Furlong Road, Street

4 Bedroom Bungalow | Offers Over £399,950

This substantial four-bedroom detached chalet bungalow offers versatile accommodation arranged over two floors, includin...

Harvesters Drive, Street

4 Bedroom Detached House | £399,950

We are pleased to bring to market this attractive and well appointed four bedroom home, offering versatile family living...

Goose Lane, Chilton Polden

4 Bedroom Detached House | £399,999

A beautifully converted barn offering characterful accommodation arranged around a private courtyard in the sought-after...

Wood Lane, Stawell

4 Bedroom Semi-Detached House | £400,000

We are pleased to bring to market this superb four bedroom semi-detached home offering spacious and versatile accommodat...

Jubilee Road, Street

3 Bedroom Detached Bungalow | £409,950

Tucked away at the end of a shared driveway, this three-bedroom detached bungalow boasts generous living accommodation,...

Holland & Odam (Street)

Street, Somerset, BA16 0BJ

01458 841411

How much is your home worth?

Use our short form to request a valuation of your property.

Request a Valuation

Mortgage Calculator

Amount Borrowed: £
Total Amount Repayable: £
Total Monthly Payment: £
©2026 The Guild of Property Professionals. All rights reserved. Terms and Conditions | Privacy Policy | Cookie Policy | Complaints Policy | Members Login
The Guild of Property Professionals Trading Address: 121 Park Lane, London W1K 7AG. GPEA Limited. Registered in England & Wales.  Company No: 02819824.  Registered Office Address: 2 St. Stephen's Court, St. Stephen's Road, Bournemouth, Dorset, England, BH2 6LA.  VAT Registration No: 576 8795 61
Book a Property Valuation Update Cookies Preferences