Church Street, Elsham, Brigg, DN20

£385,000
SSTC
This property listing is now SSTC

4 Bedroom Detached House for sale in Brigg

2 4 2
  • A CHARMING DETACHED VILLAGE COTTAGE
  • HIGHLY DESIRABLE PRIVATE SETTING
  • EASY ACCESS TO THE M180/A15 MOTORWAY NETWORK
  • FINE MAIN LIVING ROOM, REAR CONSERVATORY & HOME OFFICE
  • ATTRACTIVE FITTED DINING KITCHEN
  • 4 BEDROOMS WITH A MASTER EN-SUITE
  • LUXURY FAMILY BATHROOM
  • PRIVATE ENCLOSED GARDEN
  • AMPLE PARKING FOR NUMEROUS VEHICLES
  • VIEWING IS ESSENTIAL TO FULLY APPRECIATE

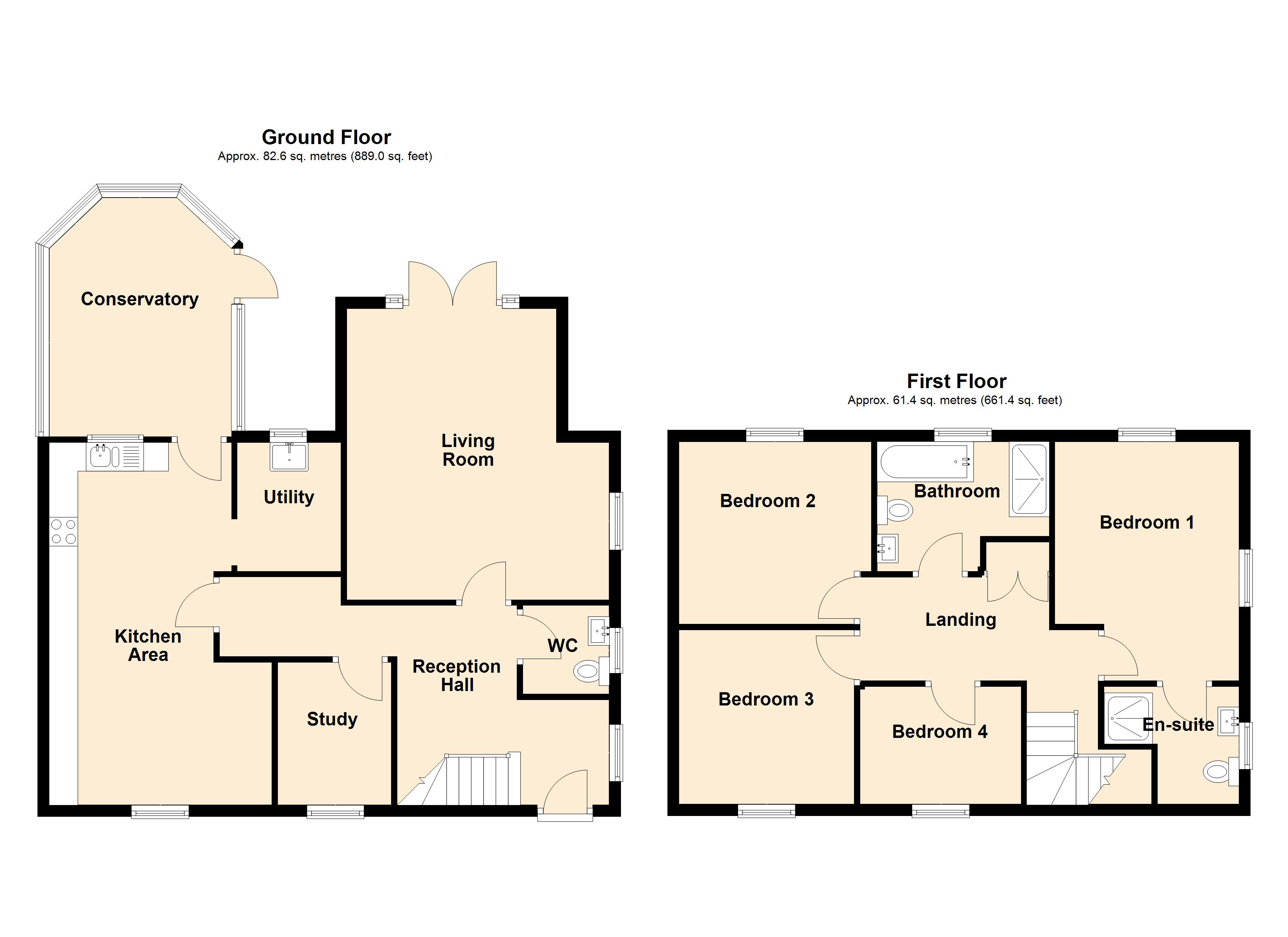
'Bluebell Cottage' is a charming traditional detached village cottage having been later extended creating a superb home that lends itself perfectly for a professional couple or family. Situated within one of Lincolnshire's finest villages being conveniently situated four miles from the market town of Brigg and one mile from the M180 motorway network. The well presented accommodation comprises, front entrance hallway, cloakroom, fine rear living room with a feature fireplace, home office/study, attractive fitted dining kitchen with a utility room and access to a pleasant rear conservatory. The first floor enjoys a large central landing leading to a newly fitted modern family bathroom and 4 bedrooms with an en-suite shower room to the master. The mature grounds are fully enclosed and extremely private with a substantial driveway allowing extensive parking that could be extended if required. The rear garden comes principally lawned with a number of seating areas and established borders. Finished with full double glazing and a modern oil fired central heating system. Viewing comes with the agents highest of recommendations. View via our Brigg office.

Reception Hallway 12'1" x 6' (3.68m x 1.83m). Front uPVC double glazed entrance door with patterned glazing, side timber framed double glazed and leaded window, dog legged staircase leads to the first floor accommodation with open spell balustrading and squared newel post, dado railing and doors to;

Cloakroom 4'11" x 5'1" (1.5m x 1.55m). With side timber framed double glazed and leaded window with patterned glazing and provides a newly fitted traditional style suite in white comprising a low flush WC, pedestal wash hand basin, wooden style flooring, part tiling to walls with chrome edging and matching chrome towel rail.

Spacious Main Rear Lounge 15' x 16'8" (4.57m x 5.08m). Enjoying a dual aspect with timber framed double glazed and leaded side window and matching French doors with adjoining side light leading to the garden, laminate flooring, dado railing, handsome multi fuel cast iron stove on a projecting slate hearth and matching backing with wooden surround and TV point.

Study 6'6" x 8'2" (1.98m x 2.5m). Front timber framed double glazed and leaded window and part dado railing.

Attractive Open Plan Living/Dining Kitchen 12'10" x 20'9" (3.9m x 6.32m). With front timber framed double glazed and leaded window and an internal window and door leads through to the conservatory. The kitchen enjoys an extensive range of shaker style furniture with cupped pull handles and with five eye level units having glazed fronts, feature butcher block style worktop with matching worktop incorporates a one and a half bowl ceramic sink unit with drainer to the side and block mixer tap, built-in four ring electric hob with stainless steel extractor and eye level double oven, laminate flooring, dado railing, space for appliances and open access through to;

Utility Room 5'11" x 7'3" (1.8m x 2.2m). With a rear timber framed double glazed and leaded window, pine eye level storage cabinets with Belfast sink, space and plumbing for appliances.

Conservatory 10'5" x 14'5" (3.18m x 4.4m). With dwarf bricked walling with surrounding uPVC double glazed windows, side entrance door, newly fitted hipped and pitched polycarbonate roof with central light and quarry tiled flooring.

First Floor Landing 10'11" x 6' (3.33m x 1.83m). With a front double glazed timber framed leaded window, dado railing, loft access with drop down ladder, large built-in airing cupboard and doors to;

Master Bedroom 1 10'6" x 13'11" (3.2m x 4.24m). Enjoys a dual aspect with side and rear timber framed and leaded windows, exposed floorboards, corner fitted wardrobes and doors through to;

En-Suite Shower Room 7'10" x 6'9" (2.4m x 2.06m). Side timber framed double glazed and leaded window with patterned glazing provides a suite in white comprising a low flush WC, pedestal wash hand basin, walk-in shower with glazed screen and electric shower wooden style flooring, part tiling to walls and fitted chrome towel rail.

Rear Double Bedroom 2 11' x 10'5" (3.35m x 3.18m). Rear uPVC timber framed double glazed and leaded window and exposed floorboards.

Front Double Bedroom 3 10' x 9'11" (3.05m x 3.02m). Front timber framed double glazed and leaded window and exposed floorboards.

Front Bedroom 4 9'5" x 6'9" (2.87m x 2.06m). Front timber framed double glazed and leaded window and exposed floorboards.

Newly Fitted Family Bathroom 9'10" x 7'5" (3m x 2.26m). Rear timber framed double glazed and leaded window with patterned glazing provides an attractive modern suite in white comprising a close couple low flush WC with adjoining vanity wash hand basin set within a polished top with storage beneath, panelled bath, walk-in shower with overhead mains shower and glazed screen, wooden style flooring, part tiling to walls with chrome edging and matching chrome towel rail.

Grounds    The property enjoys a large mature plot with front fenced boundary and double opening oak doors allowing vehicular access to a substantial concrete laid driveway allowing parking for multiple vehicles of which could be extended into the rear garden if required. The front garden is pebbled laid for ease of maintenance. The rear garden enjoys an excellent degree of privacy enjoying a southerly aspect being lawned with shaped borders and having a number of pleasant seating areas.

Double Glazing    Oil fired central heating system to radiators via an external boiler.

Double Glazing    Timber framed double glazed windows. uPVC front entrance door and uPVC conservatory windows and door.

Important Information

  • This is a Freehold property.

Property Ref: PFA240045

Share:

Similar Properties

Brigg Road, Wrawby, Lincolnshire, DN20

2 Bedroom Apartment | £385,000

**STUNNING SOUTH-FACING COUNTRYSIDE VIEWS TO THE REAR **REQUIRES FINAL INTERNAL & EXTERNAL COMPLETION** 'The Bungalow' p...

Brigg Road, Wrawby

2 Bedroom Detached Bungalow | £385,000

**STUNNING SOUTH-FACING COUNTRYSIDE VIEWS TO THE REAR **REQUIRES FINAL INTERNAL & EXTERNAL COMPLETION** 'The Bungalow' p...

Church Street, Elsham

4 Bedroom Detached House | Asking Price £385,000

'Bluebell Cottage' is a charming traditional detached village cottage having been later extended creating a superb home...

Westfield Cottages, Barnetby, DN38 6DU

3 Bedroom Detached House | £390,000

** CIRCA 0.5 ACRE PLOT ** LARGELY EXTENDED & BEAUTIFULLY RENOVATED ** 'Westfield Cottages' is a charming brick built det...

New Barnetby, Lincolnshire, DN38

3 Bedroom Detached House | £395,000

** CIRCA 0.5 ACRE PLOT ** LARGELY EXTENDED & BEAUTIFULLY RENOVATED ** 'Westfield Cottages' is a charming brick built det...

New Barnetby, Lincolnshire

3 Bedroom Detached House | Asking Price £395,000

** CIRCA 0.5 ACRE PLOT ** LARGELY EXTENDED & BEAUTIFULLY RENOVATED ** 'Westfield Cottages' is a charming brick built det...

Paul Fox (Brigg)

Brigg, Brigg, Lincolnshire, DN20 8ES

01652 651777

How much is your home worth?

Use our short form to request a valuation of your property.

Request a Valuation

Mortgage Calculator

Amount Borrowed: £
Total Amount Repayable: £
Total Monthly Payment: £
©2026 The Guild of Property Professionals. All rights reserved. Terms and Conditions | Privacy Policy | Cookie Policy | Complaints Policy | Members Login
The Guild of Property Professionals Trading Address: 121 Park Lane, London W1K 7AG. GPEA Limited. Registered in England & Wales.  Company No: 02819824.  Registered Office Address: 2 St. Stephen's Court, St. Stephen's Road, Bournemouth, Dorset, England, BH2 6LA.  VAT Registration No: 576 8795 61
Book a Property Valuation Update Cookies Preferences