Church Lane, Bitton, Bristol

£1,100,000
SSTC
This property listing is now SSTC

4 Bedroom Detached House for sale in Bristol

3 4 3
  • Detached
  • Two Reception rooms
  • Office/Snug
  • Kitchen/Dining/Family Room
  • Utility Room
  • Four double bedrooms
  • Two ensuites
  • Bathroom
  • Double garage
  • Landscaped Gardens

Honeysuckle House is a delightful residence that's been remodeled to an exceptional standard throughout and boasts an idyllic location in the heart of the Conservation area of Bitton village. This wonderful property has been subject to a programme of improvements and renovations and offers delightful, high quality accommodation throughout that is well suited to families who are upsizing.

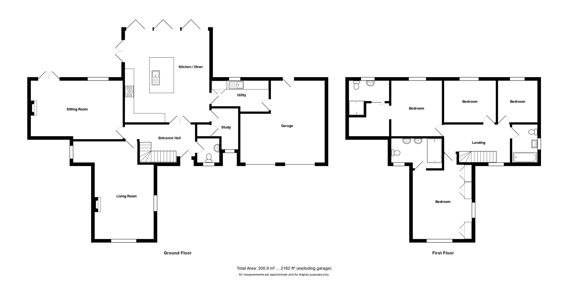
The ground floor comprises of a welcoming entrance hallway, two separate reception rooms (one with feature wood burner stove and another with French doors that directly access the rear garden), a versatile office/snug, a breathtaking kitchen/dining/family room with bespoke built kitchen and centre piece island, in addition to a useful utility room and a separate Cloakroom. To the first floor, four well appointed double bedrooms are found with two enjoying ensuite shower rooms, while a contemporary family bathroom services the remaining bedrooms.

Externally, the property sits within secluded mature grounds with the front offering a generous driveway, wrap around lawn and an assortment of mature shrubs and several trees. The rear garden is also a true delight and offers a level lawn, spacious wrap around patio ideal for entertaining, a selection of well stocked flower beds and several small trees. The property further benefits from a double garage with a mezzanine loft room that is currently used as a gymnasium.

This exquisite home is a truly delightful find that neatly blends versatile, high quality accommodation with an idyllic village setting which has the benefit of a range of amenities, well regarded schooling and good access to the Cities of Bath, Bristol and London via Keynsham mainline railway station.

Interior -

Ground Floor -

Entrance Hallway - 4.9m x 2.1m (16'0" x 6'10") - Doors to access ground floor rooms, staircase to first floor with storage cupboard underneath, Karndean parquet flooring, Victorian style radiator and power points.

Lounge - 6.5m x 3.9m (21'3" x 12'9" ) - Dual aspect UPVC double glazed windows to front and side aspects all with bespoke shutters, wood burning stove, Victorian style radiators and power points.

Family Room - 6.1m x 3.9m (20'0" x 12'9") - UPVC double glazed window to rear aspect, aluminium French doors providing direct access to rear garden, fitted alcove storage cupboards, Karndean parquet flooring, Victorian style radiator and power points.

Office/Snug - 2.8m x 2.2m (9'2" x 7'2") - UPVC double glazed window to front aspect, built in storage cupboard, Victorian style radiator and power points.

Kitchen/Dining/Family Room - 6.1m x 5.7m (20'0" x 18'8" ) - Aluminium double glazed bi folding doors providing direct access to rear garden, doors providing access to utility room and office/snug. Karndean tiled flooring, range of matching wall and base units with integrated fridge / freezer and space for an oven with extractor over. Central island with integrated dishwasher and a stainless steel sink with mixer tap over. Victorian style radiator and power points.

Utility Room - 3.8m x 2m (12'5" x 6'6") - to maximum points. UPVC double glazed window to rear aspect, door providing access to garage, laminate wood flooring, matching base units with work surfaces over with spaces below and plumbing for washing machine and tumble dryer. Stainless steel sink with mixer tap over, matching floor to ceiling unit housing gas combination boiler. Power points.

Cloakroom - 1.7m x 1.4m (5'6" x 4'7") - UPVC double glazed obscured window to front aspect, tiled flooring, wash hand basin with fitted storage cupboard below and a mixer tap over, low level wc and a Victorian style radiator.

First Floor -

Landing - 4.6m x 2.5m (15'1" x 8'2") - UPVC double glazed window to front aspect with bespoke shutters, doors providing access to first floor rooms, access to loft via a hatch, radiator and power points.

Bedroom One - 4.6m x 4m (15'1" x 13'1") - Dual aspect UPVC double glazed windows to front and side aspects with bespoke shutters, door access to en suite, fitted wardrobes, radiator and power points.

En Suite - 3.2m x 1.4m (10'5" x 4'7") - UPVC double glazed window to front aspect, walk in shower off mains with rainfall shower head over, double wash hand basin with storage below and mixer taps over, low level wc, touch screen light up mirror, tiled flooring and tiled splashbacks to wet areas. Two heated towel rails.

Bedroom Two - 5.1m x 3.9m (16'8" x 12'9") - to maximum points. UPVC double glazed window to rear aspect, access to a hang out area / walk in wardrobe area measuring 2.5m x 2.1m. Sliding door to access en suite, radiator and power points.

En Suite - 2.5m x 2.2m (8'2" x 7'2" ) - to maximum points. UPVC double glazed obscured window to rear aspect, walk in shower off mains, wash hand basin with mixer tap over, low level wc, tiled splashbacks to wet areas and a heated towel rail.

Bedroom Three - 3.7m x 2.7m (12'1" x 8'10" ) - UPVC double glazed window to rear aspect, radiator and power points.

Bedroom Four - 2.9m x 2.8m (9'6" x 9'2") - UPVC double glazed window to rear aspect, radiator and power points.

Bathroom - 2.4m x 1.8m (7'10" x 5'10") - UPVC double glazed obscured window to side aspect, bath with shower off mains over with rainfall shower head, wash hand basin with mixer tap over, low level wc, tiled flooring and splashbacks to wet areas. Heated towel rail.

Exterior -

Front Of Property - Mainly laid to stone gravel creating a driveway for ample vehicles and providing access to the garage, lawn area, birch trees, flower beds with a variety of plants and shrubbery. Stone wall boundaries and gated side access to rear garden.

Rear Garden - Mainly laid to lawn with patio for al fresco dining, stone wall boundaries and flower beds with a vast array of flowers and shrubbery. Outdoor power points.

Garage - 5.8m x 5m (19'0" x 16'4") - to maximum points. Wooden door providing access to rear garden, two up and over garage doors to front aspect, wooden staircase to first floor and power points.

Garage Loft Room - 6.2m x 3.2m (20'4" x 10'5") - Currently being used as a gym. Double glazed velux window to rear aspect and power points.

Tenure - This property is freehold.

Council Tax - Prospective purchasers are to be aware that a peppercorn ground rent is payable and the property is in council tax band G according to www.gov.uk website.

Additional Information - Local authority: South Gloucestershire
Services: All services connected.
Broadband speed: Superfast 80mbps (Source - Ofcom).
Mobile phone signal: outside EE, O2, Three and Vodafone - all likely available (Source - Ofcom).

Property Ref: 589941_33593146

Share:

Similar Properties

Stockwood Hill, Keynsham, Bristol

4 Bedroom Detached House | £1,100,000

This charming detached period property, set within approximately 2 acres of mature grounds, offers a unique chance to en...

Parkhouse Lane, Keynsham, Bristol

5 Bedroom Detached House | £1,100,000

A stunning, recently constructed five-bedroom executive home, positioned in a semi-rural location on the edge of Keynsha...

London Road, Warmley, Bristol

5 Bedroom Detached House | £1,000,000

This impressive Victorian detached home, with a separate coach house, is ideally located between Bath and Bristol, offer...

Bristol Road, Keynsham, Bristol

5 Bedroom Detached House | £1,250,000

A beautiful five-bedroom Victorian home that offers the perfect blend of period elegance and modern comfort, with an abu...

Stockwood Vale, Keynsham, Bristol

4 Bedroom Detached House | Guide Price £1,299,950

Set within approximately two acres of private grounds and enjoying far reaching countryside views, Woodlea House is a su...

Davies & Way (Keynsham)

1 High Street, Keynsham, Bristol, BS31 1DP

0117 9863681

How much is your home worth?

Use our short form to request a valuation of your property.

Request a Valuation

Mortgage Calculator

Amount Borrowed: £
Total Amount Repayable: £
Total Monthly Payment: £
©2025 The Guild of Property Professionals. All rights reserved. Terms and Conditions | Privacy Policy | Cookie Policy | Complaints Policy | Members Login
The Guild of Property Professionals Trading Address: 121 Park Lane, London W1K 7AG. GPEA Limited. Registered in England & Wales.  Company No: 02819824.  Registered Office Address: 2 St. Stephen's Court, St. Stephen's Road, Bournemouth, Dorset, England, BH2 6LA.  VAT Registration No: 576 8795 61
Book a Property Valuation Update Cookies Preferences